Makléř: Mezková Erika
Telefon: 739 628 ...
E-mail: erika.m ...
Zobrazit celý kontaktTelefon: 739 628 801
E-mail: erika.mezkova@century21.cz
Nemovitost nabízí
CENTURY 21 Birdie Reality - pobočka NextRound
28. října 813/248, 709 00 Ostrava
www.century21.cz/kancelar-birdie-reality-pobocka-nextround
Zobrazit kontakt na RK
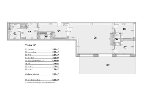
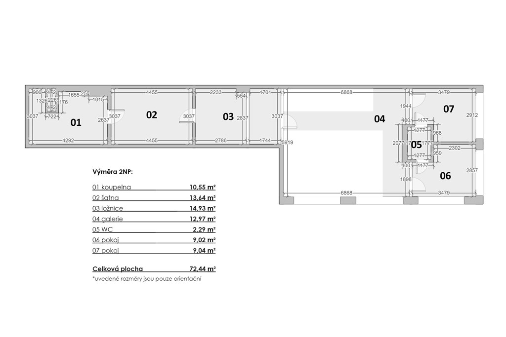
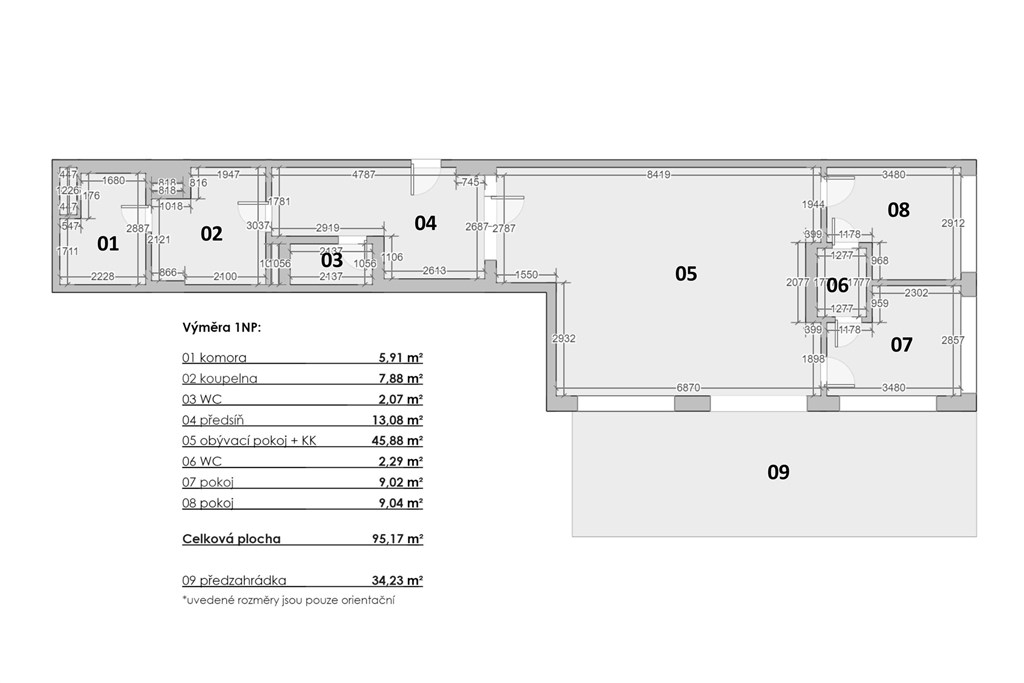
Představujeme Vám jedinečnou příležitost k pořízení prestižního velkometrážního bytu ateliérového typu, který se nachází v atraktivním projektu Lofty Kolbenova. Tento exkluzivní byt s rozlohou nabízí nejen luxusní prostor, ale také předzahrádku o velikosti 34 m2, ideální pro relaxaci a soukromí. Klíčové vlastnosti tohoto bytu: Luxusní ateliérový byt v moderním a stylovém designu Rozsáhlý obytný prostor pro maximální komfort a variabilitu využití Předzahrádka 34 m2 - dokonalé místo pro odpočinek nebo venkovní aktivity Exkluzivní lokalita v Praze - dynamicky se rozvíjející oblast s veškerou občanskou vybaveností a výbornou dopravní dostupností Vybavení a standardy: Rekuperace - zajišťuje čerstvý a zdravý vzduch po celý rok Klimatizace - pro příjemné klima ve všech ročních obdobích Podlahové topení - maximální komfort a efektivní vytápění Předokenní žaluzie - pro dokonalé stínění a soukromí Industriální styl celého projektu kombinuje přiznaný beton a původní konstrukci, celý dojem podtrhují velkoplošná hliníková okna. Lokalita: Projekt Lofty Kolbenova je situován v jedné z nejvíce rostoucích a perspektivních lokalit v Praze. Nabízí rychlou dostupnost do centra města, bohatou infrastrukturu a pestré možnosti pro volnočasové aktivity. Tramvajovou zastávku a metro máte přímo před domem (metro B Kolbenova). Pro milovníky umění nesmíme opomenout Prágovku přímo naproti domu. Skoro za rohem se nacházejí obchodní centra jako Fénix a Galerie Harfa. Pro fanoušky sportovních zápasů a velkých koncertů ideální bydlení v blízkosti O2 arény a zároveň v blízkosti přírody jako Klíčovské sady. Za 10 minut se tak můžete ocitnout jak v centru Prahy, tak na D10 nebo D11 při cestě do Krkonoš, Jizerských nebo Orlických hor, popřípadě na D8 do Krušných hor. Potenciál lokality dělá z bytu skvělou investiční příležitost. Investujte do luxusu, pohodlí a prestiže s Lofty Kolbenova. Jedná se o již hotový byt k nastěhování. Pro víc informací o objektu a jiných dispozic bytů/ateliérů mě prosím kontaktujte.
Loft Křížová - Luxusní bydlení v srdci Prahy
KOPECKY RealEstate & Partners, s.r.o. s potěšením představuje Loft Křížová - exkluzivní rezidenční projekt, který dokonale propojuje industriální…
Prodej mezonetu 6+kk, 120 m + terasa 35 m, Praha 5 - Košíře
Představujeme Vám byt s neopakovatelnou atmosférou v atraktivní lokalitě - Praha, Košíře. Jedná se o mezonetový byt o užitné ploše 120 m rozdělených…