Makléř: Humpálová Zuzana
Telefon: 226 221 ...
E-mail: info@ce ...
Zobrazit celý kontaktTelefon: 226 221 111, 226 222 222
E-mail: info@central-group.cz
Nemovitost nabízí
Central Group
Na Strži 65,, Praha
Zobrazit kontakt na RK605 204 824
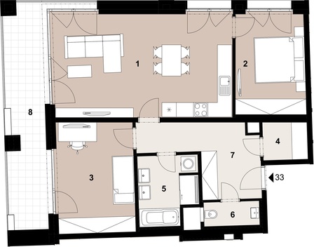
Nabízíme k prodeji byt 189-08-033 s dispozicí 3+kk (82,4 m2), lodžií (16,7 m2) a přiřazeným parkovacím stáním v novém projektu Rezidence Parková čtvrť na Praze 3. Byty s dispozicí od 1+kk do 4+kk budou dokončené v luxusním standardu provedení Rezidence, ve kterém budou dřevěné podlahy s podlahovým vytápěním, designová koupelna, předokenní žaluzie či klimatizace a rekuperace pro zajištění komfortního a zdravého bydlení. Architektonicky unikátní domy se zelenými střechami jsou obloženy kamenem a dalšími designovými prvky. V projektu se počítá i s přípravou pro napojení nabíjení elektromobilů. Parková čtvrť leží v srdci dynamicky se rozvíjejícího Nového Žižkova v Praze 3. Tato část města prochází velkou proměnou a stává se jednou z nejžádanějších a nejvíc trendy čtvrtí v Praze, podobně jako sousední Karlín. Ceny nových bytů na Žižkově nyní rostou nejvíce v celé metropoli. Parková čtvrť je zcela unikátní rezidenční lokalitou s luxusními byty v širším centru města, jen 5 minut chůze od metra. V okolí je velké množství zeleně pro relaxaci, kompletní občanská vybavenost i bohaté možnosti pro kulturní či sportovní vyžití. Podobu nové čtvrti navrhlo 9 různých prestižních architektonických ateliérů. Parkovací stání a sklepy nejsou zahrnuty v ceně z důvodu snadnějšího a přehlednějšího porovnání napříč nabídkou na trhu nového bydlení.
Prodej, Byty 3+kk, 76 m2 - Praha 8 - Viladomy Střížkov - Moderní bydlení v zeleni blízko metra
Nabízíme k prodeji byt 184-08-082 s dispozicí 3+kk (76,4 m2), terasou (21,7 m2), přiřazeným sklepem a garážovým stáním v novém projektu Viladomy…
Prodej, Byty 3+kk, 83 m - Praha - Vysočany, B413
Nabízíme k prodeji loftový byt B413 kategorie 3+kk o celkové výměře 84,12 m2. K bytu náleží balkon o velikosti 3,72 m2. Byt je vybaven klimatizací,…