Makléř: Real Estate CREDITAS
Telefon: 420 702 ...
E-mail: reality ...
Zobrazit celý kontaktTelefon: 420 702 216 216, 420 702 216 216
E-mail: reality@creditasre.cz
Nemovitost nabízí
CREDITAS Real Estate Management s.r.o.
Walterovo náměstí 329/3, 158 00 Praha 5
Zobrazit kontakt na RK702 216 216
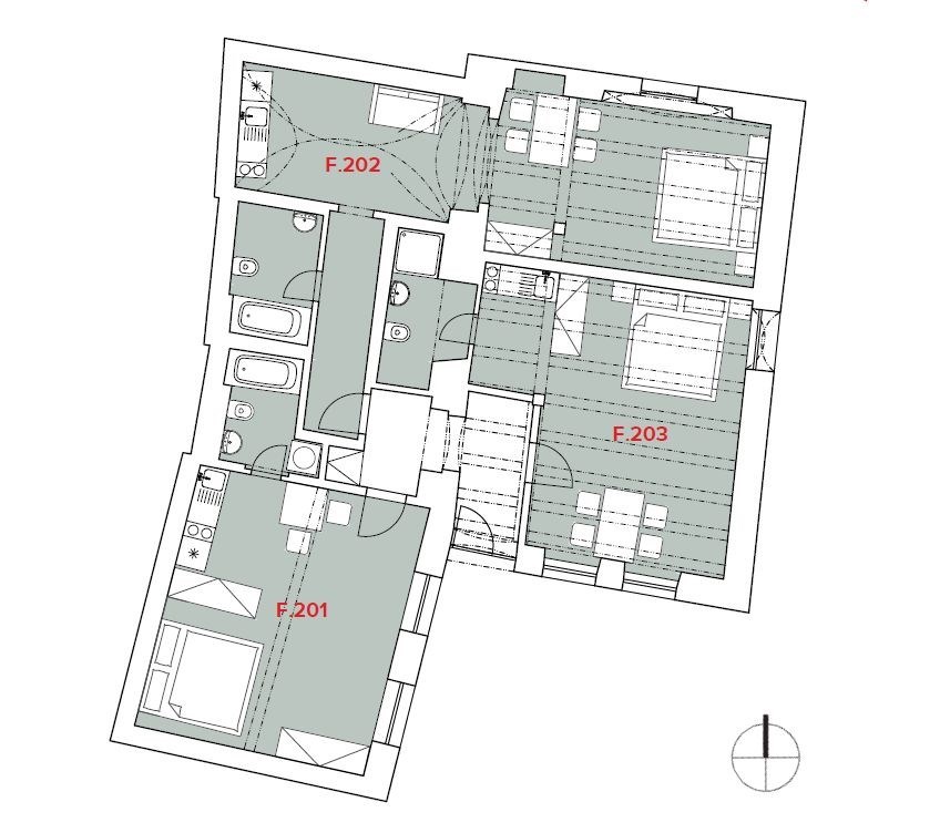
Nabízíme k prodeji unikátní bytovou jednotku situovanou v historickém centru Prahy, pouhých 80 metrů od Karlova mostu. Tato jednotka s celkovou rozlohou 108,6 m2, umístěná ve druhém patře pavlačového domu, nabízí flexibilní využití: momentálně je rozdělena na tři samostatné ubytovací jednotky 1+kk s příjemnou společnou chodbou. Každá z těchto jednotek je kompletně vybavena vlastním kuchyňským koutem, základním nábytkem a moderní koupelnou. K dispozici je nově vydané stavební povolení na změnu uspořádání do tří samostatných jednotek, ideální jak pro investici, tak pro případný další prodej. V případě potřeby je možné celou jednotku přestavět na jeden prostorný byt. Byt se nachází v tichém vnitrobloku, daleko od hluku ulice, a je součástí památkově chráněného domu, který je ve velmi dobrém stavu, avšak bez výtahu. K nemovitosti náleží také platná nájemní smlouva s měsíčním výnosem 61.500 Kč, platná do roku 2025. Cena 23.780.000 Kč zahrnuje veškerý právní servis. Prohlídky jsou možné dle individuální domluvy. Tato nabídka představuje výjimečnou příležitost pro ty, kdo hledají bydlení nebo investici na jedinečném místě v srdci Prahy, na Královské cestě pod Pražským hradem.
Prodej bytu 3+kk, 73 m2, Praha, ul. Žabovřeská
Dovolujeme si Vás upozornit na nabídku prodeje kvalitně zrekonstruovaného bytu (nové rozvody, podlahy, okna atp.), splňujícího všechny nároky na…
Byt 3+kk, 71 m2 se sklepem a garážovým stáním, Praha 4 - Kunratice
Exkluzivně vám nabízím k prodeji byt 3+kk v osobním vlastnictví, který se nachází na jedinečném místě v ulici Urešova 1266/4, Praha 4 - Kunratice,…