Makléř: Humpálová Zuzana
Telefon: 226 221 ...
E-mail: info@ce ...
Zobrazit celý kontaktTelefon: 226 221 111, 226 222 222
E-mail: info@central-group.cz
Nemovitost nabízí
Central Group
Na Strži 65,, Praha
Zobrazit kontakt na RK605 204 824
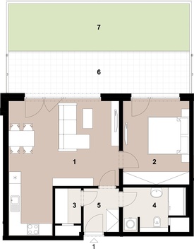
Nabízíme k prodeji byt 194-05-001 s dispozicí 2+kk (56,6 m2), terasou (20,9 m2), předzahrádkou (22 m2), přiřazeným sklepem a parkovacím stáním v novém projektu Viladomy Pitkovice v Praze 10 - Pitkovicích. Viladomy Pitkovice jsou komorní projekt v sousedství tradiční vilové čtvrti mezi Průhonicemi a Uhříněvsí nedaleko přírodního parku Botič-Milíčov, přitom ale s dobrou dopravní dostupností do centra města. Jen pár minut chůze od projektu se nacházejí autobusové zastávky s rychlým spojením na metro C - Háje. V blízkém okolí je pestrá občanská vybavenost včetně škol a školek, zdravotnických zařízení, obchodů a služeb. Lokalita nabízí bohaté možnosti sportovního a kulturního vyžití. Parkovací stání a sklepy nejsou zahrnuty v ceně z důvodu snadnějšího a přehlednějšího porovnání napříč nabídkou na trhu nového bydlení.
Prodej bytu 2+kk 74,51 m2 s komorou plus lodžie 4,66 m2 v novém developerském projektu Rezidence ODRA
Byt 2+kk s lodžií v Rezidenci Odra - nový začátek v srdci Bohnic Hledáte nový domov v klidné a přitom skvěle dostupné lokalitě? Rezidence Odra je…
Prodej bytu 2+KK, 68,1 m2, zahrada 150m2, garáž, sklep, nedaleko metra Vysočanská
Nabízíme Vám prostorný nový byt 2+KK o ploše 68,1 m2 se zahradou 150 m2 v komorním projektu tří bytových domů v Rezidenci Klíčov, v srdci Vysočan a…