Makléř: Richard Dobiaš
Telefon: 775 252 ...
E-mail: richard ...
Zobrazit celý kontaktTelefon: 775 252 460
E-mail: richard.dobias@homesweethome.cz
Nemovitost nabízí
Home Sweet Home
Pařížská 1073/1, 110 00 Praha 1
Zobrazit kontakt na RK
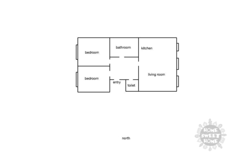
Nabízíme velmi pěkný zařízený byt k pronájmu 3+kk o celkové rozloze 110 m2, který se nachází ve čtvrtém nadzemním podlaží cihlové budovy v ulici Sázavská, Praha 2, Vinohrady. Dispozice bytu: vstupní hala, dvě samostatné ložnice, obývací pokoj s kuchyňským koutem (sklokeramická deska, trouba, lednice, myčka, mikrovlnná trouba, toaster, rychlovarná konvice, atd), koupelna s vanou, pračkou a toaleta v oddělené místnosti. Další vybavení - vysavač, žehlící prkno, žehlička i úklidové prostředky. Možnost pronajmou parkovací stání za měsíční poplatek. Vynikající lokalita v centru Prahy. V okolí je výborná občanská vybavenost. Restaurace, kavárny a obchody všude v okolí. Bohatý kulturní život - divadla a hudební kluby všude v sousedství. Výborná dopravní dostupnost do všech částí Prahy. Zastávka tram nebo stanice metra Náměstí Míru jen pár minut chůze od domu. Možnost pronajmout i na kratší dobu než jeden rok za vyšší cenu. Byt je dostupný k pronájmu od 14.1.2026
Pronájem bytu 3+kk 68 m2 ulice Záhřebská, Praha 2 - část obce Vinohrady
Světlý, elegantní domov v srdci Královských Vinohrad Nabízíme k pronájmu stylový a vzdušný byt o dispozici 3+kk s balkonem, který vás okouzlí nejen…
Pronájem, Byt 3+kk, Praha 1
Nabízíme k pronájmu zcela zrekonstruovaný, vkusně zařízený, tichý byt 3+kk (108m2) v samém srdci centra Prahy. Luxusní slunný byt se nachází v 2…