Aktuálně můžete v lokalitě Praha vybírat z nabídky 2 255 bytů.
Přehled nemovitostí: prodej byty > 2+kk Zpět na přehled nabídek

Prodej bytu 2+kk, 58 m2 s velkým balkonem a garážovým stáním, Praha - Letňany, ul. Pavla Beneše

neuvedeno

neuvedeno

osobní

C - Úsporná

1269

Cena: 8490000 CZK / objekt
Poznámka k ceně: Cena včetně právního servisu a provize RK 1

Poslat dotaz k nabídce
Zásady používání osobních údajů

Prodejce

Makléř: Bc. Lysák Milan

Telefon: 737 886 ...

E-mail: lysak@h ...

Zobrazit celý kontakt

Nemovitost nabízí

Hanauer reality s.r.o.

Masarykova 1047/35, 400 01 Ústí nad Labem

www.hanyreality.cz

Zobrazit kontakt na RK

Zobrazit všechny nabídky RK

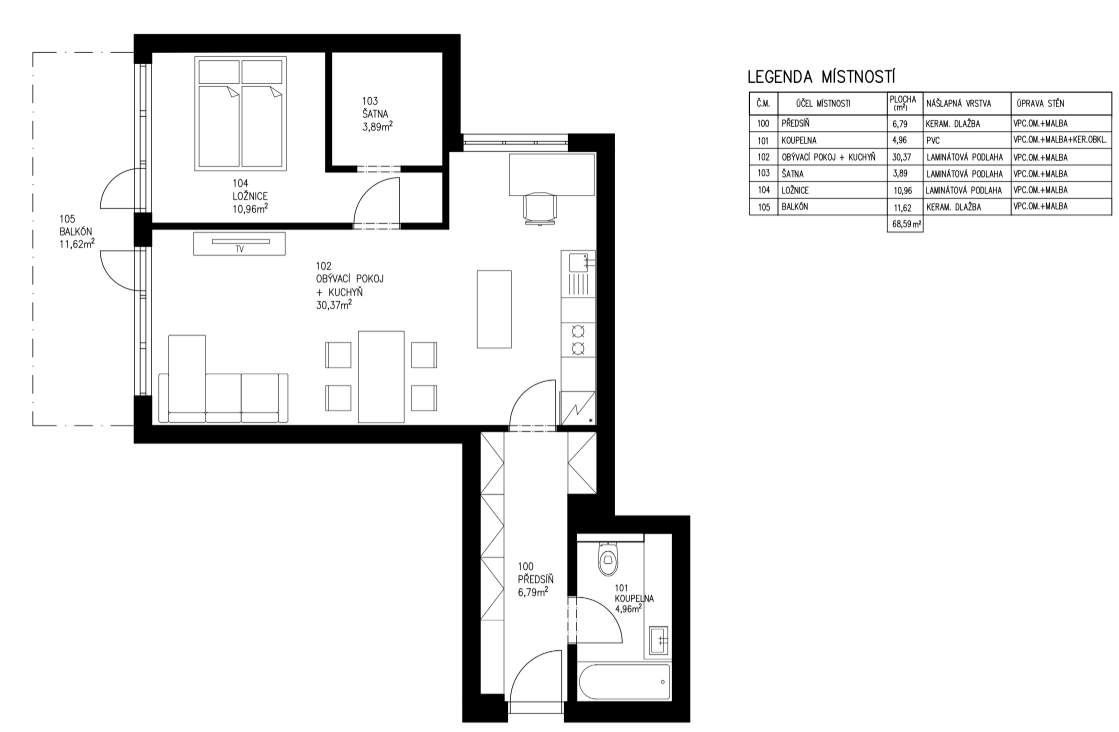
Nabízíme k prodeji krásný a moderní byt 2+kk o velikosti 58 m2, který se nachází v přízemí novostavby z roku 2014 v klidné části Prahy Letňany. Byt je ve výborném stavu, velmi dobře dispozičně řešený a připravený k okamžitému nastěhování bez nutnosti dalších úprav. Součástí bytu je prostorný obývací pokoj s kuchyňským ostrůvkem, ložnice s praktickou šatnou, velká vstupní chodba a koupelna s vanou a toaletou. Z obývacího pokoje i ložnice je samostatný vstup na prostorný balkon o velikosti 11 m2, který nabízí dostatek místa pro posezení či pěstování květin. K bytu dále náleží sklepní kóje a vlastní parkovací stání v podzemní garáži, které je zahrnuto v ceně. Byt se prodává kompletně vybavený, takže se můžete rovnou nastěhovat bez dalších investic. Měsíční náklady na bydlení pro dvě osoby činí cca 4.500 Kč/měs. (včetně záloh na služby a fond oprav). Byt se nachází v moderním a dobře udržovaném bytovém domě s výtahem. Lokalita Letňany nabízí kompletní občanskou vybavenost v docházkové vzdálenosti je obchodní centrum Letňany, školy, školky, zdravotnická zařízení, sportoviště, aquacentrum i lesopark. Výborné dopravní spojení zajišťuje metro C Letňany a několik autobusových linek. S financováním vám rád pomůže náš zkušený finanční specialista Martin Homolka, EFA, který vám najde nejvýhodnější řešení na míru. Pokud hledáte pohodlné a moderní bydlení v klidné části Prahy s výbornou dostupností a veškerým komfortem, tato nabídka je ideální právě pro vás. Nemovitost je k nastěhování 1.9.2025. <a href="https://www.eurobydleni.cz/byty/1_1/liberec/obec-liberec/pronajem/"><strong>Pronájem bytu 1+1 Liberec</strong></a>




Prodej bytu 2+kk Praha 9, Letňany na Eurobydleni.cz


Nahoru