Makléř: Michaela Sedláčková
Telefon: 723 557 ...
E-mail: michael ...
Zobrazit celý kontaktTelefon: 723 557 000
E-mail: michaela@rk-sedlacek.cz
Nemovitost nabízí
Realitní kancelář Sedláček s.r.o.
Slezská 954, 356 01 Sokolov
Zobrazit kontakt na RK775 604 327
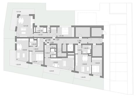
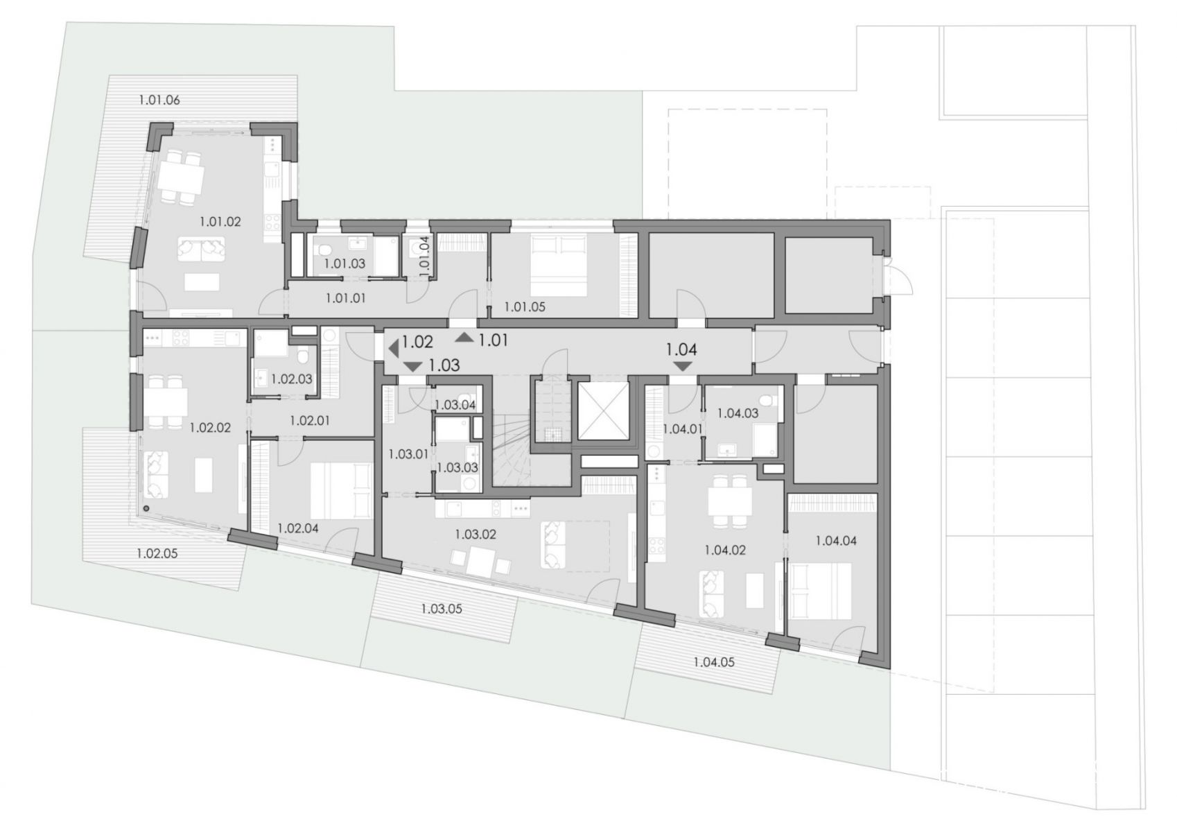
V exkluzivní lokalitě Prahy 12 Modřany vám nabízíme jedinečnou příležitost ke koupi moderní bytové jednotky 2+kk s předzahrádkou v připravovaném projektu Rezidence Cikorka, který klade důraz na komfortní bydlení, elegantní architekturu a maximální soukromí. Kupující neplatí žádnou provizi výhodná nabídka bytu přímo od developera. Byt o dispozici 2+kk a užitné ploše 47,62 m se nachází v přízemí novostavby. Jeho největší předností je předzahrádka s terasou o velikosti 51 m, která poskytne ideální prostor pro relaxaci nebo letní posezení s přáteli. Dispozice bytu: vzdušný obývací prostor s kuchyňským koutem samostatná ložnice koupelna s toaletou Technické standardy a vybavení: bezpečnostní vstupní dveře vnitřní podlahy dřevěné nebo dlažba (dle výběru klienta) terasa a předzahrádka dřevěná nebo velkoformátová dlažba kompletní sanitární vybavení a obklady vnitřní dveře hliníková okna s izolačním trojsklem venkovní žaluzie pro stínění a tepelný komfort podlahové vytápění ve všech místnostech tepelné čerpadlo pro vytápění a ohřev TUV rekuperace vzduchu příprava na klimatizaci bezbariérový přístup do celého domu venkovní parkovací stání Rezidence Cikorka se nachází v klidné rezidenční zástavbě s dostatkem zeleně a výbornou dopravní dostupností do centra města. Projekt nabízí pouze 12 bytových jednotek, což zaručuje komorní charakter a klidné bydlení. Kolaudace konec roku 2026. Cena parkovacího stání není zahrnuta v ceně bytu. Vizualizace a fotografie mají pouze ilustrační charakter. Vyhrazujeme si právo na změny v průběhu realizace projektu. Nemovitost lze financovat hypotečním úvěrem s jeho vyřízením vám rádi pomůžeme. Zveme vás na osobní schůzku do naší kanceláře v Praze či Sokolově, kde vám rádi představíme projektovou dokumentaci a probereme možnosti individuálních úprav dle vašich představ. Jsme vám k dispozici neváhejte se na nás obrátit. Tento byt je skvělou volbou jak pro vlastní bydlení, tak jako investiční příležitost. <a href="https://www.eurobydleni.cz/pozemky/stavebni-pozemek-bydleni/jablonec-nad-nisou/obec-korenov/prodej/"><strong>Prodej stavebního pozemku Kořenov</strong></a>
2+kk/B, 46,5 m2, 2 p., garáž, ul. Bryksova, Praha 9 - Černý Most
Zprostředkujeme Vám prodej nové bytové jednotky 2+kk o podlahové ploše 46,5 m2, plus plocha balkonu 2,3 m2, nacházející se ve 2. patře čtyřpatrové…
Prodej jednotky 2+kk, celkem 71 m2, předzahrádka, zahrada, Praha 6 Dejvice
Jednotka 2+kk, podlahová plocha 49,20 m2 + Předzahrádka 19,50 m2, celková plocha je 71 m2. Nachází se v -1. podlaží bytového domu (přízemí ze dvora)…
Prodej bytu 2+kk Praha 4, Modřany na Eurobydleni.cz