Makléř: Sergej Gončarov
Telefon: 722 777 ...
E-mail: gonchar ...
Zobrazit celý kontaktTelefon: 722 777 666
E-mail: goncharov@reality-proradost.cz
Nemovitost nabízí
REALITNÍ AGENTURA PRORADOST
Vídeňská 1014/18b, 63900 Brno - Štýřice
Zobrazit kontakt na RK704 532 094
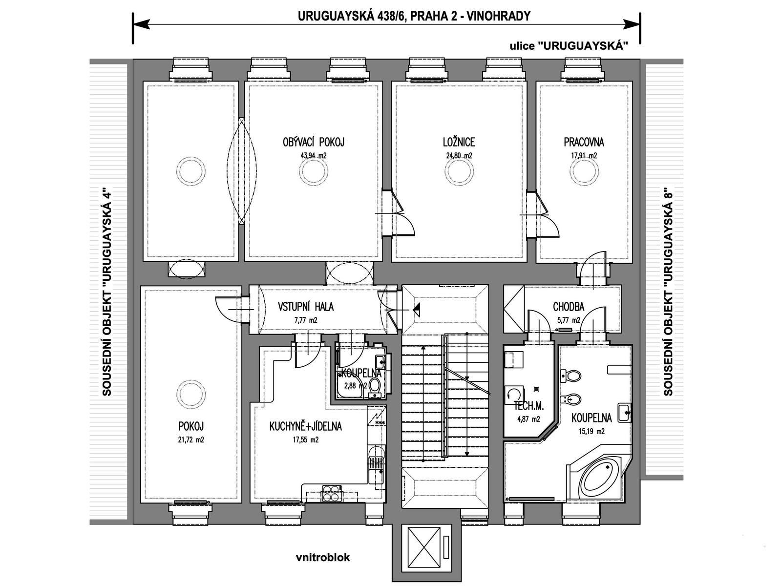
Koupě bytu na pražských Vinohradech patří mezi nejstabilnější rezidenční investice: tradiční čtvrť s aktivním společenským životem, špičkovými školami, kavárnami a restauracemi, perfektní dopravní dostupností do centra a množstvím zeleně v okolních parcích. Nabízíme prostorný byt 4+1 o užitné ploše 162,4 m2 ve 3. NP / 2. patře udržovaného historického cihlového domu ve Vinohradech, ul. Uruguayská. Jednotka zabírá celé patro a vznikla sloučením tří původních bytů, což zajišťuje mimořádné soukromí i flexibilitu pro další úpravy dispozic. Současné uspořádání: velký obývací prostor vzniklý propojením dvou místností + herna / hudební kout s klavírním křídlem, samostatná kuchyně s jídelnou, dále tří velké pokoje, dvě koupelny, samostatné WC, technická místnost a široké chodby. Celkové členění ploch: obytná část 108,4 m2, kuchyně + jídelna 17,6 m2, zázemí (koupelny, komunikace, technická část) 36,4 m2. Byt prošel při sloučení celkovou modernizací - nové měděné elektro rozvody, nové rozvody vody a kanalizace s měřením T/S, vytápění a TUV z vlastního plynového kotle se zásobníkem, rozvody do radiátorů, příprava na vysokorychlostní internet a kabelovou TV (optická síť). Stav hodnocen jako velmi dobrý; konstrukce bez zjevných poruch. Dům je reprezentativní vinohradská činžovní stavba z přelomu 19./20. století; vstupní vestibul navazuje na průjezd do zeleného vnitrobloku, schodiště po kompletní renovaci, přístup k výtahu z mezipodest. Lokalita: stabilizované obytné území v městské památkové zóně Vinohrady; v docházce metro A - Náměstí Míru, tramvaje i autobusy, bohatá občanská vybavenost, parky typu Riegrovy sady. Území napojeno na všechny městské sítě (voda, kanalizace, plyn, elektřina, data) a leží mimo záplavové území. Právní a technické jistoty: byt v osobním vlastnictví. Nemovitost se nachází v běžné městské zástavbě mimo zvláštní ochranná nebo bezpečnostní pásma; objekt není v záplavovém území ani v ochranném pásmu kulturní památky dle evidence NPÚ. Vybavení, materiály & atmosféra • Původní dřevěná špaletová okna (zachovalá; přirozené větrání, historický charakter). • Dubové parkety ve většině obytných místností; dlažby ve zázemí. • Vlastní plynový kotel - topení + TUV (kombinovaný). • Rozvody v mědi, měřená voda, radiátory. • Optické datové připojení možné. Úložné prostory K bytu náleží sklepní místnost cca 9 m2 Investiční potenciál Díky historickému sloučení tří bytů lze uvažovat o několika scénářích: zachování velkorysého rodinného bytu, rozčlenění na více apartmánů pro nájemní výnos, či částečná rekonstrukce s vyčleněním pracovny / ordinace (po projednání se stavebním úřadem). Základní podklady v pasportu k dispozici. Cena a financování 29 990 000 Kč (≈ 185 tis. Kč/m2 při 162 m2 užitné plochy; sklep 9 m2 nezapočten). Zálohy na společné domovní služby, fond oprav a vodu činí pouze 6 097 Kč / měsíc. SVJ je dobře hospodařící, bez dluhů a s řádně vedeným fondem oprav. Byt je bez právních vad, hypoték a závazků
Prodej bytu 4+1/2xL, 107,7 m2, ulice Patočkova, Praha 6 - Střešovice
Soccer Reality vám exkluzivně zprostředkuje prodej prostorného slunného bytu o dispozici 4+1 a celkové ploše 107,7 m2, situovaný ve 3. patře…
Prodej, Byt 4+1, Praha 6
Hledáte ideální bydlení, které spojuje klid, prostor a výjimečnou lokalitu? Právě pro vás máme jedinečnou příležitost stát se majitelem prostorného…