Makléř: klientské centrum SATPO
Telefon: 296 336 ...
E-mail: info@sa ...
Zobrazit celý kontaktTelefon: 296 336 901, 702 205 205
E-mail: info@satpo.cz
Nemovitost nabízí
SATPO – SATPO Management s.r.o
Holečkova 3331/35, 150 00 Praha 5
Zobrazit kontakt na RK
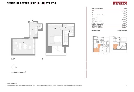
Hledáte moderní bydlení s odkazem pro další generace, které má vše, o čem jste snili? Představujeme vám prémiový mezonetový byt 2+kk s dokonalým oddělením denní a noční zóny. Prostor, soukromí, elegance. Byt v posledních dvou patrech noblesního rohového domu s velkorysou vnitřní plochou 96,6 m2 vám nabídne výjimečné zázemí na adrese, která má styl, atmosféru i duši. Ve vinohradské ulici Polská právě dáváme život bytovému domu z počátku 20. století. Už na jaře 2026 bude připravený vám zajistit životní komfort promyšlený do posledního detailu. Realitní projekt roku 2024 oceněný Cenou veřejnosti vyniká především respektem k historii a zachováním původních zdobných prvků v exteriérech i interiérech. Nachází se jen pár kroků od náměstí Jiřího z Poděbrad, Riegrových sadů, stylových kaváren, kvalitních škol i stanice metra. Historická atmosféra Královských Vinohrad se zde potkává s moderním komfortem - kombinace, kterou si zamilujete. Jaké je uspořádání tohoto mezonetu? Dispozici spodního patra tvoří vstupní hala s toaletou a obývací prostor s kuchyňským koutem o ploše 43 m2. Horní patro patří jen vám. Klid, ticho a soukromí najdete v prostorné ložnici se šatnou a v samostatné koupelně s WC. Byt i celý dům definují špičkové materiály a nadčasový design: - hliníková střešní okna - celoplošné podlahové vytápění - klimatizace ve všech obytných místnostech - přírodní dřevěná podlaha vyráběná na zakázku - exkluzivní bílá koupelna s vybavením Villeroy & Boch a Grohe. To vše doplňují elegantní společné prostory s historickými detaily, moderní výtah, sklep ke každé jednotce, čipový vstupní systém, videotelefon a příprava pro chytrou domácnost. K dispozici je navíc privátní wellness se saunou a fitness, stejně jako zelený vnitroblok pro chvíle klidu. V rezidenci PO7SKÁ je celkem 31 bytů, 2 ubytovací jednotky a 3 komerční prostory. Prodáno je přes 50 % jednotek a zájem nebývale roste - zajistěte si svůj domov už dnes. Jste připraveni psát nový příběh na mimořádném místě? Napište nám! Rádi vám o něm povíme více.
Prodej BYTU 2+kk a celkové ploše 61,3 m2, Sklep, Dvůr, Praha 3
Bytová jednotka o dispozici 2+kk, podlahové ploše 59,8 m2 a celkové ploše 61,3 m2 se nachází ve 3. podlaží sedmipodlažního bytového domu na Praze 3…
Byt, 2+kk, prodej, U Uranie, Praha 7, Holešovice, Praha
Jestli je něco, co dokonale vystihuje eleganci, designové zpracování, naprostý komfort a moderní bydlení v centru Prahy, tak je to právě tento byt. …