Makléř: Yates Hana
Telefon: 725 293 ...
E-mail: hana.ya ...
Zobrazit celý kontaktTelefon: 725 293 228
E-mail: hana.yates@century21.cz
Nemovitost nabízí
CENTURY 21 Tandem
Voršilská 130/10, 110 00 Praha 1
www.century21.cz/kancelar-tandem
Zobrazit kontakt na RK224 267 544
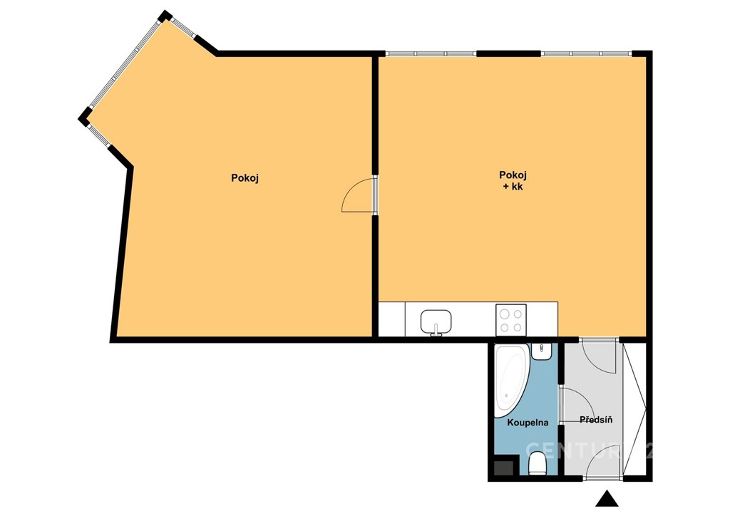
Hledáte bydlení, které kombinuje prvorepublikovou eleganci s dynamikou moderní Prahy a zároveň nabízí flexibilitu do budoucna? Nabízíme vám exkluzivní prodej světlého, prostorného bytu o ploše 65 m2 (+ sklep 1,5 m2) v atraktivní lokalitě na rozhraní Vinohrad a Žižkova, jen 5 minut chůze od metra A - Flora. Byt je v současné dispozici veden jako velkorysé 2+kk, ale jeho chytré členění a podlahová plocha umožňují snadnou proměnu na praktické 3+kk. Interiér a technický stav: Byt se nachází v 1. patře udržovaného cihlového domu s výtahem. Díky své rohové poloze a orientaci na jihozápad je obývací pokoj po celý den zaplaven přirozeným světlem. Právě velkorysá výměra a počet oken otevírají prostor pro úpravu dispozic podle vašich potřeb - ať už toužíte po oddělené ložnici, pracovně nebo dětském pokoji. Technické parametry a rekonstrukce: • Historie: Činžovní dům z roku 1928 prochází pravidelnou údržbou (2021 oprava střechy + optický internet, 2023 digitální vodoměry). • Stav bytu: V roce 2006 proběhla kompletní výměna rozvodů vody a elektřiny. Před 10 lety byla instalována nová dřevěná špaletová okna. • Vybavení: Na podlahách jsou zachovalé dřevěné parkety a keramická dlažba. Kuchyňský kout je vybaven dřevěnou kuchyňskou linku. • Vytápění: Vlastní plynový kotel zajišťuje nezávislost na topné sezóně a plnou kontrolu nad náklady. Lokalita s neopakovatelnou atmosférou Bydlení na této adrese nabízí to nejlepší z pražského lifestyle: • Gastro & Kultura: Desítky vyhlášených kaváren a restaurací v okolí. Farmářské trhy na "Jiřáku" se stanou vaším pravidelným sobotním rituálem. • Relaxace: Pár minut chůze do Riegrových sadů nebo k Žižkovské věži (Mahlerovy sady). • Dostupnost: Metro "A" Flora 5 min pěšky, tramvaje v těsné blízkosti. V centru Prahy jste do 7 minut. • Vybavenost: OC Flora, lékárny, banky, školy i školky - vše doslova "za rohem". Ekonomika bydlení Byt se vyznačuje velmi nízkými provozními náklady, což z něj činí ideální volbu pro vlastní bydlení i bezpečnou investici: • Fond oprav (2025): 1 868 Kč • Služby: 889 Kč / osoba • Celkem: 2 757 Kč + energie (Energetická náročnost budovy PENB bude doplněna - třída G). Financování a prohlídka: Nákup lze financovat hypotečním úvěrem, se kterým vám v rámci našeho servisu rádi pomůžeme zajistit nejvýhodnější podmínky na trhu. Díky své poloze a možnosti změny dispozice na 3+kk představuje tento byt vynikající příležitost k prestižnímu bydlení i k uložení kapitálu s vysokým potenciálem zhodnocení. Zaujala vás tato nabídka? Přijeďte se přesvědčit osobně o potenciálu tohoto prostoru. Kontaktujte mě a společně naplánujeme prohlídku v čase, který vám vyhovuje.
Prodej, Byt 2+kk, Praha 10
Realdomus ve výhradním zastoupení zprostředkuje prodej bytu o dispozici 2+kk, 80 m2, s garáží, v ulici Záběhlická, Praha 10. Blízko Hamerského…
Prodej byt 2+kk, 96 m2, Střížkov
V zastoupení developera nabízíme nový dokončený byt 2+kk, 96 m2 ve 4. NP. Nachází se v novém projektu Střížkovský dvůr, který se nachází v pěší…