Makléř: Faraon Reality s.r.o.
Telefon: 222 701 ...
E-mail: info@fa ...
Zobrazit celý kontaktTelefon: 222 701 119, 222 701 119
E-mail: info@faraon.cz
Nemovitost nabízí
Faraon Reality, s.r.o.
Polská 1211/26, 120 00 Praha 120 00
Zobrazit kontakt na RK222 701 517
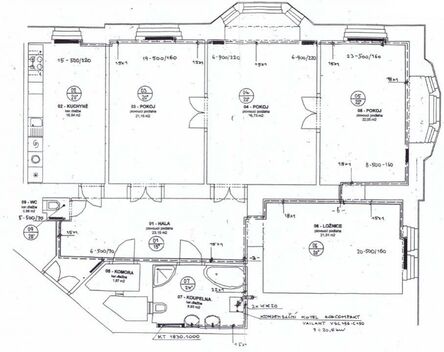
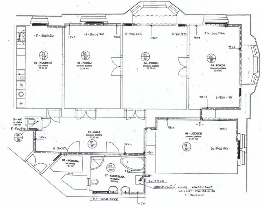
Exkluzivně nabízíme prodej prostorného, světlého bytu 4+1 (150 m2) po rekonstrukci v Praze 5. Byt s nádherným výhledem na Vyšehrad a orientací na jih a východ je situován ve 3.podlaží krásného secesního domu s novou fasádou, střechou a výtahem. Disponuje prostornou halou (23m2), kuchyní (17 m2), obývacím pokojem (27 m2), ložnicí s vestavěnými skříněmi (21 m2), dvěma dalšími pokoji (21 a 22 m2), koupelnou s vanou, sprchovým koutem, dvěma umyvadly a WC (9 m2), technickou místností a samostatným WC s umyvadlem. Všechny pokoje jsou průchozí. V kuchyni je sporák s indukční sklokeramickou deskou, digestoř, trouba, myčka, lednice s mrazákem a pračka. Plovoucí podlahy a dlažba v kuchyni, v koupelně, WC a u vstupu do bytu. Podlahové vytápění v koupelně a perfektně odizolovaná okna, vytápění plynovým kotlem Buderus umístěným v technické místnosti, bezpečnostní dveře Next, internet. Možnost uskladnění kol, kočárku atd. ve společném sklepě. Parking před domem (modré zóny). Vynikající dopravní dostupnost - byt je situován v klidné ulici pražského Smíchova mezi stanicemi metra Smíchovské nádraží a Anděl a je ideální rovněž pro reprezentaci a kancelář firmy nebo jako investice. Cena: 21.800.000 Kč. Energetická náročnost budovy: E. ID nemovitosti DDO0269-0002. <a href="https://www.eurobydleni.cz/ostatni/garaz/praha-5/obec-smichov/pronajem/"><strong>Pronájem garáže Praha 5, Smíchov</strong></a>
Prostorný byt 4+1, 124 m se zahradou a garážovým stáním v prestižní lokalitě Na Hřebenkách, Smíchov
Hledáte výjimečné bydlení v jedné z nejžádanějších pražských lokalit? Exkluzivně nabízíme k prodeji prostorný byt 4+1 o rozloze 124 m v ulici Na…
Prodej bytu 4+1, 148 m2, Praha - Nové Město, ul. Trojická
Představujeme Vám nádherný a prostorný byt o dispozici 4+1, který prošel kompletní a moderní rekonstrukcí a splňuje tak i ty nejnáročnější požadavky…
Prodej bytu 4+1 Praha 5, Smíchov na Eurobydleni.cz