Aktuálně můžete v lokalitě Praha vybírat z nabídky 2 352 bytů.
Přehled nemovitostí: prodej byty > 3+kk Zpět na přehled nabídek

Prodej byty 3+kk s garážovým stáním - Praha - Dolní Měcholupy

neuvedeno

neuvedeno

družstevní

G - Mimořádně nehospodárná

24050

Cena: 3835000 CZK / objekt
Poznámka k ceně: + anuita, kterou necháme vyčíslit k datu převodu, včetně provize, včetně právního servisu 1

Poslat dotaz k nabídce
Zásady používání osobních údajů

Prodejce

Makléř: Josef Muzikář

Telefon: 736 442 ...

E-mail: muzikar ...

Zobrazit celý kontakt

Nemovitost nabízí

Apres reality

28. října 400, Ledeč nad Sázavou

www.apresreality.cz

Zobrazit kontakt na RK

Zobrazit všechny nabídky RK

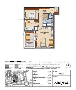
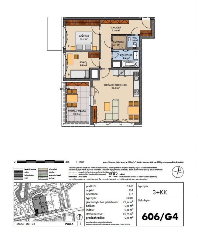
Exklizivně Vám nabízím družstevní byt o dispozici 3+kk + terasa + garážové stání, který se bude nacházet v 6.nadzemním podlaží bytového domu budově G4, Malý Háj, Etapa XII. Tato etapa by měla být podle předběžného plánu dokončena ještě v roce 2025. Takže o hodně dříve než většina nyní nabízených nedokončených bytů v této lokalitě a tomto projektu. Výměra bytu činí 72,6 m2 podlahová plocha + terasa 10,9 m2 + 1 garážové stání. Vnitřní dispozici můžete vidět na přiloženém půdorysu. Nemovitost je nabízena k prodeji formou převodu smlouvy za částku 3 835 000 Kč vč. garážového stání, výše nesplacené anuity byla ke dni zadání inzerce 7 504 104Kč vč. anuity garážového stání a vy si po dokončení a předání bytu budete moci vybrat z několika variant, jak s ní naložit. Pro představu uvádím několik z nich: Můžete splácet pravidelnou měsíční splátku, část v určených termínech v každém roce doplatit, nebo doplatit celou a byt převést do OV. Tento typ financování může být atraktivní pro zájemce, kteří hledají možnost postupného splácení většího finančního závazku. Jelikož se jedná o družstevní byt, neprokazujete výši příjmu, nepotřebujete hypoteční úvěr. Dopravní dostupnost - autobusová zastávka Kardausova je jen 3 minuty od domu a do metra A - Depo Hostivař je to 10 minut autobusem. V blízkosti najdete veškerou občanskou vybavenost - obchodní centra Europark Štěrboholy a Retail park (7 minut chůze - Lidl, Teta, Rossmann, Dr. Max), lékaře, školy, školky a sportovní vyžití jako cyklostezka, inline dráha, tenis a golfový areál Hostivař. Vizualizace na všech inzerovaných fotografiích slouží pouze k ilustraci budoucí podoby nemovitosti. Pokud Vás nemovitost zaujala, těším se na Vaše zavolání. PENB bude dodán developerem v nejbližší době, inzertní hodnota je tedy pouze orienteční, jelikož jde o novostavbu měla by být skutečná výrazně lepší. <a href="https://www.eurobydleni.cz/byty/4_kk/havlickuv-brod/obec-havlickuv-brod/prodej/"><strong>Prodej bytu 4+kk Havlíčkův Brod</strong></a>




Prodej bytu 3+kk Praha 10, Dolní Měcholupy na Eurobydleni.cz


Nahoru