Makléř: Černý Milan
Telefon: 608 135 ...
E-mail: archa-r ...
Zobrazit celý kontaktTelefon: 608 135 458, 737 851 059
E-mail: archa-rk@seznam.cz
Nemovitost nabízí
ARCHA realitní kancelář
Plzeňská 113, 15000 Praha 5
Zobrazit kontakt na RK
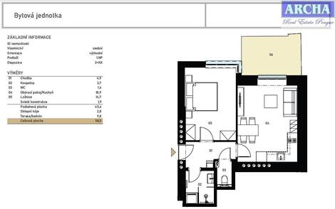
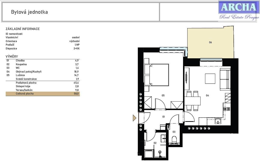
Prodej bytu o dispozici 2+kk je součástí rezidenčního projektu na Praze 6 Břevnov, který vzniká kompletní rekonstrukcí bytového domu v jedné z nejklidnějších částí Prahy. Lokalita uprostřed vilové čtvrti nabízí kombinaci zeleně, soukromí a výborné dostupnosti do centra. Součástí domu je soukromá sauna a posilovna. Půdorys bytu na 1. podlaží o podlahové ploše 45,4 m2 a celkové ploše 58 m2 zahrnuje obývací pokoj s přípravou na kuchyni, ložnici, vstupní chodbu, praktickou komoru, koupelnu se sprchovým koutem a samostatnou toaletou. K jednotce náleží také sklepní kóje. Byt bude dokončen v provedení fit out včetně hotové koupelny, podlah, dveří a kompletních rozvodů. Veškeré vybavení odpovídá současným standardům moderního bydlení. Vlastnictví osobní Dispozice 2+kk Celková plocha 58 m2 Podlahová plocha 45,4 m2 Podlaží: 1 Terasa 9,8 m2 Sklepní kóje 2,8 m2 Plastová okna, trojsklo Samostatné měření vodoměrem, elektroměrem. Vchodové dveře bezpečnostní, hladké. Podlaha dřevěná, třívrstvá, lamelová Ke koupi ihned. Bytový dům prochází celkovou rekonstrukcí, jejíž součástí je nový výtah, vstupní portály s bezpečnostními dveřmi a kvalitně provedené společné prostory s keramickou dlažbou a dřevěnými prvky. Obyvatelům bude k dispozici relaxační zóna se saunou a fitness, kolárna, prádelna a upravený vnitroblok s klidovou částí a posezením. Rezidence se nachází v tiché ulici, obklopené zelení a rezidenční zástavbou. V docházkové vzdálenosti je veškerá občanská vybavenost včetně obchodů, kaváren, škol i zastávek MHD. Lokalita nabízí pohodové zázemí s rychlým spojením do centra i na letiště. Občas jsou ale dny, kdy každý ocení více soukromí. Pro takové chvíle je ideálním místem odpočinku nový vnitroblok s klidovou zónou a posezením. Společenská část s grilem zase láká k sousedským setkáním a pohodovým večerům na čerstvém vzduchu. Největším překvapením rezidence je privátní RELAXAČNÍ ZÓNA se SAUNOU a FITNESS, která je dostupná pouze pro obyvatele domu. Provizi neplatíte. ARCHA realitní kancelář PRAHA Telefon: 737851059, 702072257, 608135458 Dat. schránka: vdc4dg E-mail: archa-rk@seznam.cz www.instagram.com/nemovitosti_archa www.facebook.com/nemovitosti.archa www.twitter.com/archa_life www.archa-rk.cz <a href="https://www.eurobydleni.cz/byty/2_kk/praha-9/obec-vysocany/pronajem/"><strong>Pronájem bytu 2+kk Praha 9, Vysočany</strong></a>
Slunný Mezonet 2+kk 72 m2 Boleslavská, Praha 3 - Vinohrady
Nabízíme k prodeji prostorný a světlý mezonetový byt o dispozici 2+kk a výměře 72 m2, situovaný v podkroví (7. NP a 8. NP) zrekonstruovaného…
Nový pasivní byt 2+kk s lodžií v projektu Terra Barrandov, Praha 5
Terra Barrandov Praha 5, ulice Silurská 2+kk 53,1 m2 s lodžií 7,2 m2 v 5. nadzemním podlaží Orientace bytu: SV Nabízíme moderní byt 2+kk v 5.…
Prodej bytu 2+kk Praha 6, Břevnov na Eurobydleni.cz