Aktuálně můžete v lokalitě Praha vybírat z nabídky 2 254 bytů.
Přehled nemovitostí: pronájem byty > 1+kk Zpět na přehled nabídek

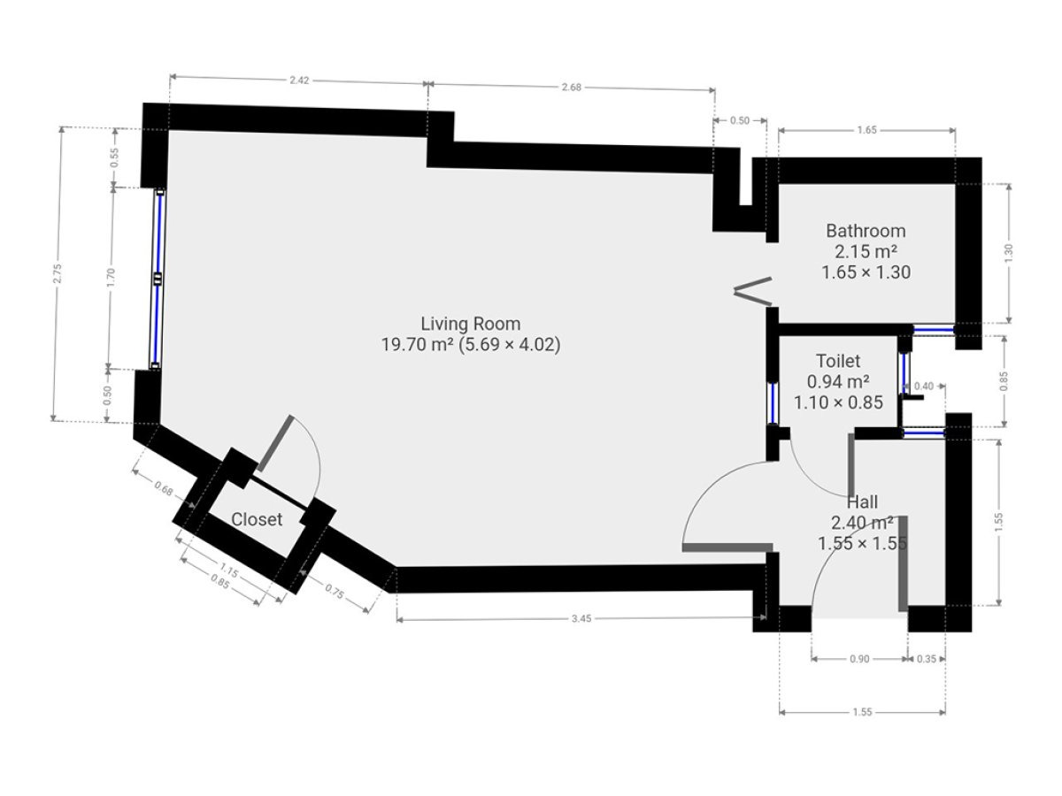
Pronájem bytu 1+kk, Adamovská, Michle, 15000 Kč/měs, 25 m2, Praha

25 m2

25 m2

osobní

G - Mimořádně nehospodárná

N2961

05.11.2025

Cena: 15000 CZK / objekt / měsíc
Poznámka k ceně: vratná jistota, náklady na bydlení 3900 Kč, poplatek za podnájem 1

Poslat dotaz k nabídce
Zásady používání osobních údajů

Prodejce

Makléř: Miloslava Kačerová

Telefon: 222 703 ...

E-mail: podpora ...

Zobrazit celý kontakt

Nemovitost nabízí

Ideální nájemce

Lazaretní 925/9, 615 00 Brno

idealninajemce.cz

Zobrazit kontakt na RK

Zobrazit všechny nabídky RK

K dlouhodobému podnájmu nabízíme příjemný byt o dispozici 1+kk na ulici Adamovská v klidné lokalitě Praha - Michle. Byt o celkové výměře 25 m2 se nachází v prvním patře cihlového domu. Byt se nabízí plně vybavený. Kuchyňský kout disponuje linkou se spotřebiči - trouba, sporák a lednice. Obývací část disponuje pohovkou a skříní. Je zde i šatna. V koupelně se nachází sprchový kout, umyvadlo a zrcadlo. Toaleta je oddělená. Předsíň disponuje botníkem, věšákem a pračkou. V okolí domu se nachází veškerá občanská vybavenost - restaurace, obchody, potraviny, školy a parky. Výborná dopravní dostupnost - zastávky Pod Jezerkou a Kloboučnická. Byt je volný k nastěhování od 1.1.2026. Uvedena energetická kategorie G, jelikož nemáme k dispozici PENB. Byt pronajímá Ideální nájemce - služba, se kterou budete bydlet bezstarostně a za férových podmínek. Když se něco přihodí, k dispozici jsou správci, kteří s vámi vše vyřeší. Pomůžeme s veškerou administrativou, s nastavením plateb a zajistíme vám speciální pojištění. Pojďte bydlet s námi!



Nahoru