Aktuálně můžete v lokalitě Praha vybírat z nabídky 2 254 bytů.
Přehled nemovitostí: pronájem byty > 2+kk Zpět na přehled nabídek

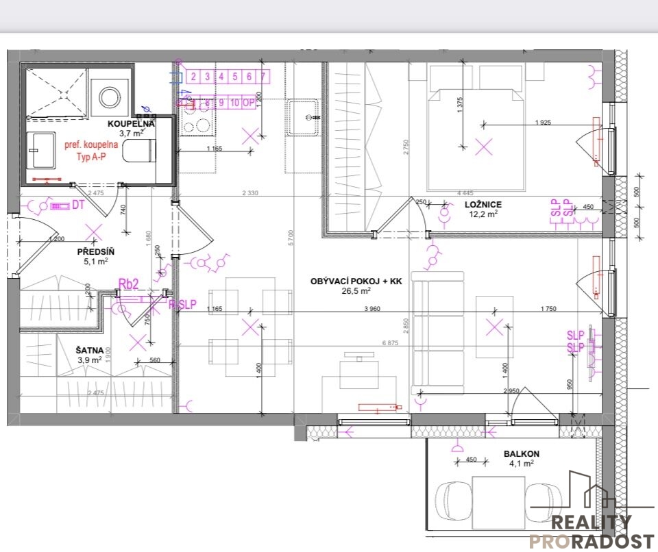
Pronájem, Byt 2+kk, Praha 10

62 m2

60 m2

osobní

A - Mimořádně úsporná

555777

26.11.2025

Cena: 23500 CZK / objekt / měsíc
Poznámka k ceně: při podepsaní smlouvy hradí se vratná kauce 30000kč 1

Poslat dotaz k nabídce
Zásady používání osobních údajů

Prodejce

Makléř: Vitaliya Kosteleba, DiS.

Telefon: 773 230 ...

E-mail: kostele ...

Zobrazit celý kontakt

Nemovitost nabízí

REALITNÍ AGENTURA PRORADOST

Vídeňská 1014/18b, 63900 Brno - Štýřice

www.reality-proradost.cz

Zobrazit kontakt na RK

Zobrazit všechny nabídky RK

Poznámka k ceně: 23500 Kč/měs + náklady na bydlení 5500.-Kč. Pronájem bytu 2+kk, Milánská, Horní Měcholupy, 60m2 K dlouhodobému podnájmu Vám nový byt 2kk s výměrou 60m2 a samostatnou sklepní kójí a parkovacím stáním. Byt se nachází ve 2. patře novostavby cihlového domu s výtahem, okna krásně těsní a izoluji venkovní hluk tak že v bytě je velmi ticho. Skládá se ze vstupní chodby z vestavěnou skříni, toalety s koupelnou zařízené sprchovým koutem, umyvadlem a přípojkou na pračku. Dále je šatna, ložnice a obývací pokoj společný s kuchyňským koutem. Obývací pokoj je ze vstupem na balkón. Všechna okna jsou opatřena předokenními žaluziemi. Dveře na balkon jsou zajištěna zámkem na klič a venkovními žaluziemi na dálkové ovládání. Kuchyně je zařízena spotřebiči - myčka, varná deska, digestoř a trouba. Byt můžete zařídit plně podle svých představ a potřeb. Byt je k dispozici k dlouhodobému nastěhování. Zálohové platby neobsahují zálohy na elektřinu a pojištění domácnosti. Pronajímající si vyhrazuje právo vybrat nájemce na základě jím zvolených kritérií. Prohlídky jsou možné po domluvě na těl 773230260



Nahoru