Makléř: Kamila Brabencová
Telefon: 608 042 ...
E-mail: kamila@ ...
Zobrazit celý kontaktTelefon: 608 042 828
E-mail: kamila@realitystrednicechy.cz
Nemovitost nabízí
Středočeské Bydlení s.r.o.
Rybná 716/24, Praha
Zobrazit kontakt na RK
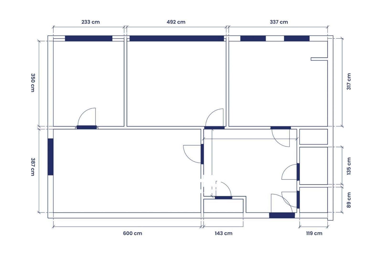
Prodej prostorného bytu 3+1 (71,5 m) v původním stavu ideální příležitost k moderní rekonstrukci Nabízíme k prodeji světlý a prostorný byt o dispozici 3+1 a podlahové ploše 71,5 m, který se nachází ve 3. nadzemním podlaží zatepleného bytového domu s novou fasádou, plastovými okny a výtahem. K bytu náleží také sklepní koje. Byt je v původním, udržovaném stavu, což představuje skvělou příležitost pro ty, kteří si chtějí bydlení upravit podle vlastních představ. Současně je byt řešen jako 3+1, nicméně pro lepší představu o možnostech prostoru jsme připravili vizualizace, které ukazují, jak by bylo možné byt propojením obývacího pokoje s kuchyní upravit na moderní 3+kk. V tomto návrhu by na místě současné kuchyně vznikla komfortní a prostorná ložnice. Díky velkorysé výměře obývacího pokoje (24 m) se ale nabízí i další varianta úprava na 4+kk, kdy by vznikly tři samostatné ložnice a prostorný obývací pokoj s kuchyňským koutem. Tento byt tak nabízí neomezené možnosti uspořádání, ať už hledáte praktické rodinné bydlení, nebo prostorný byt s velkým společenským prostorem. Celý byt působí vzdušně a prosvětleně, s dostatkem denního světla po celý den. Dům prošel kompletní revitalizací zateplení, nová fasáda, plastová okna, moderní vstup na čipový systém a nový výtah. Byt je v družstevním vlastnictví se zcela splacenou anuitou, tedy bez jakýchkoli dalších finančních závazků vůči družstvu. Měsíční náklady (fond oprav a správa domu): 2 590 Kč. Lokalita a občanská vybavenost Byt se nachází na velmi klidné adrese Nad Strouhou, Praha 4 Braník, v příjemné zeleni s výbornou dopravní dostupností i občanskou vybaveností. Zastávka MHD U Staré pošty (linky 106, 196, 197, 170, 121) je jen pár minut chůze, odkud se během 10 minut dostanete na metro C Budějovická nebo Kačerov, případně tramvají na Nádraží Braník s přímým spojením do centra. Autem jste na Jižní spojce nebo Barrandovském mostě do 3 minut. V okolí najdete supermarket Albert, lékárnu, poštu, základní i mateřskou školu a několik restaurací a kaváren. Pro aktivní odpočinek je ideální Branické nábřeží, cyklostezka A2 podél Vltavy, nebo oblíbený areál Hamr Braník s tenisovými kurty, fitness centrem a restaurací. Milovníci přírody ocení i Kunratický les a modřanskou rokli, které jsou v dojezdové vzdálenosti pár minut. Shrnutí: aktuální dispozice: 3+1, možnost úpravy na 3+kk nebo 4+kk 71,5 m + sklepní koje 3. NP s výtahem dům po kompletní rekonstrukci vstup na čipový systém družstevní vlastnictví, anuita splacena měsíční náklady: 2 590 Kč (fond oprav + správa domu) byt v původním stavu ideální k rekonstrukci vizualizace možného řešení dispozic součástí prezentace vhodné i pro vícečlennou rodinu díky promyšleným dispozicím. V případě zájmu mě neváhejte kontaktovat velmi ráda vás bytem osobně provedu a zodpovím všechny vaše dotazy. Majitel si vyhrazuje právo vybrat kupujícího podle vlastních kritérií. <a href="https://www.eurobydleni.cz/komercni-nemovitosti/obchodni-prostor/bruntal/obec-bruntal/prodej/"><strong>Prodej obchodních prostor Bruntál</strong></a>
Prodej bytu 3+1 po rekonstrukci Praha 4, Modřany, ulice Urbánkova 79 m prostoru, lodžie, velká před
Jsou byty, které mají svou lehkost prostorné, světlé a promyšlené tak, aby se v nich dobře žilo. Tento 3+1 v Modřanech prošel citlivou rekonstrukcí…
Prodej bytu 3+1, 82 m2, Praha, ul. Neustupného
Prodej velmi dobře dispozičně řešeného, slunného bytu 3+1, 82 m2, možno upravit jako 4+kk, s velkou zasklenou lodžií, nacházejícího se v 1. patře,…
Prodej bytu 3+1 Praha 4, Braník na Eurobydleni.cz