Aktuálně můžete v lokalitě Praha vybírat z nabídky 2 255 bytů.
Přehled nemovitostí: prodej byty > 3+kk Zpět na přehled nabídek

Byt, 3+kk, prodej, Buková, Praha 3, Žižkov, Praha

neuvedeno

neuvedeno

osobní

D - Méně úsporná

1509

04.12.2025

Cena: 8699900 CZK / objekt
Poznámka k ceně: Finální cena. Neplatíte žádnou provizi. Cena vč. právního servisu. 1

Poslat dotaz k nabídce
Zásady používání osobních údajů

Prodejce

Makléř: Bc. Vendy Tranová

Telefon: 735 572 ...

E-mail: vendy@n ...

Zobrazit celý kontakt

Nemovitost nabízí

NOVA ET VETERA

nám. Jiřího z Poděbrad 1554/6, Praha 3 - Vinohrady

www.novaetvetera.cz

Zobrazit kontakt na RK

Zobrazit všechny nabídky RK

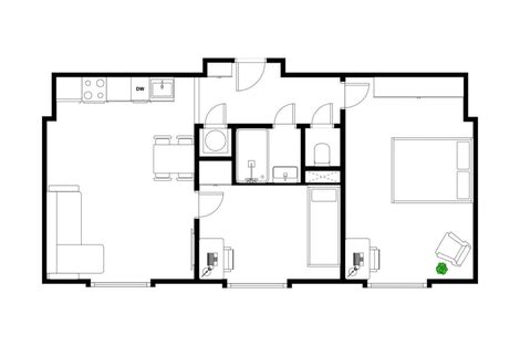
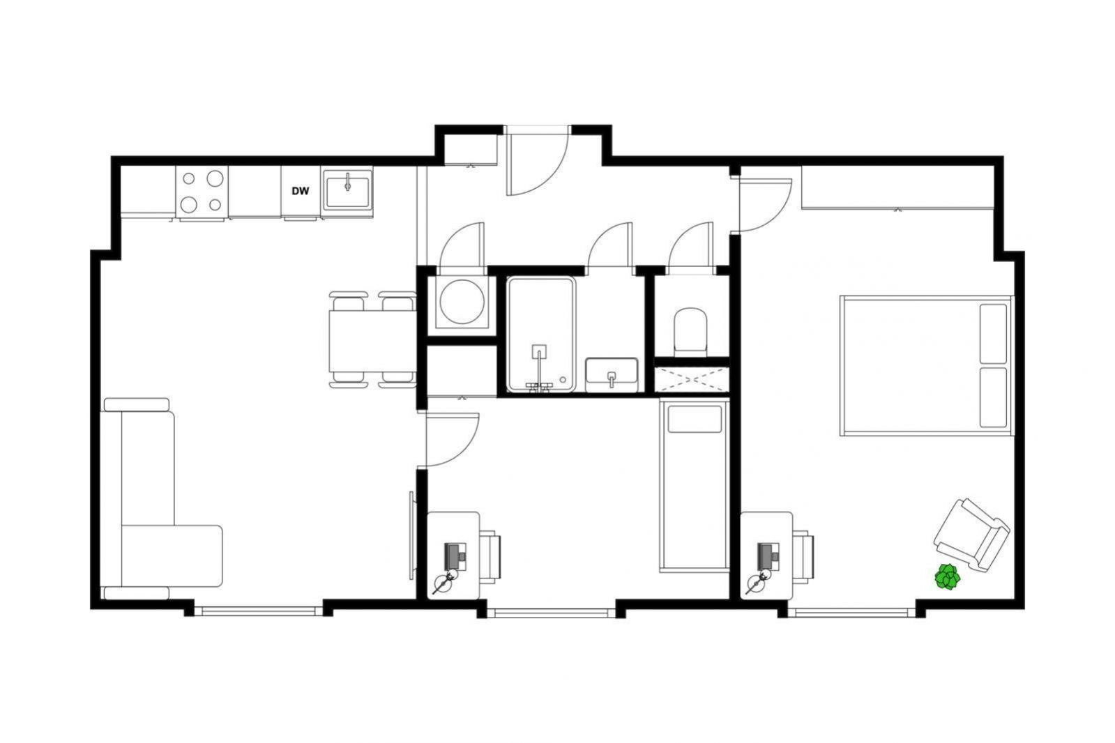
Přímý majitel nabízí k prodeji světlý byt 3+kk o celkové ploše 54 m, který se nachází v 3. nadzemním podlaží zrekonstruovaného a zatepleného domu v oblíbené rezidenční lokalitě Prahy 3 Žižkov, v ulici Bukova. Byt je situován v klidném prostředí obklopeném zelení, které zajišťuje příjemné a pohodové bydlení. Lokalita nabízí ideální kombinaci městského komfortu a přírody s výbornou dostupností do centra Prahy. Byt je vhodný pro jednotlivce, pár nebo jako investiční příležitost k pronájmu. Žižkov patří mezi vyhledávané části Prahy díky kompletní občanské vybavenosti a skvělé dopravní dostupnosti. Tramvajová zastávka Kněžská louka i autobusová zastávka Habrová se nacházejí jen pár minut chůze od domu a zajišťují rychlé spojení na metro i do centra města. V okolí je k dispozici veškerá infrastruktura školy, školky, obchody, restaurace, kavárny, knihovna i další služby. Nedaleko se nachází také sportovní a rekreační areál Pražačka. Pro odpočinek i sport jsou ideální blízké parky Židovské pece a Malešický park. Byt právě prošel kompletní a kvalitní rekonstrukcí, která zahrnuje nové rozvody elektřiny, vody a odpadů, nové podlahy, moderní obklady a dlažbu značky Marazzi, koupelnu se sprchovým koutem a sanitou Grohe a také novou kuchyňskou linku se spotřebiči Gorenje, na kterou je poskytována prodloužená záruka pět let. Dispozičně byt nabízí obývací pokoj s kuchyňským koutem, dva samostatné pokoje vhodné jako ložnice a dětský pokoj nebo pracovna, prostornou vstupní chodbu a moderní koupelnu s toaletou. K bytu náleží sklepní kóje o velikosti 2 m. Vytápění je centrální dálkové. Kompletní měsíční poplatky do SVJ vč. fondu oprav činí 4.478 ,- Kč. Byt je prodáván přímo majitelem, bez provize za zprostředkování. Cena zahrnuje kompletní právní servis včetně přípravy kupní smlouvy a advokátní úschovy. V případě zájmu si neváhejte prohlédnout dům pomocí virtuální prohlídky. Pro více informací a domluvení osobní prohlídky nás neváhejte kdykoliv kontaktovat. <a href="https://www.eurobydleni.cz/byty/3_kk/praha-9/obec-cerny-most/prodej/"><strong>Prodej bytu 3+kk Praha 9, Černý Most</strong></a>




Prodej bytu 3+kk Praha 3, Žižkov na Eurobydleni.cz


Nahoru