Makléř: Gorčík Michaela
Telefon: 296 399 ...
E-mail: info@mm ...
Zobrazit celý kontaktTelefon: 296 399 006
E-mail: info@mmreality.cz
Nemovitost nabízí
M&M reality holding a.s.
Krakovská 1675/2, 110 00 Praha 1
Zobrazit kontakt na RK800 100 446
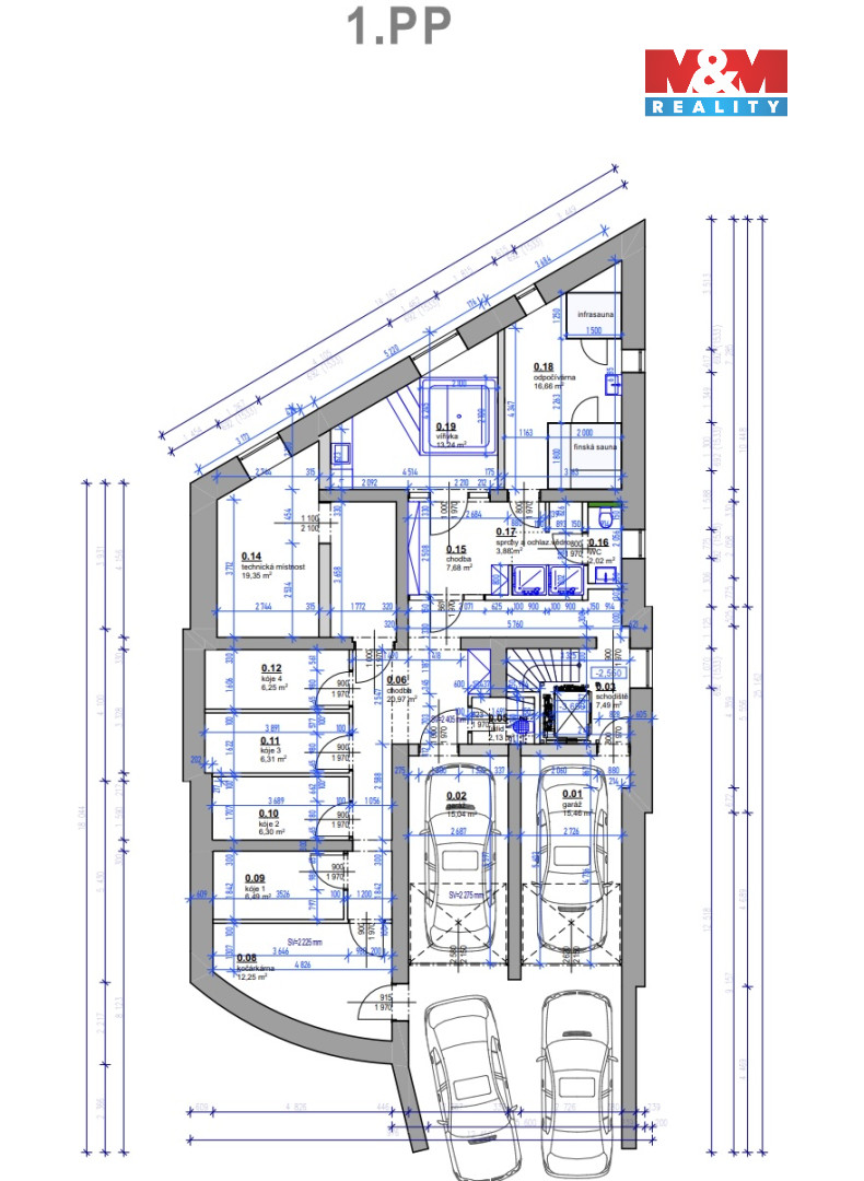
Nabízíme luxusní rezidenční byt 8+1 ve vysokém standardu provedení v rámci komorního rezidenčního projektu o pouhých třech bytových jednotkách. Projekt nabízí maximální soukromí, komfort a moderní technologie. Celková plocha bytu činí 166 m2 a doplňuje ji balkon o velikosti 3 m2. Dům je nízkoenergetický díky tepelnému čerpadlu a fotovoltaice na střeše. Tato jedinečná nemovitost poskytne budoucím majitelům naprosté soukromí i prestiž. K bytu náleží dvě parkovací stání a sklepní kóje o velikosti 6 m2. V celém bytě je teplovodní podlahové vytápění a koupelny jsou kompletně vybaveny včetně podomítkových baterií a veškeré sanity. Kupující má možnost přizpůsobit si interiér svým představám. Součástí projektu je podíl také na soukromé wellness s vířivkou, infrasaunou a finskou saunou, které dotváří luxusní atmosféru celého bydlení. Dokončení stavby: říjen 2026. Byty tohoto typu jsou vzácné, kontaktujte nás a rezervujte si své nové bydlení včas.
Prodej, Atypický byt, Praha 1
Nabízíme k prodeji zajímavý rozlehlý byt 6+1 o výměře 136,4 m2 ve 3. patře (bez výtahu) činžovního domu v centru, Praha 1, ul. Zlatnická. Byt je…
Prodej bytu 5+2, 91 m2, ul. Michalská, Praha 1 - Staré Město.
Atypická bytová jednotka 5+2 o rozloze 91 m2, rozdělená a kolaudovaná na dva byty (3+kk a 2+kk) se samostatnými vstupy, má 2x kuchyň s vestavěnými…