Aktuálně můžete v lokalitě Praha vybírat z nabídky 2 254 bytů.
Přehled nemovitostí: pronájem byty > 1+kk Zpět na přehled nabídek

Pronájem bytu 1+kk, Doudova, Podolí, 15900 Kč/měs, 33 m2, Praha

33 m2

33 m2

osobní

G - Mimořádně nehospodárná

N6913

01.12.2025

Cena: 15900 CZK / objekt / měsíc
Poznámka k ceně: vratná jistota, náklady na bydlení 3 099 Kč, poplatek za podnájem 1

Poslat dotaz k nabídce
Zásady používání osobních údajů

Prodejce

Makléř: Miloslava Kačerová

Telefon: 222 703 ...

E-mail: podpora ...

Zobrazit celý kontakt

Nemovitost nabízí

Ideální nájemce

Lazaretní 925/9, 615 00 Brno

idealninajemce.cz

Zobrazit kontakt na RK

Zobrazit všechny nabídky RK

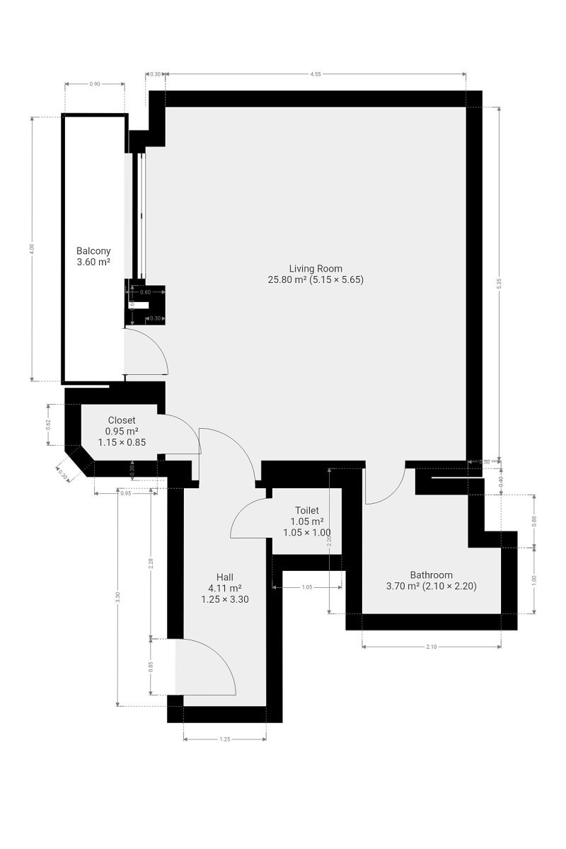
K dlouhodobému podnájmu nabízíme krásný byt o dispozici 1+kk v klidné lokalitě Praha 4 - Podolí. Byt o celkové výměře 33 m2 se nachází v přízemí zděného bytového domu. K bytu přísluší balkon a sklep a součástí bytu je také praktická komora. Byt se nabízí nevybavený. Kuchyňský kout disponuje lednicí s mrazákem, pračkou a elektrickým sporákem. Obývací část je zařízena patrem na spaní. V koupelně je vana, umyvadlo a zrcadlo. Toaleta je umístěna samostatně. V okolí domu najdeme restaurace a kavárny, prodejny potravin, lékárnu, plavecký stadion Podolí, sportovní areál Žluté lázně, parkově upravený a veřejně přístupný areál Vyšehrad atd. Pár minut chůze od domu je vzdálena autobusová zastávka Doliny a tramvajová zastávka Podolská vodárna a v docházkové vzdálenosti je stanice metra C - Pražského povstání. Byt je volný k nastěhování ihned. Energetická třída: G (průkaz nedodán).



Nahoru