Aktuálně můžete v lokalitě Praha vybírat z nabídky 2 172 bytů.
Přehled nemovitostí: prodej byty > 1+1 Zpět na přehled nabídek

Prodej podkrovního bytu, 50 m2 (+ 20 m2 užitné plochy), ul. Podle Kačerova - Praha 4-Michle

70 m2

50 m2

osobní

G - Mimořádně nehospodárná

8653

10.12.2025

Cena: na dotaz v RK
Poznámka k ceně: Cena zahrnuje kompletní právní servis a provizi RK. 1

Poslat dotaz k nabídce
Zásady používání osobních údajů

Prodejce

Makléř: Marek Révay

Telefon: 606 169 ...

E-mail: marek.r ...

Zobrazit celý kontakt

Nemovitost nabízí

RK Group realitní kancelář

K Dalejím 89/2, 152 00 Praha 5

www.rkgroup.cz

Zobrazit kontakt na RK

Zobrazit všechny nabídky RK

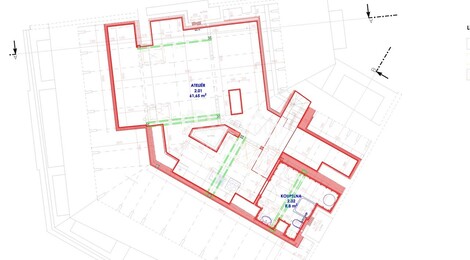
Nabízíme k prodeji podkrovní byt ateliérového typu, který se nachází ve 4. patře cihlového domu v oblíbené lokalitě Praha 4 - Michle, ulice Podle Kačerova č.p. 1074. Byt o podlahové ploše 50 m2, dále je k dispozici dalších cca 20 m2 užitné plochy ve snížené výšce, ideální například jako úložný prostor nebo relaxační zóna. Dřevěné prvky, střešní okna a čistý design vytvářejí jedinečnou atmosféru podkrovního domova. Dispozici tvoří schodišťový prostor, otevřený obytný prostor na který navazuje kuchyňský kout, moderní koupelna s vanou a toaletou. Celý byt byl nově vybudován s důrazem na kvalitu a detail. Stavba byla dokončena 1.11.2025. Vytápění i chlazení zajišťuje klimatizační jednotka Samsung, doplněná o elektrické podlahové topení ve všech místnostech. Ohřev teplé užitkové vody je řešen bojlerem. Součástí moderní kuchyně je vestavná elektrická trouba, varná deska, myčka šíře 45 cm a digestoř. Udržovaný cihlový dům se nachází v místě s vynikající dostupností do centra - metro Kačerov 500m, autobusové linky i napojení na Pražský okruh. V okolí je kompletní občanská vybavenost, obchody, kavárny i zeleň pro volný čas. Tento byt je ideální pro ty, kdo hledají stylové bydlení s osobitým kouzlem, v lokalitě s rychlým spojením do centra města. V případě zájmu o podrobnější informace k této nabídce, popřípadě o sjednání prohlídky, mě neváhejte kontaktovat.



Nahoru