Aktuálně můžete v lokalitě Praha vybírat z nabídky 2 165 bytů.
Přehled nemovitostí: pronájem byty > 3+1 Zpět na přehled nabídek

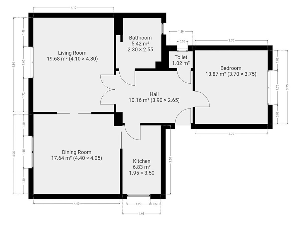
Pronájem bytu 3+1, Volkovova, Chodov, 75 m2, Praha

75 m2

75 m2

osobní

G - Mimořádně nehospodárná

N6928

23.01.2026

Cena: 27900 CZK / objekt / měsíc
Poznámka k ceně: vratná jistota, náklady na bydlení 7.000 Kč, poplatek za podnájem 1

Poslat dotaz k nabídce
Zásady používání osobních údajů

Prodejce

Makléř: Miloslava Kačerová

Telefon: 222 703 ...

E-mail: podpora ...

Zobrazit celý kontakt

Nemovitost nabízí

Ideální nájemce

Lazaretní 925/9, 615 00 Brno

idealninajemce.cz

Zobrazit kontakt na RK

Zobrazit všechny nabídky RK

Nabízíme k dlouhodobému podnájmu světlý a moderní byt 3+1 o rozloze 75 m2, který se nachází v 1. patře udržovaného rodinného domu v klidné a příjemné lokalitě Prahy 11 - Chodov. K bytu je možné využití zahrady o velikosti 388 m2 s parkovací stání na oploceném pozemku, které zajišťuje komfort i bezpečí. Byt je nabízen nevybavený, připravený k zařízení podle vašich představ.. Moderní kuchyňská linka je vybavena lednicí s mrazákem, elektrickou troubou, myčkou, digestoří a dostatkem úložného prostoru. Na kuchyň navazuje prostorná místnost vhodná pro jídelní kout, a další obytný pokoj poskytuje dostatek místa pro sedací soupravu a vybavení podle vlastních představ. K dispozici je ještě další samostatný pokoj, který může sloužit jako ložnice. Koupelna je vybavena sprchovým koutem a umyvadlem, toaleta je oddělená. Celkově byt působí útulně, čistě a svěže, ideální pro ty, kdo hledají klidné bydlení s výbornou dostupností a možností relaxace na zahradě. V okolí domu je kompletní občanská vybavenost - supermarket Albert, lékařská péče, školy a školky, dětská a sportovní hřiště, pošta, restaurace. Pro volný čas a relax je ideální blízký Hostivařský lesopark. Výbornou dopravní dostupnost zajišťuje nedaleká stanice metra C - Chodov a také autobusová doprava. Byt je k nastěhování ihned. Energetická třída: G (průkaz nedodán).



Nahoru