Aktuálně můžete v lokalitě Praha vybírat z nabídky 2 165 bytů.
Přehled nemovitostí: pronájem byty > 2+1 Zpět na přehled nabídek

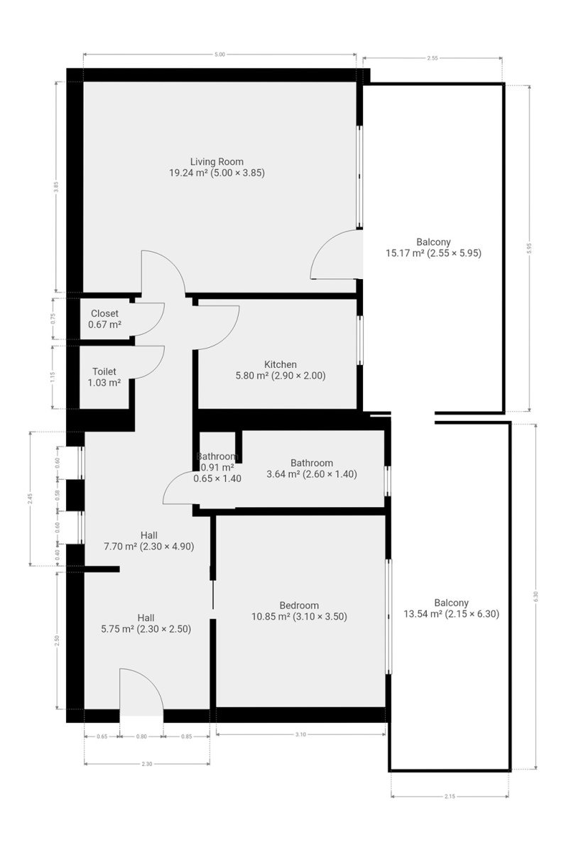
Pronájem bytu 2+1, Pod Šmukýřkou, Košíře, 21000 Kč/měs, 61 m2, Praha

61 m2

61 m2

osobní

G - Mimořádně nehospodárná

N4229

28.01.2026

Cena: 21000 CZK / objekt / měsíc
Poznámka k ceně: vratná jistota, náklady na bydlení 4796 Kč + elektřina a plyn, poplatek za podnájem 1

Poslat dotaz k nabídce
Zásady používání osobních údajů

Prodejce

Makléř: Miloslava Kačerová

Telefon: 222 703 ...

E-mail: podpora ...

Zobrazit celý kontakt

Nemovitost nabízí

Ideální nájemce

Lazaretní 925/9, 615 00 Brno

idealninajemce.cz

Zobrazit kontakt na RK

Zobrazit všechny nabídky RK

K dlouhodobému podnájmu nabízíme prosluněný byt po celkové rekonstrukci, nacházející se ve 2. patře starší cihlové budovy v klidné lokalitě Praha - Košíře o dispozici 2+1. Výhodou bytu je prostorná terasa, která nabízí krásný výhled na Malvazinky a Jinonice. Výměry bytu: - podlahová plocha 61 m2 - plocha terasy 28.8 m2 - celková užitná plocha 89.8 m2 Z prostorné vstupní haly se dostáváme nejdříve do ložnice, která disponuje dostatkem uložních prostor díky vestavěné šatní skříni. Dále plně vybavenou kuchyní skrz jídelní část až do obývacího pokoje, ve kterém můžeme ponechat sedačku, taburetku a konferenční stolek. Koupelna se nabízí s pračkou, toaleta je odděleně. Součástí pronájmu je i sklepní kóje. Byt je situovaný na jižní stranu. Vytápění a ohřev teplé vody plynovým kotlem. V okolí domu je dostatek prostor k bezproblémovému parkování (modré zóny). Pohodlný transport do centra zabezpečuje autobusová zastávka U Měchurky (3 min. pěšky) a tramvajová zastávka Kavalírka (17 min. pěšky). Uvedena energetická kategorie G, jelikož nemáme k dispozici PENB. Byt pronajímá Ideální nájemce - služba, se kterou budete bydlet bezstarostně a za férových podmínek. Když se něco přihodí, k dispozici jsou správci, kteří s vámi vše vyřeší. Pomůžeme s veškerou administrativou, s nastavením plateb a zajistíme vám speciální pojištění. Pojďte bydlet s námi!



Nahoru