Makléř: Bc. Vendy Tranová
Telefon: 735 572 ...
E-mail: vendy@n ...
Zobrazit celý kontaktTelefon: 735 572 232
E-mail: vendy@novaetvetera.cz
Nemovitost nabízí
NOVA ET VETERA
nám. Jiřího z Poděbrad 1554/6, Praha 3 - Vinohrady
Zobrazit kontakt na RK
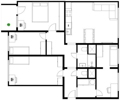
Přímý majitel nabízí k prodeji prostorný a světlý byt 5+kk o celkové výměře 95 m s balkonem, nacházející se v 5. nadzemním podlaží zrekonstruovaného panelového domu s výtahem. Nemovitost je situována v oblíbené části Prahy Hlubočepy, na ulici Pražského. Jedná se o lokalitu s kompletní občanskou vybaveností a skvělou dopravní dostupností. Přímo u domu se nachází autobusová zastávka Dreyerova a v docházkové vzdálenosti také tramvajová zastávka K Barrandovu. V okolí najdete školy, školky, lékárny, poštu, zdravotnická zařízení, restaurace, kavárny, obchody i supermarket. Zároveň je oblast obklopena množstvím zeleně v bezprostřední blízkosti se nachází Prokopské údolí a Malá Chuchle, které poskytují ideální podmínky pro procházky a volnočasové aktivity. Byt právě prochází kompletní rekonstrukcí, která zahrnuje nové rozvody elektřiny, vody a odpadů, moderní podlahy, kvalitní obklady a dlažbu italské značky Marazzi, novou koupelnu a toaletu se sanitou Grohe a zcela novou kuchyňskou linku vybavenou vestavnými spotřebiči Gorenje s prodlouženou pětiletou zárukou. Nový majitel tak získá byt ve vysokém standardu, připravený k okamžitému nastěhování bez nutnosti dalších investic. Dispozičně byt nabízí prostorný obývací pokoj s kuchyňským koutem, čtyři samostatné pokoje vhodné jako ložnice, dětské pokoje či pracovna. Hlavní ložnice má přímý vstup na balkon o velikosti 4 m. Koupelna je vybavena sprchovým koutem a toaletou, k dispozici je také další samostatná toaleta, prostorná technická místnost a vstupní chodba s možností vytvoření dostatečných úložných prostor. K bytu náleží sklepní kóje o výměře 2 m a společná kolárna. Orientace bytu na jihovýchod a severozápad zajišťuje příjemné světelné podmínky během celého dne. Vytápění je centrální dálkové a energetická náročnost budovy je aktuálně ve třídě D. Na příští rok je navíc plánovaná revitalizace domu včetně zateplení, které přispěje ke snížení energetické náročnosti a celkovému zlepšení komfortu bydlení. Byt prodává přímo majitel, takže neplatíte žádnou provizi. Uvedená cena je konečná a zahrnuje kompletní právní servis, což umožňuje rychlý a bezstarostný průběh celého obchodu. Fotografie v inzerci jsou ilustrační a pocházejí z jiného dokončeného projektu, avšak odpovídají standardu a stylu probíhající rekonstrukce. V případě zájmu o více informací nebo sjednání prohlídky nás neváhejte kontaktovat. <a href="https://www.eurobydleni.cz/byty/4_kk/praha-6/obec-vokovice/prodej/"><strong>Prodej bytu 4+kk Praha 6, Vokovice</strong></a>
Mezonetový penthouse 5+kk 204 m2 s balkonem a terasou, 2 parkovací stání v rezidenční novostavbě
Hledáte výjimečný prostor, kde se snoubí velkoměstský styl s klidem a soukromím? Představujeme vám prémiový mezonetový penthouse 5+kk s dechberoucí…
Velkorysý, exklusivní byt na prodej 217 m2 s terasa a lodžiemi, soukromá zahrada 122m2, garážové st
Velkorysý exklusivní byt 5+kk ve Vile moderní rezidence s noblesou Byt 201 představuje výjimečné rodinné bydlení s architekturou, která dává…
Prodej bytu 5+kk Praha 5, Hlubočepy na Eurobydleni.cz