Makléř: Lucie Nagyová
Telefon: 725 992 ...
E-mail: lucie.n ...
Zobrazit celý kontaktTelefon: 725 992 920
E-mail: lucie.nagyova@kotula.cz
Nemovitost nabízí
Realitní kancelář KOTULA s. r. o.
Na Perštýně 342/1,, Praha 1
Zobrazit kontakt na RK
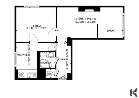
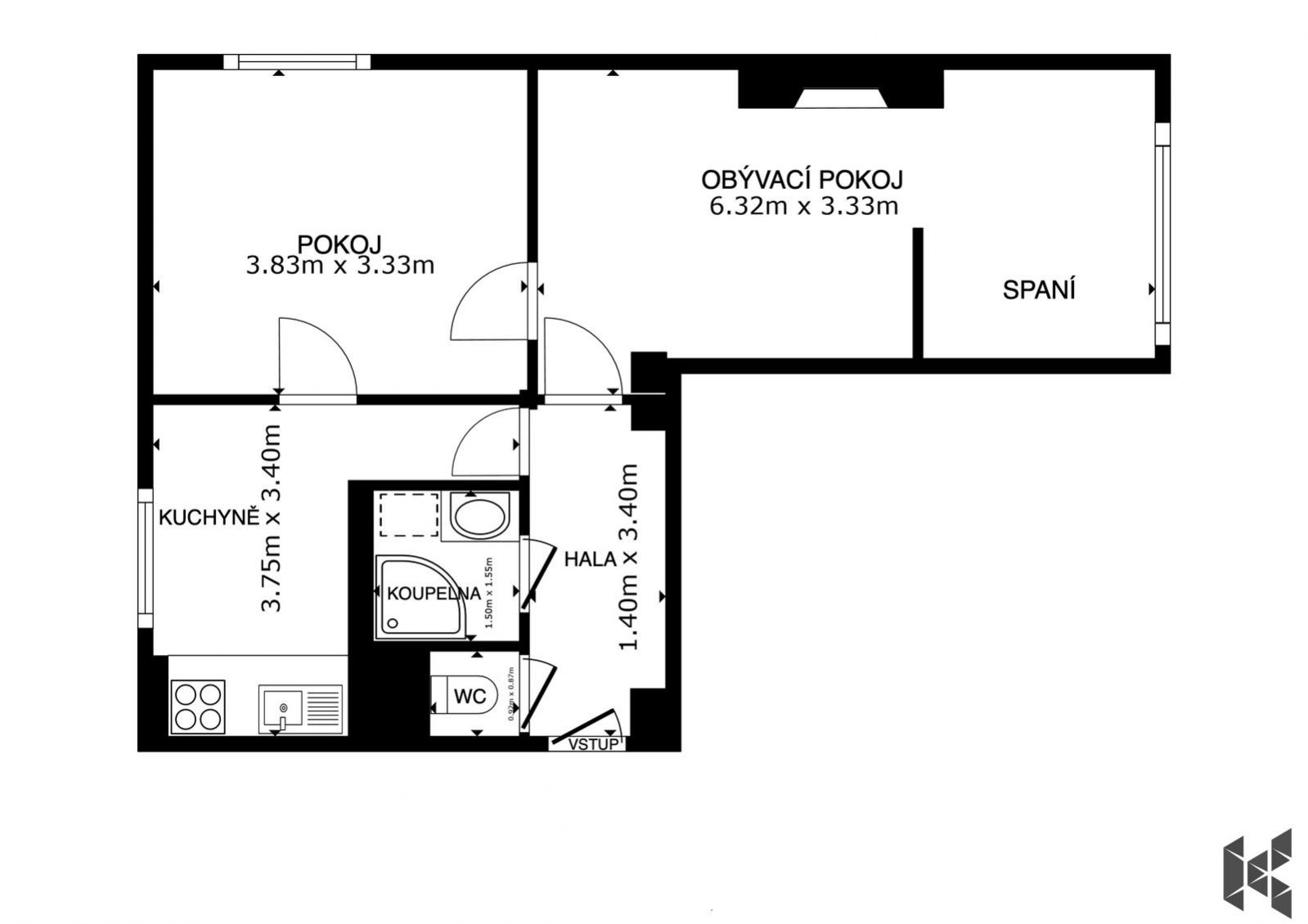
Hledáte byt, kde se potká dobrý vkus a klidná lokalita? Pak se zastavte u téhle nabídky. Byt 2+1 ve 3. podlaží důkladně zrekonstruovaného domu Na Lučinách na Žižkově je přesně ten typ bytu, který má všechno hotové, vyladěné a připravené ihned k nastěhování. Co tu na vás čeká? 50m2 promyšleného prostoru dispozice 2+1, kterou lze využívat díky praktické velikosti obývacího pokoje také jako 3+1 k dispozici je i sklep (+ dalších 1,7m2) 3. NP (2. patro), ideální výška dostatek světla a nemusíte zdolávat schody - v domě je výtah kompletně zrekonstruovaný byt, kde se nešetřilo od podlah přes koupelnu až po kuchyň kompletně zrekonstruovaný činžovní dům, který působí jako novostavba byt je částečně zařízený na chodbě úložné prostory za domem je k dispozici parkoviště jen pro vlastníky bytů (parkování stylem kdo dřív přijde) cena je včetně provize, právního servisu, bezpečné úschovy a všech poplatků lze jednoduše financovat hypotékou se kterou pomůžeme prodávající si vyhrazuje práva na výběr zájemce dle vlastních kritérií Ulice Na Lučinách, Praha 3 - Žižkov je klidná a příjemná bez hluku, ale s veškerým městským komfortem v dosahu: kousek domu jsou parky Židovské pece a Třešňovka ideální pro běhání, pejska, nebo jen tak posedět na lavičce. pár minut pěšky je to na tramvaj (zastávka Kněžská luka), díky které jste v dalších částech Prahy za chvilku obchody (Albert, Penny, Kaufland) kavárny, restaurace, služby plánovaná nová poliklinika a park díky výstavbě na Nákladovém nádraží Žižkov školy a školky v docházkové vzdálenosti Těšíme se na viděnou na prohlídce <a href="https://www.eurobydleni.cz/pozemky/stavebni-pozemek-komercni/tabor/obec-tabor/prodej/"><strong>Prodej komerčního pozemku Tábor</strong></a>
Prodej, Byt 2+1, Praha 4
Tenhle byt je přesně to, co hledáte, pokud sníte o bydlení, které si můžete od základů vytvořit podle svých představ. Najdete ho v klidné lokalitě…
Prodej bytu 2+1, 75 m2, Praha -Kyje, ul. Lipnická
Nabízíme k prodeji tento krásný podkrovní byt o dispozici 2+1 a ploše 75 m2, který je situován v 6. podlaží domu, díky čemuž si užijete nerušený klid…
Prodej bytu 2+1 Praha 3, Žižkov na Eurobydleni.cz