Makléř: Dana Rudolfová Burdová
Telefon: 737 284 ...
E-mail: rudolfo ...
Zobrazit celý kontaktTelefon: 737 284 117, 737 284 117
E-mail: rudolfova@donnareality.cz
Nemovitost nabízí
Realitní kancelář Donna
Slavíkova 1608/15, 120 00 120 00 Praha 2
Zobrazit kontakt na RK737 284 117
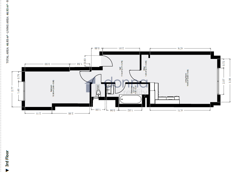
Nabízíme k pronájmu příjemný, slunný byt 2+kk, plocha cca 47 m2, ve 2.patře udržovaného činžovního domu s výtahem, ulice Šrobárova, Praha 3 - Vinohrady. Byt je po kompletní, právě dokončené rekonstrukci, je vybavený novou kuchyňskou linkou s varnou deskou, troubou a myčkou, bez nábytku, koupelna s vanou, samostatná toaleta s bidetovou sprškou. Pokoj je orientovaný na jih, ložnice do tichého vnitrobloku. V pokojích nově broušené parkety, v předsíni a koupelně dlažba, dálkové topení. Hezká část ulice sousedící s činžovními vilami, u stanice metra Flora a obchodního centra. Vhodné pro 1 - 2 osoby bez domácích mazlíčků, nekuřáci, z důvodu převodu měřidel pronájem možný pouze pro občany ČR či cizince s trvalým pobytem. Nájemné 22.000 Kč + poplatky 4.500 Kč / 1 osoba, 6.910 Kč / 2 osoby + elektřina cca 1.000 Kč. Kauce 2x nájem, provize RK 1 nájem.
Pronájem bytu : Praha 7 - Bubeneč, Šmeralova
Nabízíme k pronájmu velice hezký, moderně zařízený byt 2+kk s užitnou plochou 52m2, který se nachází ve 2.patře kompletně zrekonstruovaného secesního…
Pronájem bytu 2kk(56m2) - Praha -Vinohrady - Náměstí Jiřího z Poděbrad
Zcela nový, luxusní, prostorný a klimatizovaný byt 2kk (56 m2) s parkovacím místem v 5. nadzemním podlaží kompletně rekonstruovaného činžovního domu…