Makléř: Lucie Nagyová
Telefon: 725 992 ...
E-mail: lucie.n ...
Zobrazit celý kontaktTelefon: 725 992 920
E-mail: lucie.nagyova@kotula.cz
Nemovitost nabízí
Realitní kancelář KOTULA s. r. o.
Na Perštýně 342/1,, Praha 1
Zobrazit kontakt na RK
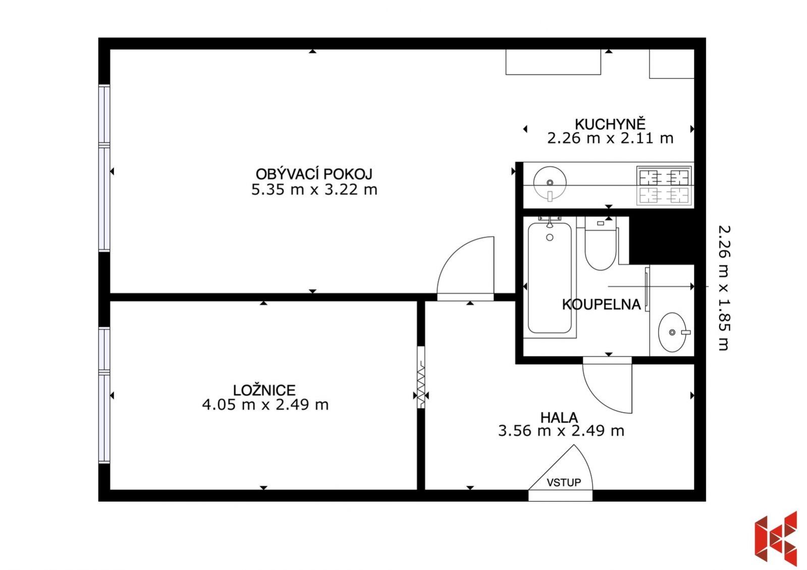
Hledáte startovní nebo investiční byt v klidné lokalitě a přitom na dosah centra Prahy? Pak mám pro Vás tuto jedinečnou nabídku bytu o dispozici 2+kk se sklepem, který se nachází ve 4. patře revitalizovaného panelového domu v ulici Žufanova, Praha 6 - Řepy. Co Vám byt nabízí: dispozice 2+kk, užitná plocha 42,02 m, k tomu sklep dalších 2 m, 4. patro (5. NP) s výtahem, nově instalované venkovní žaluzie na dálkové ovládání, orientace na východ, ihned k nastěhování, čistý a nově revitalizovaný dům se zateplením a novou fasádou osobní vlastnictví, lze jednoduše financovat hypotékou, výborná občanská vybavenost, přesná adresa: Žufanova 1097/6, 163 00 Praha - Řepy cenu včetně právního servisu, provize, bezpečné úschovy a všech poplatků Je možné finanancovat hypotékou, prodávající si vyhrazuje právo vybrat kupujícího na základě jím zvolených kritérií. Bydlení v ulici Žufanova zajišťuje pohodlný život v oblíbené městské části Praha Řepy. V bezprostředním okolí naleznete veškerou občanskou vybavenost: supermarkety, menší obchody, restaurace, kavárny i zdravotnická zařízení. Nedaleká zastávka tramvaje a autobusu Blatiny zajišťuje rychlé spojení jak do centra města, tak do dalších částí Prahy. K dispozici je také dostatek zelených ploch a sportovišť, které ocení jak aktivní jedinci, tak rodiny. Pro více informací mě neváhejte kontaktovat. <a href="https://www.eurobydleni.cz/byty/1_kk/teplice/obec-teplice/pronajem/"><strong>Pronájem bytu 1+kk Teplice</strong></a>
Krásný pasivní byt 2+kk s lodžií v projektu Terra Barrandov, Praha 5
Terra Barrandov Praha 5, ulice Silurská 2+kk 49,4 m2 s lodžií 6,6 m2 v 2. patře Orientace bytu: Z Nabízíme moderní byt 2+kk v 2. patře prestižního…
Prodej, Byt 2+kk, Praha 10
Nabízíme k prodeji moderní byt o dispozici 2+kk a velikosti 54,3 m2 s balkonem o ploše 5 m2, který se nachází v rezidenční čtvrti Malý Háj v Praze,…
Prodej bytu 2+kk Praha 6, Řepy na Eurobydleni.cz