Aktuálně můžete v lokalitě Praha vybírat z nabídky 2 254 bytů.
Přehled nemovitostí: pronájem byty > 1+kk Zpět na přehled nabídek

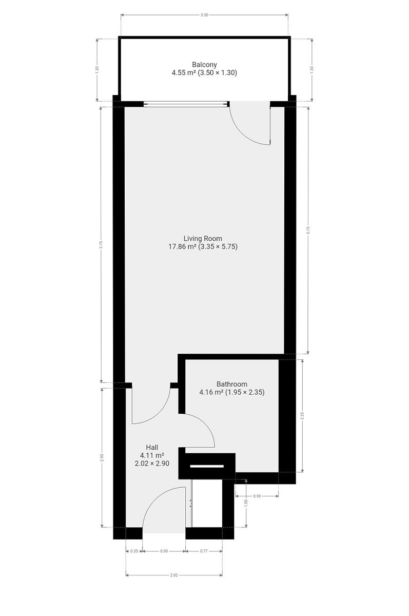
Pronájem bytu 1+kk, Sazovická, Zličín, 30 m2, Praha

30 m2

30 m2

osobní

C - Úsporná

N6053

03.12.2025

Cena: 16500 CZK / objekt / měsíc
Poznámka k ceně: vratná jistota, náklady na bydlení 3.500,-Kč poplatek za podnájem 1

Poslat dotaz k nabídce
Zásady používání osobních údajů

Prodejce

Makléř: Miloslava Kačerová

Telefon: 222 703 ...

E-mail: podpora ...

Zobrazit celý kontakt

Nemovitost nabízí

Ideální nájemce

Lazaretní 925/9, 615 00 Brno

idealninajemce.cz

Zobrazit kontakt na RK

Zobrazit všechny nabídky RK

K dlouhodobému podnájmu Vám nabízíme slunný, útulný byt o dispozici 1+kk s balkonem, garážovým parkovacím stáním a sklepní kójí ve velmi klidné, přesto dobře dopravně dostupné lokalitě pražského Zličína. Byt se nachází ve zvýšeném přízemí cihlového domu. Skládá se ze vstupní chodby vybavené vestavnou šatní skříní, koupelny společné s toaletou zařízené zařízené pračkou, sprchovým koutem a umyvadlem. Obývací pokoj společný s kuchyňským koutem je zařízen obývací stěnou. Lze z něho vejít na prostorný balkon. O zajištění bezpečnosti se postarají elektrické předokenní rolety, které oddělují balkón od obývacího pokoje. Kuchyně je zařízena všemi spotřebiči - lednice, varná deska, digestoř, trouba a vestavná mikrovlnná trouba. Byt se nachází v klidné lokalitě, ulice Sazovická na Zličíně. Jen pár kroku od domu je autobusová zastávka "Nový Zličín". Na metro B to máte jednu zastávku autobusem nebo 5 minut klidnou procházkou. Stejně tak do OC Metropole Zličín. K bytu náleží garážové parkovací stání a sklepní kóje. Zálohové platby už obsahují zálohy na elektřinu a pojištění domácnosti. Byt je k dispozici od 1.3.2026.



Nahoru