Makléř: Miloslava Kačerová
Telefon: 222 703 ...
E-mail: podpora ...
Zobrazit celý kontaktTelefon: 222 703 030
E-mail: podpora@idealninajemce.cz
Nemovitost nabízí
Ideální nájemce
Lazaretní 925/9, 615 00 Brno
Zobrazit kontakt na RK222 703 030
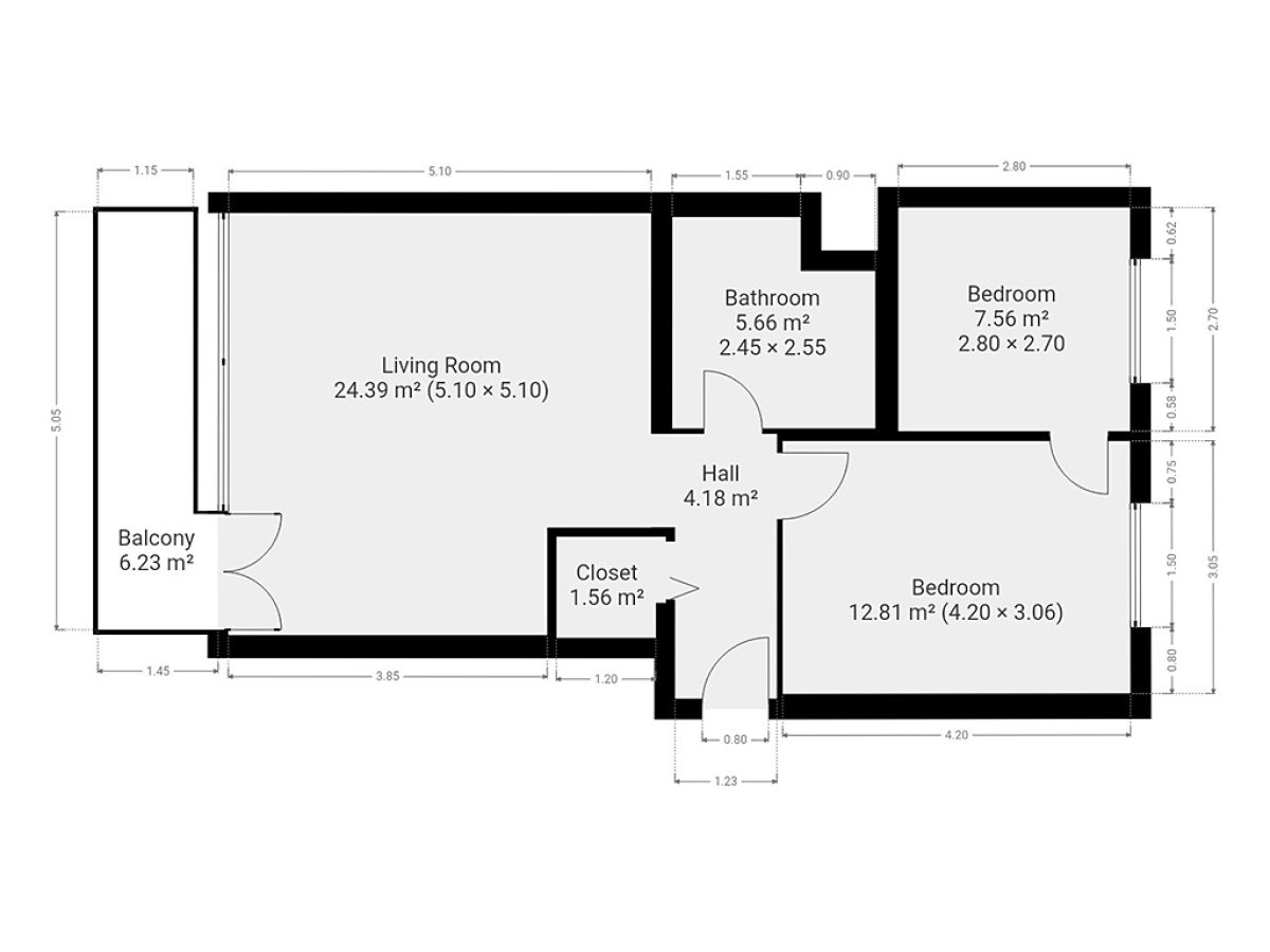
K dlouhodobému podnájmu Vám nabízíme velmi světlý byt o dispozici 3+kk, 59m2 v klidné, přesto dobře dopravně dostupné lokalitě s kompletní občanskou vybaveností v pražské Zbraslavi. Byt se nachází ve 4. patře panelového domu s výtahem. Skládá se ze vstupní chodby, na kterou navazuje prostorná komora. Dvou průchozích pokojů, koupelny s velkou rohovou vanou, umyvadlem a toaletou. Obývací pokoj je společný s kuchyňským koutem. Z obývacího pokoje lze vejít na prostornou lodžii. Dům se nachází v lokalitě s veškerou občanskou vybaveností - ihned u domu se nachází hypermarket Albert, LIDL je cca 5 minut chůze. Dále pošta, několik základních i mateřských škol a ostatní služby. Autobusová zastávka s přímým spojením na Smíchovské nádraží je od domu cca 2 minuty chůze. Na Smíchově jste autobusem za 15 minut minut. Byt je k dispozici od 1.3.2026 nebo po domluvě i dřív. Zálohové platby už obsahují zálohy na elektřinu a pojištění domácnosti.
Pronájem, Byt 3+kk, Praha 7
Nabízíme k pronájmu prostorný byt (3+kk), který se nachází ve velmi žádané části Prahy 7 - Holešovice, v uzavřeném areálu bývalého Holešovického…
Pronájem bytu 3+kk, 159 m2, Praha 2 Vinohrady
Nabízíme k pronájmu prostorný mezonetový byt 3+kk o podlahové ploše 159 m2, situovaný v 5. a 6. podlaží secesního domu s novým výtahem. Byt je plně…