Makléř: Jiří Šimon nájem
Telefon: 737 447 ...
E-mail: najem@j ...
Zobrazit celý kontaktTelefon: 737 447 189
E-mail: najem@jirisimon.cz
Nemovitost nabízí
ORANGE PROPERTY s.r.o.
Kaprova 42/14, Praha
Zobrazit kontakt na RK
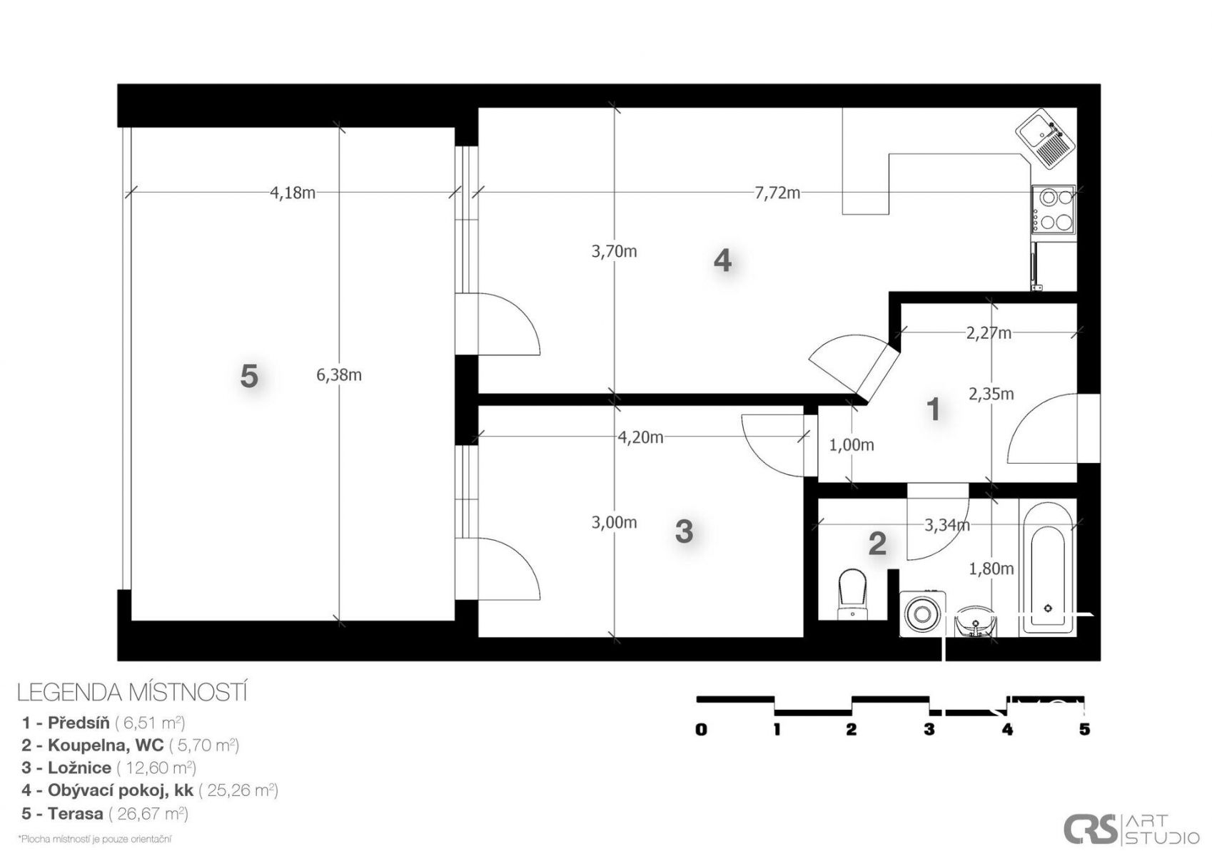
Nabízíme k pronájmu velmi příjemný byt 2+kk o podlahové ploše 52 m s opravdu nadstandardní terasou 26 m, v atraktivní lokalitě Praha 4 Nusle, ulice Na Pankráci 404/30a. Byt má prakticky řešenou dispozici: obývací pokoj s kuchyňským koutem, samostatnou ložnici, koupelnu a předsíň s místem pro úložné řešení. Největší předností je velká terasa, která výrazně rozšiřuje obytný prostor ideální na ranní kávu, večerní posezení i domácí mini zahrádku. Lokalita Na Pankráci nabízí skvělou občanskou vybavenost a výbornou dopravní dostupnost. V okolí najdete obchody, restaurace, služby i možnosti sportu a relaxu. Do centra se dostanete rychle MHD i autem. Byt je vhodný pro jednotlivce nebo pár, kteří hledají moderní bydlení s velkým venkovním prostorem v žádané části Prahy. Kromě vybavené kuchyně není vybavený, tak jak je vyobrazeno na fotografiích. Nájemné je 22.500,- Kč / měsíčně + zálohy na 5.354,- zálohy na energie a služby, které se skládají z: 1500,- / měs. elektřina v bytě 344,- / měs. studená voda 1175,- / měs. teplá voda 856,- / měs. topení 297,- / měs. úklid společných částí domu 153,- /měs. elektřina společných částí domu 63,- / měs. výtah 132,-/měs. odvoz odpadků 834,- domovnické služby Byt je připravený k nastěhování. Při nastěhování se platí 27.854,- nájemné na první měsíc + 27.854,- kauce + 27.854,-provize.
2+kk, 42 m2, 1 p., nevybaven, ul. Za Strahovem, Praha 6 - Břevnov
Zprostředkujeme Vám pronájem velmi tiché a příjemné bytové jednotky 2+kk o celkové ploše 42 m2, nacházející se v prvním patře třípatrového cihlového…
REZERVOVÁNO / Pronájem bytu 2+kk, terasa (64,8m2), parkovací místo, sklep, MARINA ISLAND, Praha 7 -
REZERVOVÁNO / Pronájem kompletně vybaveného, nového, designového a prostorného bytu 2+kk (64,8m2) s terasou a okouzlujícími výhledy na Vltavu a…
Pronájem bytu 2+kk Praha 4, Nusle na Eurobydleni.cz