Makléř: Ing. Diana Ferencová
Telefon: 724 966 ...
E-mail: ferenco ...
Zobrazit celý kontaktTelefon: 724 966 736
E-mail: ferencova@findeo.cz
Nemovitost nabízí
Findeo
Radlická 255/24, Praha
Zobrazit kontakt na RK
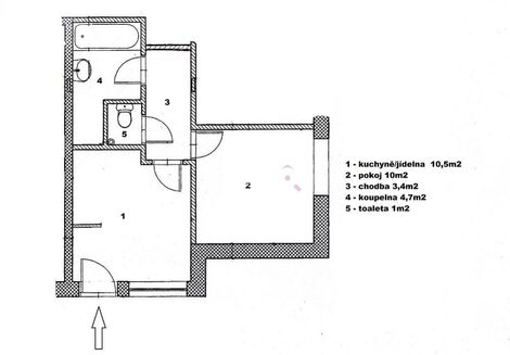
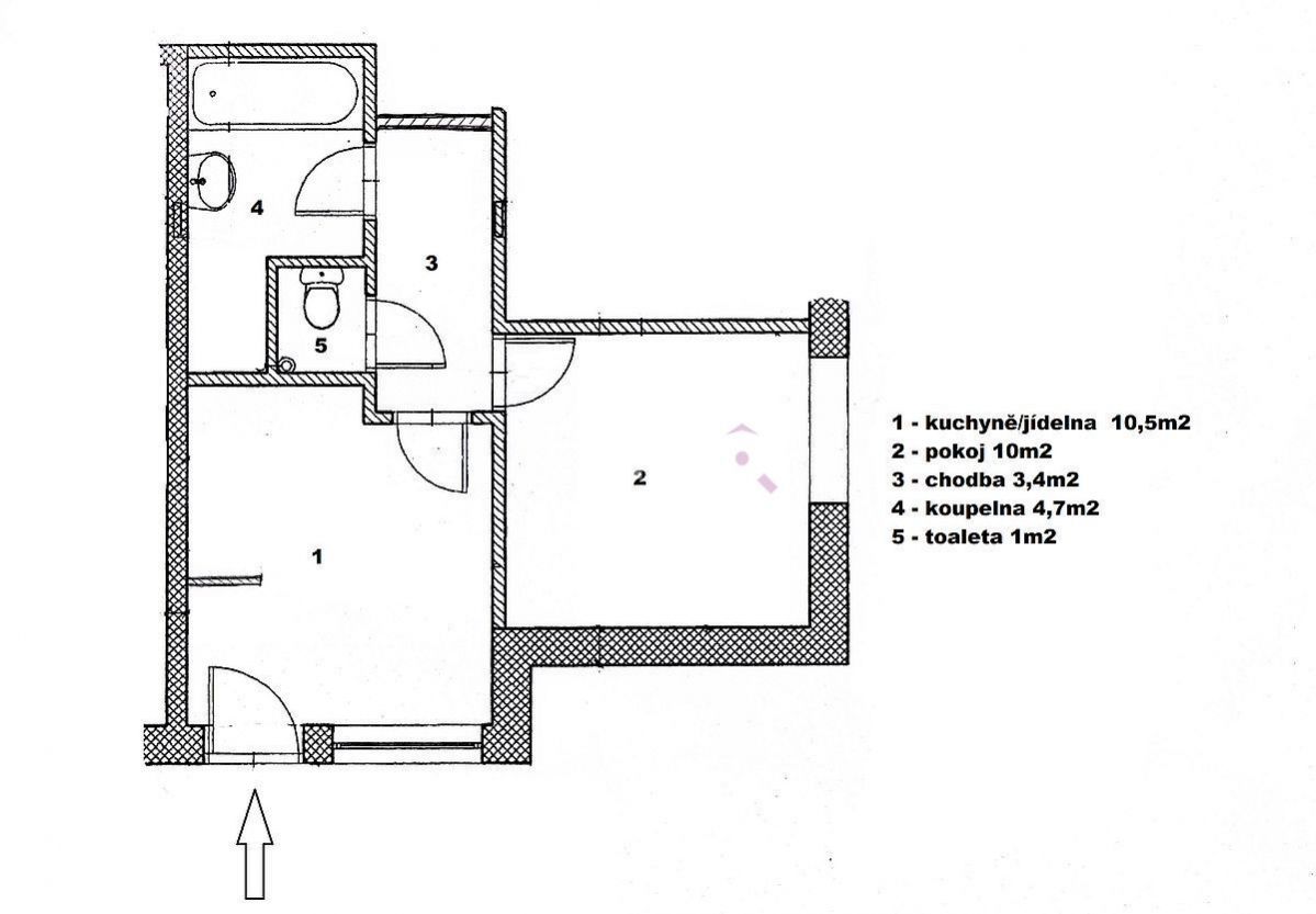
Dlouhodobý pronájem kompletně zařízeného bytu o dispozici 1+1 a výměře cca 30 m2, který je situován v přízemí novostavby rodinného domu. Ten se nachází v klidné vilkové čtvrti, ul. U Sila v Praze 5 - Řeporyjích. Byt má samostatný vchod, ve vstupní části je umístěn botník. Kuchyňská linka je vybavena lednicí s mrazákem a indukční varnou deskou, navazuje na jídelní část s kuchyňským stolem a 2 židlemi, v ložnice je rohová skříň. V prostorné koupelně s vanou i sprchovým koutem je umístěna také pračka. Předností je samostatné WC . Dlažba a podlahové vytápění dodají na komfortu, okna jsou cloněna praktickými roletkami. Díky orientaci na JV je byt velmi světlý a působí příjemným dojmem, neboť celá jeho kompozice byla tvořena s citem pro detail. Nájemce jistě ocení i možnost využívat terasu před bytem pro posezení s pěkným výhledem a parkování vozidla přímo před domem. Byt je nově bíle vymalován, uklizen a připraven k okamžitému nastěhování. Samozřejmostí je výborná dopravní dostupnost v docházkové vzdálenosti 5 min. se nachází zastávka autobusu nebo vlaku. Nabídka je vhodná pro 1 osobu, chov volně pobíhajících domácích mazlíčků není majiteli dovolen. <a href="https://www.eurobydleni.cz/byty/2_kk/praha-2/obec-vinohrady/pronajem/"><strong>Pronájem bytu 2+kk Praha 2, Vinohrady</strong></a>
Pronájem, Byt 1+1, Praha 3
Tento plně zařízený byt 1+1 (29 m2) se nachází ve druhém patře cihlového domu v oblíbené pražské čtvrti Žižkov, v ulici Cimburkova. Byt je ideální…
Pronájem, Byt 1+1, Praha 1
Nabízím k dlouhodobému pronájmu stylový, plně zařízený apartmán o dispozici 1+1, nacházející se ve 2. nadzemním podlaží činžovního domu v srdci Prahy…
Pronájem bytu 1+1 Praha 5, Řeporyje na Eurobydleni.cz