Aktuálně můžete v lokalitě Praha vybírat z nabídky 2 255 bytů.
Přehled nemovitostí: pronájem byty > 2+1 Zpět na přehled nabídek

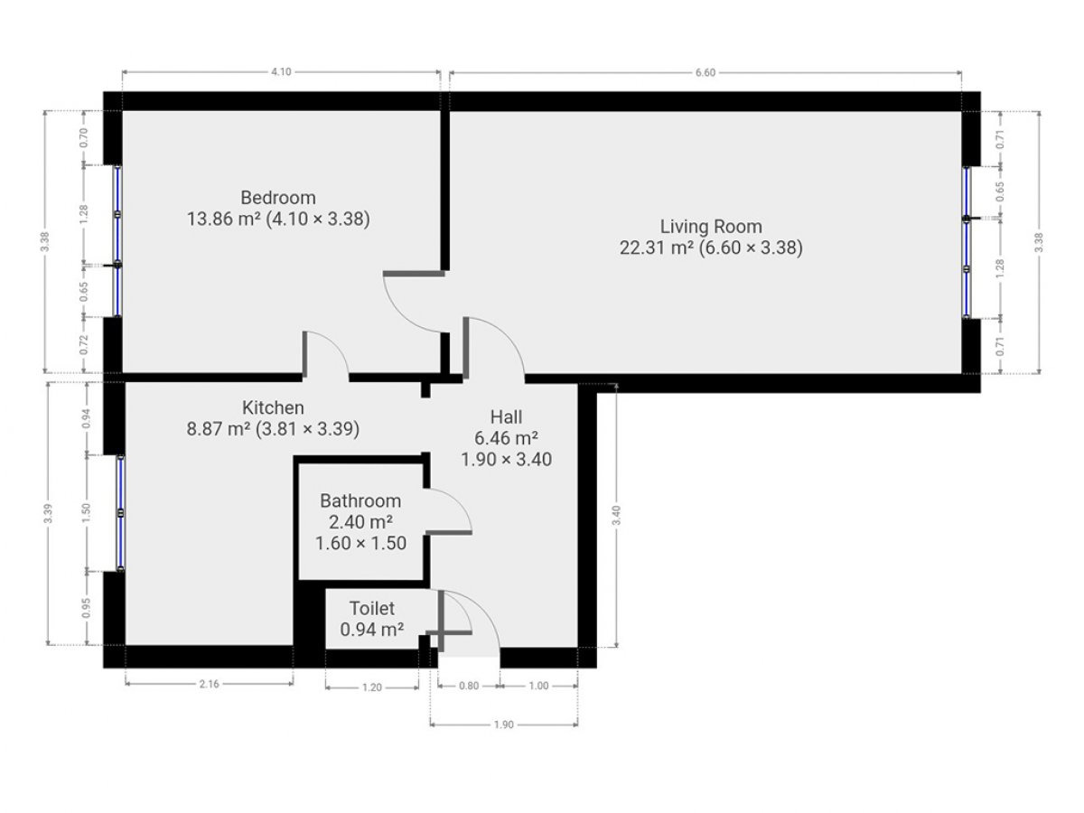
Pronájem bytu 2+1, Na vrcholu, Žižkov, 20.000 Kč/měs, 55 m2, Praha

55 m2

55 m2

osobní

G - Mimořádně nehospodárná

N2478

01.12.2025

Cena: 19000 CZK / objekt / měsíc
Poznámka k ceně: vratná jistota, náklady na bydlení 5263 Kč, poplatek za podnájem 1

Poslat dotaz k nabídce
Zásady používání osobních údajů

Prodejce

Makléř: Miloslava Kačerová

Telefon: 222 703 ...

E-mail: podpora ...

Zobrazit celý kontakt

Nemovitost nabízí

Ideální nájemce

Lazaretní 925/9, 615 00 Brno

idealninajemce.cz

Zobrazit kontakt na RK

Zobrazit všechny nabídky RK

K dlouhodobému podnájmu nabízíme velmi pěkný byt o dispozici 2+1 v atraktivní lokalitě Praha - Žižkov. Byt o celkové výměře 55 m2 se nachází ve čtvrtém patře cihlového domu bez výtahu. Byt se nabízí částečně vybavený. Moderní kuchyně disponuje lednicí, troubou, plynovým sporákem, mikrovlnnou troubou a digestoří. V kuchyni je dále i jídelní stůl s židlemi. Prostorný obývací prostor je zařízen sedací soupravou, televizní stěnou, pracovním stolem s židlí a konferenčním stolkem. Součástí ložnice je postel, komoda a šatní skříň. V koupelně najdeme sprchový kout, umyvadlo a pračku. Toaleta je oddělená. Předsíň je vybavena prostornou šatní skříní. V okolí domu najdeme restaurace, obchod s potravinami, poštu, základní školu, supermarket Albert atd. Dopravní dostupnost je zajištěna zastávkou Chmelnice, která je vzdálená čtyři minuty chůze od domu. Byt je volný k nastěhování od 01.02.2026. Majitel preferuje zájemce bez domácích mazlíčků. Uvedena energetická kategorie G, jelikož nemáme k dispozici PENB. Byt pronajímá Ideální nájemce - služba, se kterou budete bydlet bezstarostně a za férových podmínek. Když se něco přihodí, k dispozici jsou správci, kteří s vámi vše vyřeší. Pomůžeme s veškerou administrativou, s nastavením plateb a zajistíme vám speciální pojištění. Pojďte bydlet s námi!



Nahoru