Makléř: Miloslava Kačerová
Telefon: 222 703 ...
E-mail: podpora ...
Zobrazit celý kontaktTelefon: 222 703 030
E-mail: podpora@idealninajemce.cz
Nemovitost nabízí
Ideální nájemce
Lazaretní 925/9, 615 00 Brno
Zobrazit kontakt na RK222 703 030
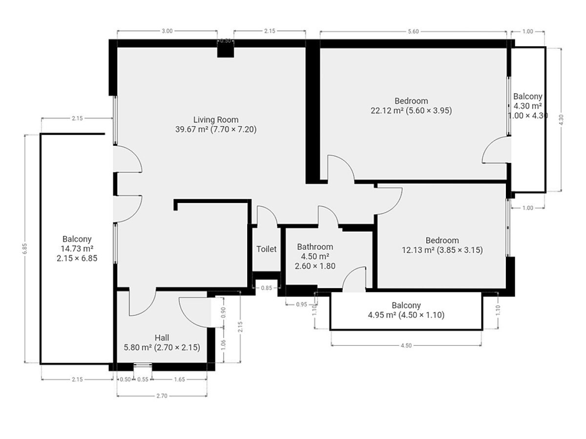
K dlouhodobému pronájmu nabízíme částečně zařízený byt dispozice 3+kk o rozloze 86 m2 po kompletní rekonstrukci ve 2. patře řadového domu na pozemku se zahradou v klidné rezidenční lokalitě pražských Čimic. Bytu vévodí rozlehlý obývací pokoj výměry téměř 40 m2 s moderní kuchyní a přístupem na terasu, na další dvě terasy se pak vchází z ložnice a koupelny. Vytápění bytu a ohřev vody je realizován plynovým kotlem, všechny místnosti jsou vybaveny klimatizací. Kromě zahrady je k dispozici parkovací stání na oploceném pozemku domu. Součástí měsíčních záloh jsou již energie a k dispozici je i vysokorychlostní internet. K dispozici solidním zájemcům hledajícím dlouhodobé kvalitní bydlení k okamžitému nastěhování. Individuální prohlídky možné po domluvě kdykoliv včetně pozdních večerních hodin a víkendů. Byt pronajímá Ideální nájemce - služba, se kterou budete bydlet bezstarostně a za férových podmínek. Když se něco přihodí, k dispozici jsou správci, kteří s Vámi vše vyřeší. Pomůžeme s veškerou administrativou, s nastavením plateb a zajistíme Vám speciální pojištění. Pojďte bydlet s námi!
Luxusní byt 3+kk, 107 m2, ulice Italská, Praha 2
Pronájem kompletně zařízeného klimatizovaného bytu 3+kk 106,91 m2, s možností využití bazénu, s garážovým stáním a snadnou dostupností do centra v…
Pronájem bytu: Praha 1 - Nové Město, Truhlářská
Nabízíme k pronájmu luxusní zařízený byt 3+kk ve 4. patře zrenovovaného činžovního domu s výtahem ve vyhledávané lokalitě Praha 1 - Nové Město. Byt…