Aktuálně můžete v lokalitě Praha vybírat z nabídky 2 165 bytů.
Přehled nemovitostí: pronájem byty > 3+kk Zpět na přehled nabídek

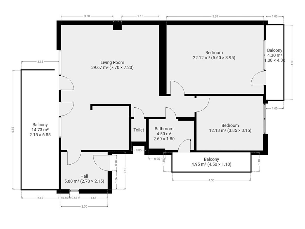
Byt k pronájmu 3+kk, Kočova, Čimice, 36900 Kč/měs, 86 m2, Praha

86 m2

86 m2

osobní

G - Mimořádně nehospodárná

N7005

26.01.2026

Cena: 36900 CZK / objekt / měsíc
Poznámka k ceně: vratná jistota, zúčtovatelné zálohy 6.551,- Kč, poplatek za podnájem 1

Poslat dotaz k nabídce
Zásady používání osobních údajů

Prodejce

Makléř: Miloslava Kačerová

Telefon: 222 703 ...

E-mail: podpora ...

Zobrazit celý kontakt

Nemovitost nabízí

Ideální nájemce

Lazaretní 925/9, 615 00 Brno

idealninajemce.cz

Zobrazit kontakt na RK

Zobrazit všechny nabídky RK

K dlouhodobému pronájmu nabízíme částečně zařízený byt dispozice 3+kk o rozloze 86 m2 po kompletní rekonstrukci ve 2. patře řadového domu na pozemku se zahradou v klidné rezidenční lokalitě pražských Čimic. Bytu vévodí rozlehlý obývací pokoj výměry téměř 40 m2 s moderní kuchyní a přístupem na terasu, na další dvě terasy se pak vchází z ložnice a koupelny. Vytápění bytu a ohřev vody je realizován plynovým kotlem, všechny místnosti jsou vybaveny klimatizací. Kromě zahrady je k dispozici parkovací stání na oploceném pozemku domu. Součástí měsíčních záloh jsou již energie a k dispozici je i vysokorychlostní internet. K dispozici solidním zájemcům hledajícím dlouhodobé kvalitní bydlení k okamžitému nastěhování. Individuální prohlídky možné po domluvě kdykoliv včetně pozdních večerních hodin a víkendů. Byt pronajímá Ideální nájemce - služba, se kterou budete bydlet bezstarostně a za férových podmínek. Když se něco přihodí, k dispozici jsou správci, kteří s Vámi vše vyřeší. Pomůžeme s veškerou administrativou, s nastavením plateb a zajistíme Vám speciální pojištění. Pojďte bydlet s námi!



Nahoru