Aktuálně můžete v lokalitě Praha vybírat z nabídky 2 204 bytů.
Přehled nemovitostí: prodej byty > 5+kk Zpět na přehled nabídek

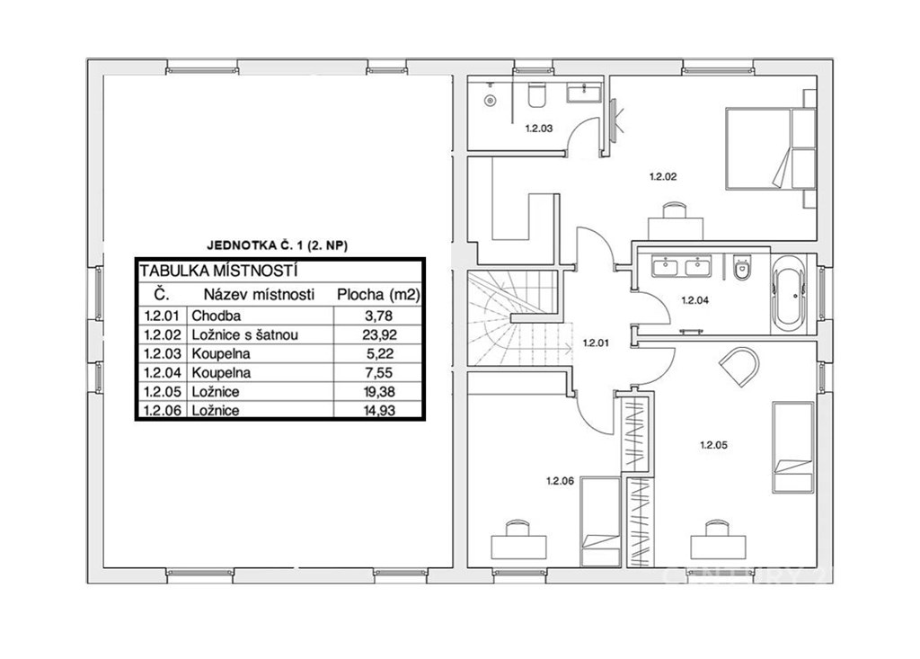
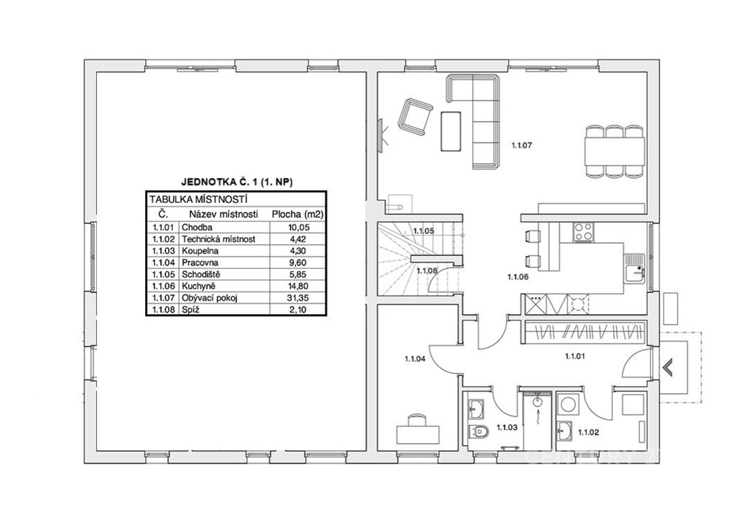
Jednotka 5+KK v novostavbě rodinného domu se zahradou, Praha

188 m2

157 m2

osobní

B - Velmi úsporná

971855

07.12.2025

Cena: 19500000 CZK / objekt
Poznámka k ceně: Cena za bytovou jednotku č. 1 a polovinu domu se zahradou. 1

Poslat dotaz k nabídce
Zásady používání osobních údajů

Prodejce

Makléř: Bc. Stára Michal

Telefon: 420 605 ...

E-mail: michal. ...

Zobrazit celý kontakt

Nemovitost nabízí

CENTURY 21 Realitas Central Praha

Jeremiášova 2722/2a, 155 00 Praha 13

www.century21.cz/kancelar-realitas-central-praha

Zobrazit kontakt na RK

Zobrazit všechny nabídky RK

Praha 4 Újezd u Průhonic: Váš nový, úsporný domov s vlastní zahradou! Exkluzivní novostavba 5+KK (157 m2) s unikátní kombinací klidu a dostupnosti! Hledáte moderní bydlení, kde se snoubí luxus, úspora energie a prvotřídní lokalita? Máme pro vás ideální řešení v jedné z nejoblíbenějších částí Prahy - v Újezdě u Průhonic. Jedná se o plně autonomní bytovou jednotku č. 1 v novostavbě rodinného domu, která byla kolaudována v říjnu 2025. Nyní je čas využít flexibilitu dokončení! Klíčové Výhody, Které Vás Přesvědčí: Prostor a dispozice: Velkorysých 5+KK (157 m2) ve dvou podlažích. Ideální pro rodinný život s dostatkem soukromí. Vlastní zahrada a parkování: Přímý vstup do zeleně a vlastní parkovací stání v ceně! TOP Úspora Energie (Třída B): Tepelné čerpadlo + Podlahové topení. Rekuperace tepla pro zdravé a úsporné bydlení. Příprava na fotovoltaiku. Nadstandardní bydlení: Elektrické žaluzie, příprava pro SmartHome a krb, velkoformátové obklady, značková sanita a zabezpečovací systém. Lokalita: Klid, zeleň a perfektní doprava Můžete si užívat Milíčovský les, Průhonický park, dendrologickou zahradu a okolní rybníky - ideální ráj pro sport a relaxaci (běh, cyklistika). Vše po ruce: Škola, školka, sportoviště a obchody v docházkové vzdálenosti. Nákupy: 10 minut autem do Čestlic, Průhonic a na Chodov. Dostupnost do centra: Zastávka MHD pouhých 170 metrů a rychlé napojení na D1 (2 nájezdy). Možnosti dokončení - Rozhodujete Vy! Dům je z 90 % dokončený. Vyberte si, co vám vyhovuje: A/ Whitewall (Dokončení svépomocí): Maximální úspora a možnost dotvořit si interiér přesně podle svých snů a potřeb. B/ Na klíč: Nechte starosti s dokončením na developerovi a nastěhujte se rovnou do hotového standardu. Nenechte si ujít šanci získat energeticky úsporný a moderní domov v jedné z nejžádanějších lokalit Prahy! Kontaktujte nás ještě dnes pro bližší informace a domluvení prohlídky!



Nahoru