Aktuálně můžete v lokalitě Praha vybírat z nabídky 2 189 bytů.
Přehled nemovitostí: pronájem byty > 4+kk Zpět na přehled nabídek

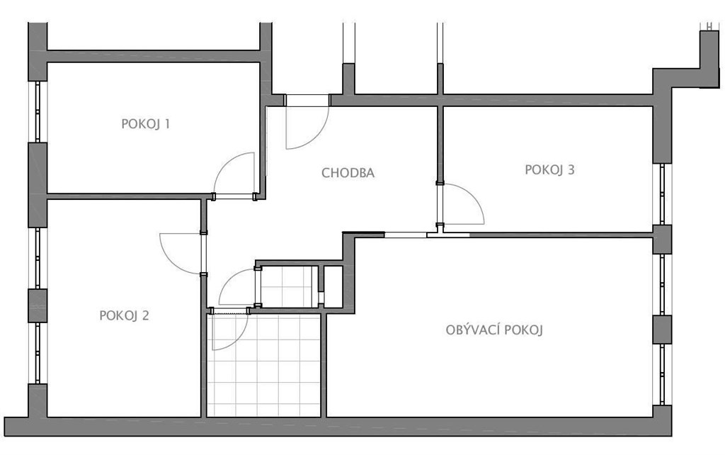
Pronájem bytu 4+kk s balkonem a garáží, novostavba na Praze 3 Žižkov, Husitská, Praha

88 m2

88 m2

osobní

G - Mimořádně nehospodárná

971423

17.12.2025

Cena: 35000 CZK / objekt / měsíc
Poznámka k ceně: +5 707 Kč poplatky +2000, Kč parking + elektřina 1

Poslat dotaz k nabídce
Zásady používání osobních údajů

Prodejce

Makléř: Mgr. Merknerová Barbora

Telefon: 608 662 ...

E-mail: barbora ...

Zobrazit celý kontakt

Nemovitost nabízí

CENTURY 21 Ruby

Přemyslovská 2845/43, 130 00 Praha 3

www.century21.cz/kancelar/ruby/

Zobrazit kontakt na RK

Zobrazit všechny nabídky RK

Nabízíme k pronájmu krásný byt 4+kk s balkonem a možností pronájmu 1 parkovacího stání v novostavbě z roku 2009 na Praze 3 v těsné blízkosti vrchu Vítkov. Byt se nachází ve 4. nadzemním podlaží domu s výtahem. K bytu dále náleží sklípek v přízemí objektu. Byt s kompletně a moderně vybavenou kuchyní je částečně zařízen nábytkem. Má 3 samostatné ložnice a prostorný obývací pokoj s kuchyňským koutem. U ložnice orientované do dvora je balkon. Jedná se o velmi praktickou lokalitu, v místě je veškerá občanská vybavenost, školy, dostatek zeleně a je odsud výborné dopravní spojení do centra Prahy. Byt bude volný od 1.1.2026 Prohlídky možné po dohodě. Majitel si přeje nájemníky bez domácích mazlíčků. Nájemce skládá kauci ve výši 1 měsíčního nájmu + měsíční zálohy na služby. Odměna RK 1 měsíční nájem 1 DPH.



Nahoru