Aktuálně můžete v lokalitě Praha vybírat z nabídky 2 214 bytů.
Přehled nemovitostí: pronájem byty > 3+kk Zpět na přehled nabídek

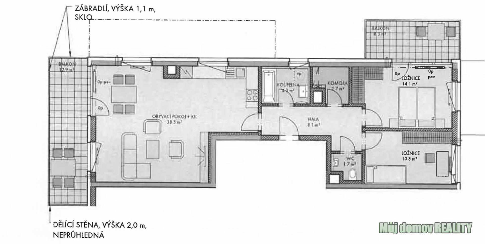
Pronájem bytu 3+kk, 83 m + 2 balkony, Praha 9 Prosek (ul. Návarovská)

83 m2

neuvedeno

družstevní

G - Mimořádně nehospodárná

1995

13.12.2025

Cena: 31000 CZK / objekt / měsíc

Poslat dotaz k nabídce
Zásady používání osobních údajů

Prodejce

Makléř: Savynets Lidiya

Telefon: 775 604 ...

E-mail: muj.dom ...

Zobrazit celý kontakt

Nemovitost nabízí

Můj domov REALITY s.r.o.

U půjčovny 953/4, Praha

www.mujdomov-reality.cz/

Zobrazit kontakt na RK

Zobrazit všechny nabídky RK

Pronájem bytu 3+kk, 83 m + 2 balkony, Praha 9 Prosek (ul. Návarovská 44) Novostavba družstevní projekt Nad Krocínkou kompletně vybavený ihned k nastěhování Nabízíme k dlouhodobému pronájmu zcela nový, prostorný a nadstandardně vybavený byt 3+kk o velikosti 83 m se dvěma balkony (13 m a 8 m), umístěný ve 2. podlaží moderního projektu Nad Krocínkou v žádané lokalitě Praha 9 Prosek. Byt ještě nebyl obýván čeká na svého prvního nájemce. Dispozice a vybavení bytové jednotky Byt 3+kk 83 m + balkon 13 m + lodžie 8 m Slunný obývací pokoj s kuchyňským koutem a vstupem na balkon Dvě samostatné ložnice (jedna se vstupem na druhý balkon) Prostorná předsíň s vestavěnou šatní sestavou Moderní koupelna se sprchovým koutem a přípravou na pračku a sušičku Samostatné WC Nadstandardní provedení Protipožární bezpečnostní dveře Sapeli, interiérové dveře Sapeli v provedení Wenge Kuchyňská linka s ostrůvkem + spotřebiče MORA: indukce, myčka, digestoř, trouba, mikrovlnka Designový dřez Franke z umělého kamene onyx Lednice Siguro 2× nové velké zrcadlové vestavěné skříně Koupelna: velkoprostorové 90cm umyvadlo topný žebřík skleněný sprchový kout Samostatné WC Laufen Rimless, baterie Hansgrohe Optický internet až 1000 Mbit/s PODA, T-Mobile Okna vybavena horizontálními žaluziemi Byt je částečně zařízen další vybavení lze po dohodě doplnit. V případě vlastního zařízení možnost upravit výši nájmu nebo kauce. Občanská vybavenost v okolí Lokalita Prosek patří mezi nejlépe vybavené pražské čtvrti: V pěší vzdálenosti Metro C Prosek / Střížkov (7 min) Supermarket Billa, OC Prosek Point, restaurace, kavárny Poliklinika Prosek, lékárny Školy a školky, dětská hřiště Městská knihovna, sportovní areály, fitness, tenis, bazén Park Přátelství, Prosecké skály, Starý Prosek ideální na procházky Dopravní dostupnost: Metro C 7 min pěšky Metro B 1 zastávka autobusem Rychlé napojení na D8, D10 a Pražský okruh Centrum Prahy cca 15 minut autem Cena a podmínky: Nájemné: 31 000 Kč / měsíc Služby domu: 7 640 Kč / měsíc Elektřina + internet: přepis na nájemce Vratná kauce: 62 000 Kč k dispozici garážové stání na 1/2 roku zdarma Provize RK: ano Možnost pronájmu: Garážové stání 2 500 Kč / měsíc Krátkodobé pronájmy nejsou možné. Technické údaje Energetická náročnost: Velmi úsporná Rok kolaudace: 2025 Konstrukce: smíšená, novostavba Podlaží: 2. z 5 Výtah, bezbariérový přístup Optický internet, kabelová TV K nastěhování: ihned Kontakt na makléřku: Můj domov REALITY s.r.o. Lidiya Savynets realitní makléřka WhatsApp / Viber / Telegram: @LidiyaSyvynets <a href="https://www.eurobydleni.cz/domy/rodinny-dum/praha-5/obec-hlubocepy/prodej/"><strong>Prodej rodinného domu Praha 5, Hlubočepy</strong></a>




Pronájem bytu 3+kk Praha 9, Prosek na Eurobydleni.cz


Nahoru