Makléř: Milan Šámal
Telefon: 602 100 ...
E-mail: samal@j ...
Zobrazit celý kontaktTelefon: 602 100 722
E-mail: samal@justo.cz
Nemovitost nabízí
JUSTO Česká republika
Korunní 2569/108, 101 00 Praha 10
Zobrazit kontakt na RK
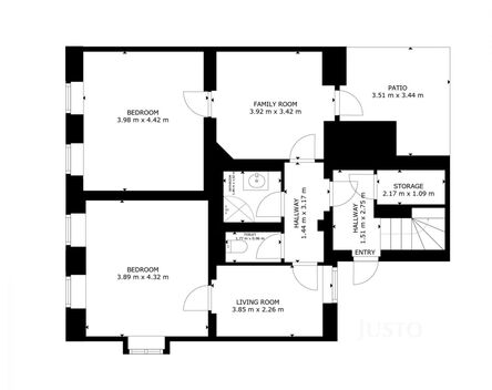
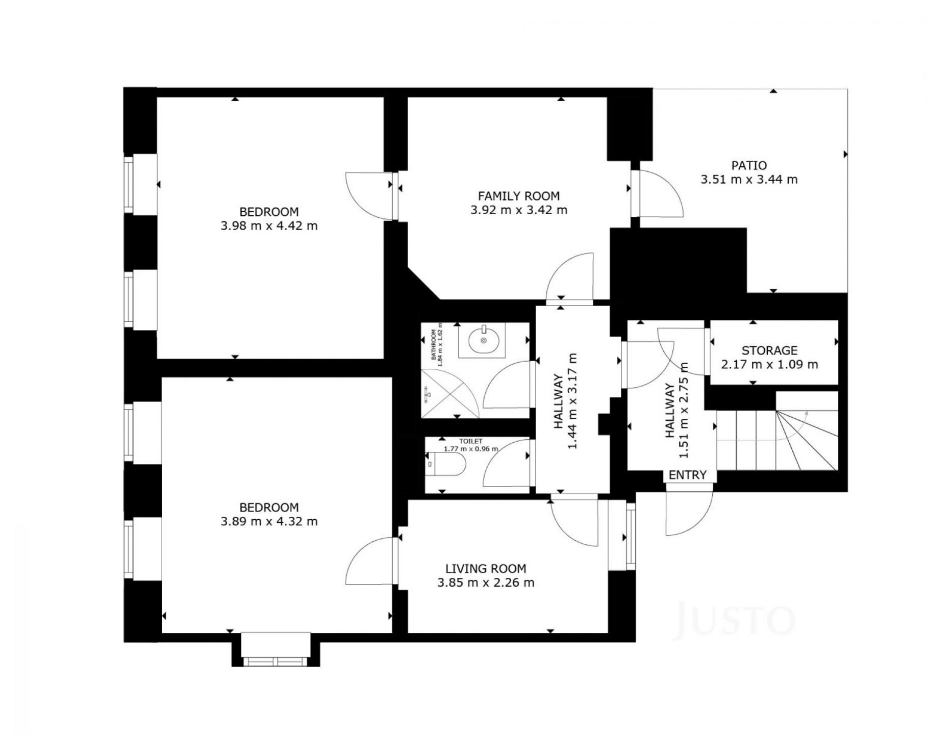
Ve výhradním zastoupení majitele nabízím k prodeji bezbariérovou bytovou jednotku o dispozici 3+1. Celkové plocha s příslušenstvím bez podlahové plochy svislých konstrukcí je 58,9 m a se svislými konstrukcemi je 66,4 m. K bytu náleží terasa o výlučném užívání o ploše 12,5 m a venkovní parkovací stání. Jednotka disponuje kvalitně provedeným interiérem s moderním designem, přičemž je připravena k okamžitému použití bez nutnosti dalších investic, vyjma kuchyňské linky. Díky své velikosti a dispozici může bytová jednotka sloužit jak pro vlastní bydlení, tak i na pronájem. Byt se nachází v kompletně zrekonstruovaném obytném domě, který se nachází v atraktivní a klidné lokalitě Prahy 5 Zbraslav, na ulici Žitavského a kde jsou pouze 3 byty. Nízké náklady na vytápění jsou zajištěny díky kvalitní tepelné izolaci a kondenzačnímu plynovému kotli, který zajišťuji vytápění a ohřev vody v celém domě, což potvrzuji i stupeň energetické náročnosti budovy, který je B. Dům je situován v žádané části Zbraslavi s výbornou občanskou vybaveností a dostupností služeb. V okolí najdete například supermarket Lidl (990 m), fitness centrum, restaurace a kavárny, či sportovní a rekreační zařízení. Nedaleko je i vlaková a autobusová doprava, což zajišťuje skvělou dostupnost do centra Prahy. Pro více informací o této nemovitosti nebo sjednání prohlídky nás prosím kontaktujte nebo vyplňte formulář. <a href="https://www.eurobydleni.cz/byty/3_1/praha-5/obec-zbraslav/prodej/"><strong>Prodej bytu 3+1 Praha 5, Zbraslav</strong></a>
Prodej bytu 3+1, 59 m2, Praha 4 - Krč
Hledáte byt, do kterého se můžete ihned nastěhovat a který dává smysl jak pro bydlení, tak jako investice? Nabízím světlý družstevní byt 3+1 o…
Prodej bytu 3+1 po rekonstrukci Praha 4, Modřany, ulice Urbánkova 79 m prostoru, lodžie, velká před
Jsou byty, které mají svou lehkost prostorné, světlé a promyšlené tak, aby se v nich dobře žilo. Tento 3+1 v Modřanech prošel citlivou rekonstrukcí…
Prodej bytu 3+1 Praha 5, Zbraslav na Eurobydleni.cz