Aktuálně můžete v lokalitě Praha vybírat z nabídky 2 168 bytů.
Přehled nemovitostí: prodej byty > 3+1 Zpět na přehled nabídek

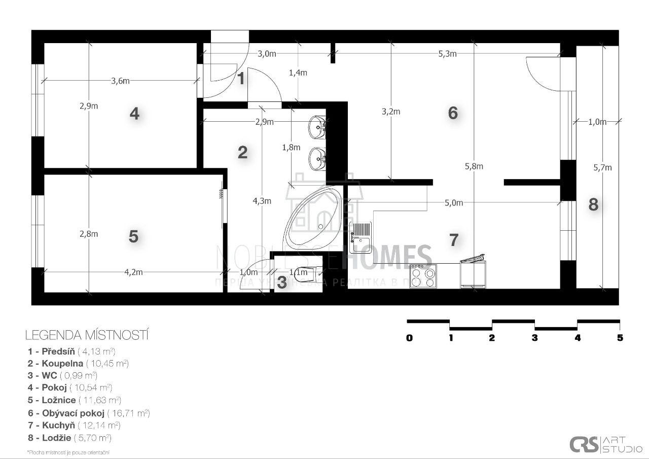
Prodej bytu 3+1 72 m s lodžií, Lovosická, Praha 9 - Prosek, OV, před rekonstrukcí

neuvedeno

neuvedeno

osobní

G - Mimořádně nehospodárná

44

15.01.2026

Cena: 7900000 CZK / objekt
Poznámka k ceně: Včetně provize i právních služeb 1

Poslat dotaz k nabídce
Zásady používání osobních údajů

Prodejce

Makléř: Walterova Yuliia

Telefon: 777 051 ...

E-mail: yw@nobl ...

Zobrazit celý kontakt

Nemovitost nabízí

Noblesse Homes

Přístavní 531/24, Praha, Holešovice

noblessehomes.com

Zobrazit kontakt na RK

Zobrazit všechny nabídky RK

Adresa: Lovosická 656/11, Praha 9 Střížkov Cena: 7 900 000 Kč Podlaží: 3. NP Nabízíme světlý a prakticky řešený byt 3+1 ve vyhledávané lokalitě Prahy 9, jen pár minut chůze od metra C Střížkov. Byt je v původním stavu, takže je ideální pro ty, kteří si chtějí rekonstrukcí vytvořit bydlení přesně podle svých představ a zároveň získat nemovitost s dlouhodobou hodnotou. Hlavní výhody: Dispozice 3+1 vhodné pro rodinu, i jako investice Velký potenciál rekonstrukce možnost moderního řešení a lepšího využití prostoru K bytu náleží sklepní kóje (úložný prostor). Centrální vytápění a centrální ohřev teplé vody. 3. patro s výtahem pohodlný přístup a příjemné světlo v bytě. Klidný dům v upraveném sídlištním prostředí. Výborná dopravní dostupnost metro, MHD, rychlé spojení do centra. Kompletní občanská vybavenost v okolí školy, školky, obchody, lékaři, sportoviště, parky. Byt prodáváme exkluzivně, což zajišťuje transparentní, rychlý a bezpečný průběh prodeje. Pro více informací a domluvení prohlídky nás neváhejte kontaktovat.




Prodej bytu 3+1 Praha 9, Prosek na Eurobydleni.cz


Nahoru