Makléř: Vojtěch Gřunděl
Telefon: 736 134 ...
E-mail: vojtech ...
Zobrazit celý kontaktTelefon: 736 134 571
E-mail: vojtech.grundel@qara.cz
Nemovitost nabízí
QARA s.r.o.
Šafaříkova 201/17, 120 00 Praha 2
Zobrazit kontakt na RK
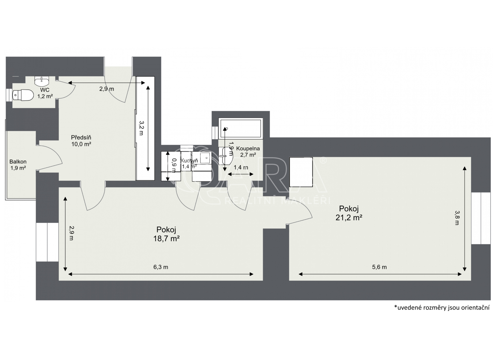
Hledáte byt v klidné a žádané lokalitě? Nabízím byt 2+kk o velikosti 54,46 m2 v pražských Vysočanech. Byt se nachází v druhém nadzemním podlaží udržovaného cihlového domu, kde již byla vyměněna okna za plastová. Byt je v původním stavu a je určen spíše k rekonstrukci, což novému majiteli dává ideální příležitost upravit si bydlení přesně podle vlastních představ. K bytu náleží balkon 2 m2 a sklep v suterénu domu. Měsíční náklady na bydlení činí 2 656 Kč (plus elektřina dle dodavatele). Lokalita Vysočan patří mezi velmi žádané části Prahy díky skvělé kombinaci klidného prostředí a výborné dostupnosti do centra. Stanice metra Vysočanská je pouze 3 minuty pěšky. V okolí se nachází kompletní občanská vybavenost - obchody, restaurace, školy, školky i sportovní a volnočasové vyžití. Cena bytu je 6 890 000,- Kč, včetně provize, právního servisu, bezpečné úschovy a všech poplatků. Byt je možné financovat hypotékou, s čímž vám rád pomůže náš hypoteční specialista. Pro více informací nebo domluvení prohlídky mě neváhejte kontaktovat.
Byt 2+kk se zahradou 135 m2 - Praha 2
Představuji Vám velmi zajímavě řešený byt 2+kk v pražských Nuslích, jen pár kroků od parku Folimanka, 5 minut pěšky na pražskou Náplavku nebo 5…
Prodej, Ateliér 2+kk, 52 m2 - Praha 9 - Vysočany - Harfa Living - nové byty a investice za skvělé ceny
Nabízíme k prodeji byt 152-03-011 s dispozicí 2+kk (51,8 m2), balkonem (9,6 m2), přiřazeným sklepem a parkovacím stáním v novém projektu Harfa Living…