Aktuálně můžete v lokalitě Praha vybírat z nabídky 2 345 bytů.
Přehled nemovitostí: pronájem byty > 3+1 Zpět na přehled nabídek

Komfortní a plně zařízený byt 3+1 v ulici Jeseniova Žižkov, Praha 3, ideální pro maximálně dvě osoby, k dispozici kabelové připojení a vestavěné spotřebiče.

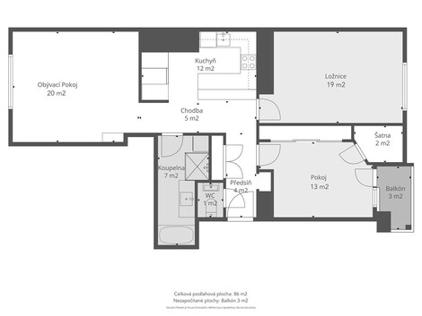
84 m2

86 m2

osobní

E - Nehospodárná

972375

11.03.2026

Cena: 54000 CZK / objekt / měsíc

Poslat dotaz k nabídce
Zásady používání osobních údajů

Prodejce

Makléř: Havelda Jan

Telefon: 775 377 ...

E-mail: jan.hav ...

Zobrazit celý kontakt

Nemovitost nabízí

CENTURY 21 Premium

Zlatnická 1582/10, 110 00 Praha 1

www.century21.cz/kancelar/premium/

Zobrazit kontakt na RK

Zobrazit všechny nabídky RK

Nabízíme k pronájmu plně zařízený byt o dispozici 3+1 s podlahovou plochou 86 m2, s balkónem 2 m2 a sklepní kójí 2 m2, situovaný ve 2. patře (3. nadzemní podlaží) budovy bez výtahu v ulici Jeseniova 155, Praha 3 Žižkov. Dominantou bytu je prostorný obývací pokoj s protihlukovými stěnami směrem do ulice a oddělená designová kuchyň na míru, dále zde naleznete dvě klimatizované ložnice, koupelnu s vanou i sprchovým koutem (v celé koupelně je vyhřívaná podlaha), samostatnou toaletu. Každá místnost disponuje nenápadnými úložnými prostory. Interiér je navržen s důrazem na detail a praktičnost, což dokládá vestavěný multifunkční nábytek. Celý byt je proveden ve špičkových materiálech a prémiovým vybavením. Byt je jen 50 m od tramvajové zastávky Strážný odkud jste v samém centru Prahy za 15 minut, v okolí domu se dá také, ač na modrých zónách, tak pohodlně parkovat. Žižkov se stává lokalitou, kde opravdu pulsuje život, množství kaváren, restaurací, ale i parků nabízí pestré využití volného času. V blízkém okolí je plná občanská vybavenost. Energie se převádí na nájemce. Požadovaná jistota kauce ve výši dvou měsíčních nájmů + jeden nájem je provize RK + první nájem. Minimální doba pronájmu je 1 rok, ubytování formou Airbnb nelze realizovat. Majitel si vyhrazuje právo volby nájemníka.



Nahoru