Makléř: Ing. arch. Jan Šťastna M.Sc.
Telefon: 602 222 ...
E-mail: honza@r ...
Zobrazit celý kontaktTelefon: 602 222 282
E-mail: honza@realitynebe.cz
Nemovitost nabízí
Reality Nebe
Choceradská 3216/42, 141 00 Praha 4
Zobrazit kontakt na RK608 771 477
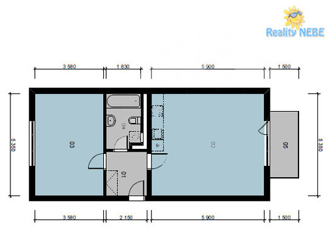
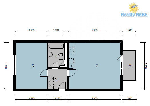
Nabízíme k prodeji prostorný slunný byt 2+kk, Karla Zicha, Praha Uhříněves. Dům je součástí bytového komplexu Zahrady Uhříněves dokončeného v roce 2007, který tvoří neprůjezdnou polouzavřenou lokalitu obytné zóny se vzrostlou zelení. Byt se nachází v prvním patře s pěkným výhledem na Uhříněveský kostel. Skládá se z prostorného obývacího pokoje s kuchyňským koutem (32 m2), ložnice (19 m2), předsíně (5 m2), koupelny (5 m2), balkonu (5 m2) a sklepu (5 m2). Kuchyňská linka je s vestavěnými spotřebiči, elektrickou troubou, mikrovlnnou troubou a myčkou na nádobí. Ložnice je orientovaná na východ, obývací pokoj s balkonem na západ. V obou místnostech je velké třídílné francouzské okno. V suterénu domu je plynový kotel, který zajišťuje jak vytápění, tak celoročně teplou vodu. V bytě je k dispozici internetové připojení optickým kabelem. Měsíční poplatky jsou cca. 5000 za měsíc (SVJ, fond oprav, teplo, teplá a studená voda). Elektřina je cca. 1000 za měsíc. V případě zájmu lze převzít od současného majitele pronájem podzemního garážového stání pod budovou (1900 za měsíc). Veškerá občanská vybavenost je v okolí. V Uhříněvsi jsou dvě základní školy, pět mateřských škol a dále obchody Lidl, Penny, Billa a Norma. V centru obce je v docházkové vzdálenosti nabídka 10 restaurací, kavárna, cukrárna, pošta. Kulturním zážitkům slouží kino a divadlo U22, pro sportovní vyžití se nabízí sokolovna, tenisové a badmintonové kurty i fotbalový klub Čechie Uhříněves, skatepark a v zimě je možné bruslit v areálu základní školy nebo na jednom ze zdejších rybníků. Dopravní dostupnost je velmi dobrá. Linka vlaku S9 jezdí do centra Prahy každou čtvrthodinu, dále je zde bus 15 min na metro C Háje a Metro A Depo Hostivař. Celkově jde o příjemné bydlení v klidné lokalitě se spoustou zeleně v okolí. Vážní zájemci volejte Po-Pá 9-18h.
Prodej bytu 2+kk s lodžií Rezidence Cikorka, Praha Modřany
V exkluzivní lokalitě Prahy 12 Modřany vám nabízíme jedinečnou příležitost ke koupi moderní bytové jednotky 2+kk s lodžií v připravovaném projektu…
Prodej bytu 2+kk 60 m2
Vítejte ve vašem novém domově! Kombinace progresivní architektury s přírodou, dech beroucími výhledy na řeku Vltavu a s městským životem na dosah…