Makléř: Miloslava Kačerová
Telefon: 222 703 ...
E-mail: podpora ...
Zobrazit celý kontaktTelefon: 222 703 030
E-mail: podpora@idealninajemce.cz
Nemovitost nabízí
Ideální nájemce
Lazaretní 925/9, 615 00 Brno
Zobrazit kontakt na RK222 703 030
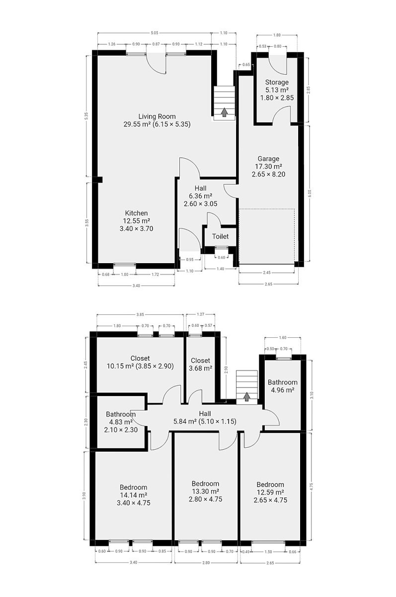
K dlouhodobému podnájmu nabízíme prostorný prosvětlený rodinný dům o dispozici 4+kk v klidné lokalitě Praha - Satalice. Disponuje podlahovou plochou 141 m2, praktickou garáží a zahradou o velikosti 315 m2, součástí které je altánek s posezením a dlážděná terasa. V přízemí domu se nachází vstupní předsíň s toaletou, garáž se skladem a obývací pokoj s kuchyňským koutem. V prvním patře najdeme tři ložnice, dvě koupelny a dvě šatny. Kuchyně disponuje lednicí, myčkou, elektrickou troubou, varnou deskou, mikrovlnnou troubou a digestoří. Obývací část je zařízena jídelním stolem. Ložnice jsou zařízeny šatními skříněmi. V primární koupelně najdeme rohovou vanu a pračku, v sekundární najdeme sprchový kout a sušičku. Po domluvě s majitelkou je možné řešit koberce a tapety. Satalice jsou známé svým klidným a přátelským prostředím, které je ideální pro rodiny s dětmi nebo pro ty, kteří hledají únik od rušného městského života. Obec disponuje dobrým spojením s centrem Prahy i dalšími městskými částmi díky autobusové dopravě a nedaleké železniční stanici. Z železniční stanice Satalice se lze dostat na Hlavní nádraží v Praze během 20 minut. Najdete zde základní občanskou vybavenost, jako jsou obchody, školky, školy, sportovní zařízení a restaurace. Domácí mazlíčci po vzájemné domluvě povoleni. Dům je k nastěhování od 1.4.
Nově zrekonstruovaný půdní byt 4+kk k pronájmu na Malé Straně
K dlouhodobému pronájmu nabízíme plně klimatizovaný podkrovní byt s terasou a nadstandartním vybavením o dispozici 4+kk a výměrou 136 m2, situovaný…
pronájem bytu 4+kk, 196m2, Praha 7, Holešovice
KomLi Nabízíme k dlouhodobému pronájmu světlý a prostorný penthouse 4+kk o velikosti 196 m s terasou 157 m v žádané lokalitě Praha 7 - Holešovice …