Aktuálně můžete v lokalitě Praha vybírat z nabídky 2 164 bytů.
Přehled nemovitostí: pronájem byty > 2+kk Zpět na přehled nabídek

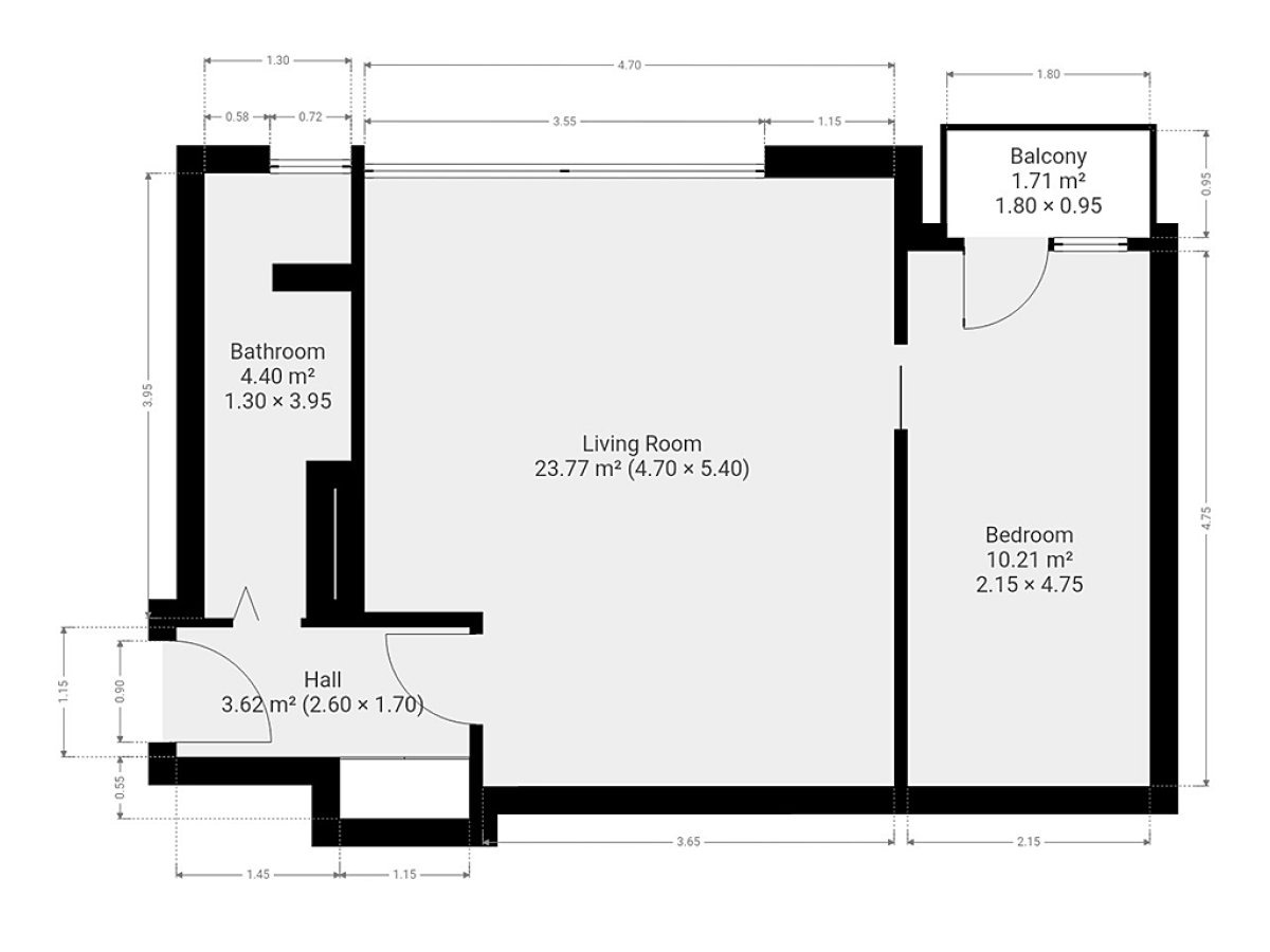
Pronájem bytu 2+kk, U Staré plynárny, Holešovice, 17500 Kč/měs, 46 m2, Praha

46 m2

46 m2

osobní

G - Mimořádně nehospodárná

N5913

Cena: 17500 CZK / objekt / měsíc
Poznámka k ceně: vratná jistota, náklady na bydlení 3968 Kč, poplatek za podnájem 1

Poslat dotaz k nabídce
Zásady používání osobních údajů

Prodejce

Makléř: Miloslava Kačerová

Telefon: 222 703 ...

E-mail: podpora ...

Zobrazit celý kontakt

Nemovitost nabízí

Ideální nájemce

Lazaretní 925/9, 615 00 Brno

idealninajemce.cz

Zobrazit kontakt na RK

Zobrazit všechny nabídky RK

K dlouhodobému podnájmu nabízíme krásný byt o dispozici 2+kk v oblíbené lokalitě Praha 7 - Holešovice. Byt o celkové výměře 46 m2 se nachází v nejvyšším, 5. patře cihlového domu bez výtahu. K bytu patří i balkon. Byt se nabízí částečně vybavený. Kuchyně disponuje lednicí s mrazákem, elektrickou troubou s plynovou varnou deskou, mikrovlnnou troubou a digestoří. Obývací část je zařízena pohovkou, konferenčním stolem a obývací stěnou. Součástí ložnice je postel a 2 šatní skříně. V koupelně je vana, umyvadlo, koupelnová skříňka, pračka a WC. V předsíni je vestavěná skříň. V okolí domu najdeme restaurace a kavárny, supermarkety Albert, Penny Market a Billa, polikliniku s lékárnou, poštu, holešovickou tržnici, městskou knihovnu, multifunkční prostor VNITROBLOCK, hudební klub Cross Club, Centrum současného umění DOX, divadlo La Fabrika, městskou zeleň (Tamirův park, Park U Vody, Ladislavův park) atd. Pár minut chůze od domu je vzdálena tramvajová zastávka Ortenovo náměstí a v docházkové vzdálenosti je stanice metra C - Nádraží Holešovice a vlaková stanice Praha-Holešovice. Byt je volný k nastěhování ihned. Energetická třída: G (průkaz nedodán).



Nahoru