Aktuálně můžete v lokalitě Praha vybírat z nabídky 2 172 bytů.
Přehled nemovitostí: pronájem byty > 2+kk Zpět na přehled nabídek

Pronájem vybaveného bytu 2+kk (64,6 m2) se sklepem, Praha 10 - Horní Měcholupy, ul. Boloňská

68 m2

64 m2

osobní

G - Mimořádně nehospodárná

8007

12.01.2026

Cena: 23000 CZK / objekt / měsíc
Poznámka k ceně: + služby 3.500,- Kč + el. na nájemce, 1x kauce 1

Poslat dotaz k nabídce
Zásady používání osobních údajů

Prodejce

Makléř: Karel Štaubert

Telefon: 608 332 ...

E-mail: stauber ...

Zobrazit celý kontakt

Nemovitost nabízí

Maxxus reality

Rozdělovská 2370/55, 16900 Praha 6

www.maxxus.cz

Zobrazit kontakt na RK

Zobrazit všechny nabídky RK

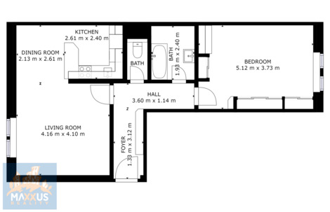
K dlouhodobému pronájmu nabízíme nábytkem vybavený podkrovní byt 2+kk o užitné ploše 64,6 m2 se sklepní kójí (3 m2) situovanou v suterénu domu, ul. Boloňská, Praha 10 - Horní Měcholupy. K bytu náleží garážové parkovací stání ve vedlejším parkovacím domě za měsíční poplatek 1.500,- Kč. Byt se nachází v 6. podlaží 6. podlažního domu s výtahem. Dispozice bytu: vstupní předsíň, obývací pokoj s jídelnou a plně vybavenou kuchyňskou linkou (myčka, lednice s mrazákem, el. varná deska, trouba), samostatná toaleta, koupelna s vanou a přípojkou pračky a ložnice. Velkou výhodou bytu jsou úložné prostory řešený v rámci vestavěných skříní a sítě proti hmyzu. Podlahy: laminátové a dlažba. Vytápění: ústřední. V okolí domu se nachází Golf Club Hostivař, Kaufland, MŠ, ZŠ, MÚ Praha 15, oblíbený Pivovar Hostivar. Velmi rychlé spojení s centrem metropole do 15 minut -> vlaková stanice Praha-Horní Měcholupy. Poplatky jsou 3.500,- Kč a elektřina se převádí na nájemce. Byt je volný k nastěhování ihned. Makléř doporučuje prohlídku. PENB: G* štítek nebyl dodán, hodnota bude aktualizována.



Nahoru