Makléř: Folkmannová Jana
Telefon: 777 091 ...
E-mail: jana.fo ...
Zobrazit celý kontaktTelefon: 777 091 566
E-mail: jana.folkmannova@century21.cz
Nemovitost nabízí
CENTURY 21 Birdie Reality - pobočka NextRound
28. října 813/248, 709 00 Ostrava
www.century21.cz/kancelar-birdie-reality-pobocka-nextround
Zobrazit kontakt na RK
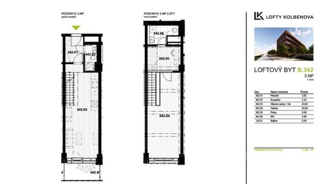
K okamžitému pronájmu nabízíme moderní loftový byt 3+kk, 66 m2 s balkónem ve 3. NP v atraktivní industriální rezidenci Lofty Kolbenova. Dominantou bytu je prostorný obývací pokoj s kuchyňským koutem o výměře 24,6 m2, vybavený indukční varnou deskou, troubou, mikrovlnnou troubou, lednicí s mrazákem a myčkou nádobí. Z obývací části je přímý vstup na balkon o velikosti 5 m2 s východní orientací. Součástí obývací části je schodiště propojující byt s horním patrem. V horním patře se nachází dvě samostatné místnosti oddělené celoprosklenými stěnami, které zajišťují dostatek denního světla. Byt disponuje dvěma samostatnými sociálními prostory. V dolním patře se nachází koupelna se sprchovým koutem a toaletou. V horním patře je toaleta s připraveným prostorem pro pračku a sušičku. Byt je vybaven podlahovým vytápěním napojeným na centrální zdroj, klimatizací, rekuperací a automatickými předokenními žaluziemi. Standard bydlení odpovídá moderním nárokům na komfort i úsporný provoz s výhodou energetické třídy B PENB. Lofty Kolbenova nabízí moderní a komfortní bydlení v žádané lokalitě s výbornou dopravní dostupností. Stanice metra "Kolbenova" (trasa B) je pouhé 3 minuty pěšky od budovy. Výše nájemného: 30.000, Kč/ měs. Zúčtovatelné zálohy: 3.679, Kč/ měs. El.energie se přepisuje na nájemnika Výše jistoty: 60.000, Kč Provize RK: 10.000, Kč + DPH K bytu je možné pronajmout garážové stání formou zakladače (horní stání) cena: 4.000, Kč/ měs. Po domluvě lze do bytu dodat pračku a jiné úložné prostory. V případě zájmu o prohlídku nebo o více informací kontaktujte, prosím, makléře.
Pronájem, Byt 3+kk, Praha 1
Nabízíme pronájem prostorného bytu 3+kk o výměře 86 m2, který se nachází v atraktivní lokalitě Praha 1 - ul. Pštrossova. Byt je umístěn ve 4. NP…
Pronájem bytu 3+kk 81 m2, Nad Dalejským údolím, Praha 5 - Stodůlky
Pronájem apartmánu 3+kk, balkon, předzahrádka, 2 garážová stání - Praha 5, Stodůlky Světlý apartmán 3+kk s balkonem, předzahrádkou a dvěma…