Pronájem bytu 3+1, 85 m2, Praha 6 - Břevnov, nezařízený, MHD, obora Hvězda, možnost parkování
85 m2
85 m2
osobní
G - Mimořádně nehospodárná
452
06.01.2026
Makléř: Horká Kateřina
Telefon: 604 624 ...
E-mail: horka@m ...
Zobrazit celý kontaktTelefon: 604 624 604
E-mail: horka@modusreality.cz
Nemovitost nabízí
Modus Reality
Slezská 2329/136, Praha 3
Zobrazit kontakt na RK
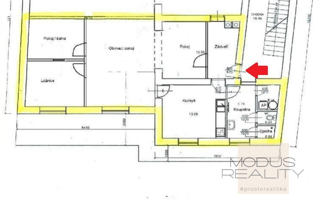
Nabízím Vám k pronájmu atypický světlý byt 3+1, v 1. patře skvěle udržovaného domu, v Praze 6 - Břevnov, ul. Bělohorská. Byt je vybavený kuchyňskou linkou s elektrickým sporákem a digestoří, jinak se pronajímá nezařízený. Byt je nyní nově vymalovaný, uklizený a čeká na nastěhování novým nájemníkem. Dispozičně se jedná o velký obývací pokoj, samostatnou kuchyň, dvě samostatné ložnice (jedna bez okna), zádveří a na ně navazující průchozí pokoj bez okna (lze využít jako šatnu, pracovnu, knihovnu apod.), koupelnu se sprchovým koutem, uzavíratelnou toaletou a technickou místností s bojlerem a přípojem na pračku. V celém bytě plovoucí podlahy, dlažba a plastová okna. Lokalita s výbornou dopravní dostupností (tramvajová zastávka Malý Břevnov přímo před domem) a s množstvím zeleně v okolí vyzývající k procházkám (obora Hvězda, park Šafránka). Možnost parkování na vyhrazeném místě přímo ve dvoře u domu za příplatek 500 Kč/měsíc. Doporučuji osobní prohlídku. Nájemné činí 25.000 Kč + veškeré zúčtovatelné poplatky 6.000 Kč. Vratná kauce 31.000 Kč. Provize RK 25.000 Kč + DPH. <a href="https://www.eurobydleni.cz/byty/3_kk/praha-6/obec-vokovice/pronajem/"><strong>Pronájem bytu 3+kk Praha 6, Vokovice</strong></a>
Byt 3+1 (104 m2), u Karlova náměstí, Praha 2 Nové Město, Odborů
Prostorný zařízený byt 3+1, 104 m2 ve třetím patře činžovního domu s výtahem, Nové měslo, ul. Odborů. Byt nabídne obývací pokoj/jídelnu, plně…
Pronájem, Byt 3+1, Praha 10
pronájem bytu 3+1 s pracovnou a dvěma balkony, 102 m2, na P10 Strašnice, ul. Dětská. Nezařízený byt se nachází ve 3 patře udržovaného domu bez výtahu…
Pronájem bytu 3+1 Praha 6, Břevnov na Eurobydleni.cz