Aktuálně můžete v lokalitě Praha vybírat z nabídky 2 167 bytů.
Přehled nemovitostí: prodej byty > 2+1 Zpět na přehled nabídek

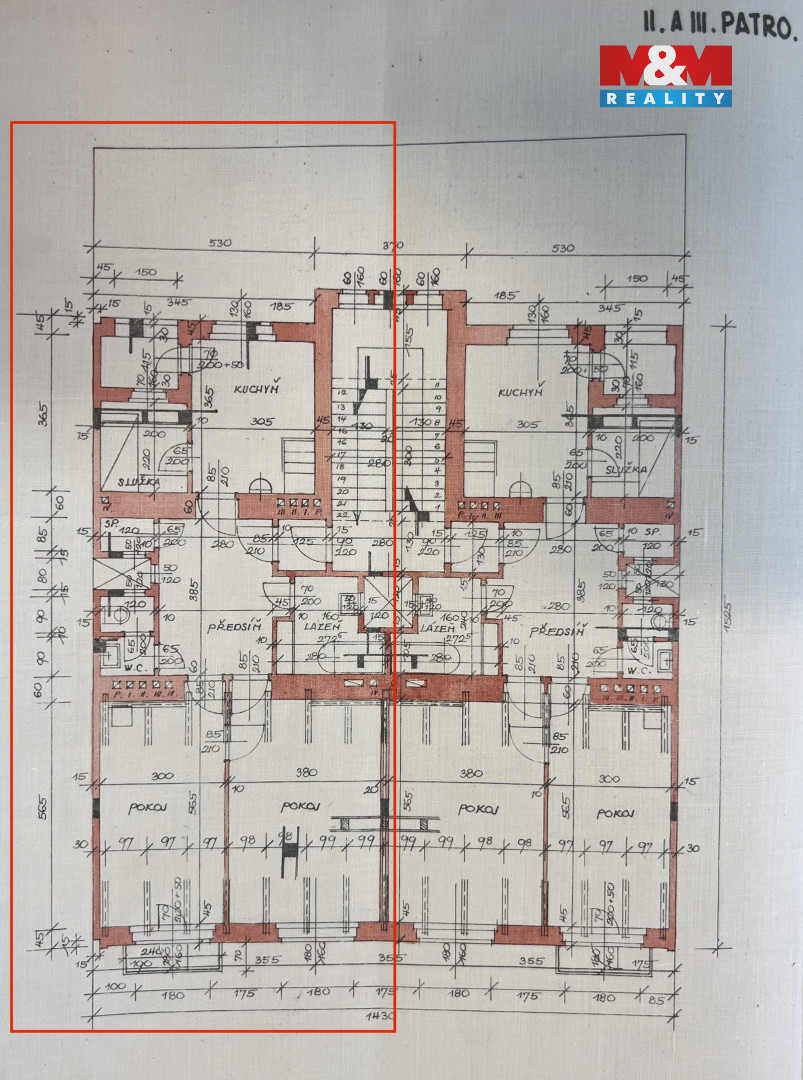
Prodej bytu 2+1, 80 m2, Praha 5 - Smíchov, ul. Moulíkova

neuvedeno

80 m2

osobní

E - Nehospodárná

920334

14.01.2026

Cena: 9799000 CZK / objekt
Poznámka k ceně: Uvedená cena zahrnuje provizi RK 1

Poslat dotaz k nabídce
Zásady používání osobních údajů

Prodejce

Makléř: Šťovíčková Vlasta DiS.

Telefon: 800 100 ...

E-mail: info@mm ...

Zobrazit celý kontakt

Nemovitost nabízí

M&M reality holding a.s.

Krakovská 1675/2, 110 00 Praha 1

www.mmreality.cz

Zobrazit kontakt na RK

Zobrazit všechny nabídky RK

Velmi dobře udržovaný byt se současnou dispozicí 2+1 s malou pracovnou s možností úpravy na 3+kk se šatnou. Nachází se v atraktivní lokalitě pražského Smíchova, ul. Moulíkova. Byt je situován ve 3. patře cihlového domu bez výtahu, má velkorysou halu se vstupem do všech místností, zasklenou lodžii do vnitrobloku (2,5 m2) a balkon do ulice (1,4 m2). Prohlášení vlastníka uvádí výměru 74 m2, skutečně zaměřeno 80,6 m2 užitné plochy. K dispozici je prostorná kuchyně s místem pro jídelní stůl, komora a sklep (v současnosti probíhá kompletní rekonstrukce sklepů s instalací nových kovových sklepních kójí). Koupelna a WC byly rekonstruovány cca před 12 lety, v pokojích jsou renovované parkety. Byt je vhodný k rekonstrukci dle vlastních představ. Lokalita nabízí skvělou dopravní dostupnost - metro B Smíchovské nádraží, vlak, tramvaje i autobusy přímo u domu, rychlé napojení na Strakonickou i směry Kladno a Beroun. V okolí je kompletní občanská vybavenost, obchody, školy, OC Nový Smíchov..



Nahoru