Makléř: Mgr. Merknerová Barbora
Telefon: 608 662 ...
E-mail: barbora ...
Zobrazit celý kontaktTelefon: 608 662 147
E-mail: barbora.merknerova@century21.cz
Nemovitost nabízí
CENTURY 21 Ruby
Přemyslovská 2845/43, 130 00 Praha 3
www.century21.cz/kancelar/ruby/
Zobrazit kontakt na RK603 488 499
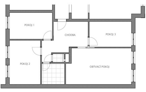
Nabízíme k pronájmu krásný byt 4+kk s balkonem v novostavbě z roku 2009 na Praze 3 v těsné blízkosti vrchu Vítkov. Byt se nachází ve 4. nadzemním podlaží domu s výtahem. K bytu dále náleží sklípek v přízemí objektu, který je umístěn prakticky u parkovacího stání, které je možno si k bytu také pronajmout. Byt s kompletně a moderně vybavenou kuchyní je částečně zařízen nábytkem. Má 3 samostatné ložnice a prostorný obývací pokoj s kuchyňským koutem. U ložnice orientované do dvora je balkon. Jedná se o velmi praktickou lokalitu, v místě je veškerá občanská vybavenost, školy, dostatek zeleně a je odsud výborné dopravní spojení do centra Prahy. Byt bude volný od 1.1.2026 Prohlídky možné po dohodě. Majitel si přeje nájemníky bez domácích mazlíčků. Nájemce skládá kauci ve výši 1 měsíčního nájmu + měsíční zálohy na služby. Odměna RK 1 měsíční nájem 1 DPH.
Pronájem bytu 4+kk 120 m2 v Thámové ulici
K dlouhodobému pronájmu nabízíme zcela vybavený byt, o dispozci 4+kk a dvěma koupelnami, umístěný v posledním patře, udržovaného činžovního domu s…
Pronájem klimatizovaného bytu 4+kk, 124 m + 2xB, 3 neprůchozí pokoje, P1 - Dlouhá ul.
Exkluzivně zprostředkuji pronájem krásného bytu 4+kk, 124 m + dva balkony orientované do klidného vnitrobloku v 1. patře činžovního domu v Dlouhé…