Makléř: Miloslava Kačerová
Telefon: 222 703 ...
E-mail: podpora ...
Zobrazit celý kontaktTelefon: 222 703 030
E-mail: podpora@idealninajemce.cz
Nemovitost nabízí
Ideální nájemce
Lazaretní 925/9, 615 00 Brno
Zobrazit kontakt na RK222 703 030
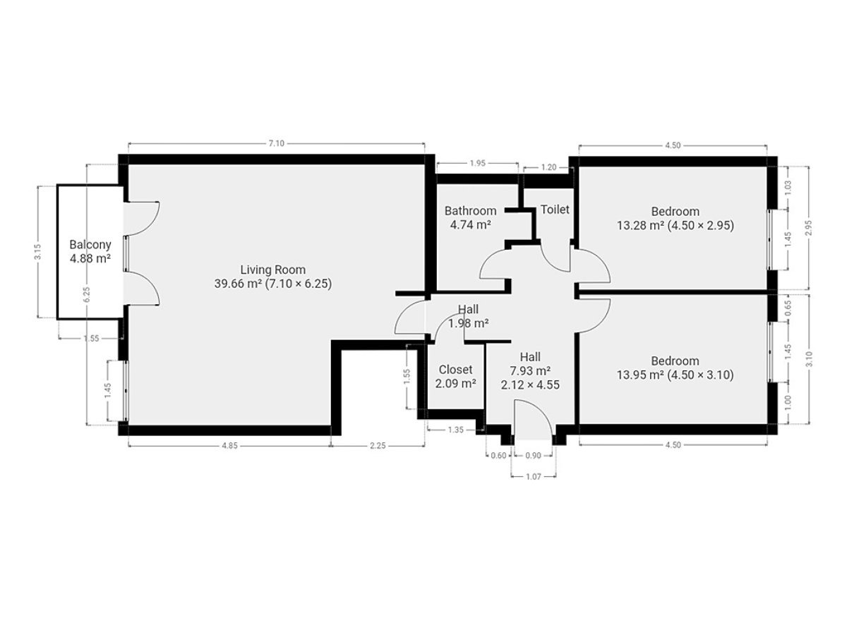
Nabízíme k dlouhodobému podnájmu mimořádně prostorný a světlý byt o dispozici 3+kk, který se nachází v klidném prostředí vyhledávaných Hlubočep na Praze 5. Byt o celkové výměře 95 m2 je situován ve prvním patře udržovaného bytového domu a představuje ideální volbu pro ty, kteří hledají harmonické spojení městského komfortu s bezprostřední blízkostí přírody. Byt je v rezidenčním objektu Prokopský dvůr, jehož součástí je neveřejná parková zeleň a dětské hřiště výhradně pro uživatele bytového domu. K bytu náleží také praktický sklep a dvě garážová parkovací stání, veškeré příslušenství je již zahrnuto v částce podnájemného. Nemovitost je nabízena jako částečně vybavená (pohovka není součástí vybavení, z bytu byla již odstraněna) Interiér bytu je laděn do světlých tónů a díky své orientaci působí velmi vzdušně. Srdcem celého domova je obývací pokoj propojený s plně vybaveným kuchyňským koutem, který disponuje lednicí s mrazákem, elektrickou troubou, varnou deskou i digestoří. Z obývací části se vstupuje přímo na prostorný balkon s výhledem do okolí. Soukromí zajišťují dva samostatné neprůchozí pokoje, které lze snadno proměnit v ložnici, dětský pokoj nebo klidné zázemí pro domácí pracovnu. Koupelna nabízí vanu pro relaxaci, zatímco toaleta je pro větší komfort umístěna samostatně. Tato lokalita je ideální pro ty, kteří chtějí spojit pohodlí města s každodenním kontaktem s přírodou. Jen pár minut od domu začíná přírodní rezervace Prokopské údolí - jedno z nejkrásnějších míst v Praze, které nabízí rozsáhlé možnosti pro procházky, běhání, cyklistiku i víkendový relax mimo ruch centra. Klidné okolí, minimum tranzitní dopravy a zeleň na dosah vytváří příjemné a bezpečné prostředí pro každodenní život. Zároveň je zajištěno velmi dobré spojení do centra - autobusová zastávka Nádraží Hlubočepy je pár minut chůze od domu, odkud se pohodlně dostanete na metro B - Anděl a dále do širšího centra města. Kromě autobusu je možné jet na Smíchov i vlakem v rámci Pražské integrované dopravy. Autem je Smíchov dostupný během několika minut. V bezprostředním okolí domu se nachází potraviny, restaurace, kavárny, mateřská škola i dětské hřiště. Lokalita je oblíbená zejména mezi lidmi, kteří hledají klidné bydlení s rychlou dostupností městské infrastruktury, ale zároveň chtějí mít přírodu doslova za domem. Byt je volný k nastěhování ihned. Energetická náročnost: Třída G (průkaz nedodán)
Pronájem bytu 3+kk Praha 1 - Malá Strana, Hroznová
Pronájem útulného bytu 3+kk, 73 m2 s výhledem na Pražský hrad ve druhém patře historického činžovního domu s výtahem na Praze 1 - Malá Strana. Byt je…
3+kk/B, 74 m2, 4 p., ul. Pod Harfou, Praha 9 - Vysočany
Zprostředkujeme Vám pronájem bytové jednotky 3+kk s balkonem o celkové obytné ploše 74 m2, nacházející se ve čtvrtém patře novostavby s výtahem v ul.…