Aktuálně můžete v lokalitě Praha vybírat z nabídky 2 165 bytů.
Přehled nemovitostí: prodej byty > 3+kk Zpět na přehled nabídek

Prodej družstevního bytu 3+kk ve skvělém stavu, Praha 8 - Libeň

neuvedeno

neuvedeno

družstevní

G - Mimořádně nehospodárná

1164

22.01.2026

Cena: 7490000 CZK / objekt
Poznámka k ceně: vč. provize, právního servisu, bezpečné úschovy a všech poplatků. 1

Poslat dotaz k nabídce
Zásady používání osobních údajů

Prodejce

Makléř: Eva Linhartová

Telefon: 602 327 ...

E-mail: eva.lin ...

Zobrazit celý kontakt

Nemovitost nabízí

Realitní kancelář KOTULA s. r. o.

Na Perštýně 342/1,, Praha 1

www.kotula.cz

Zobrazit kontakt na RK

Zobrazit všechny nabídky RK

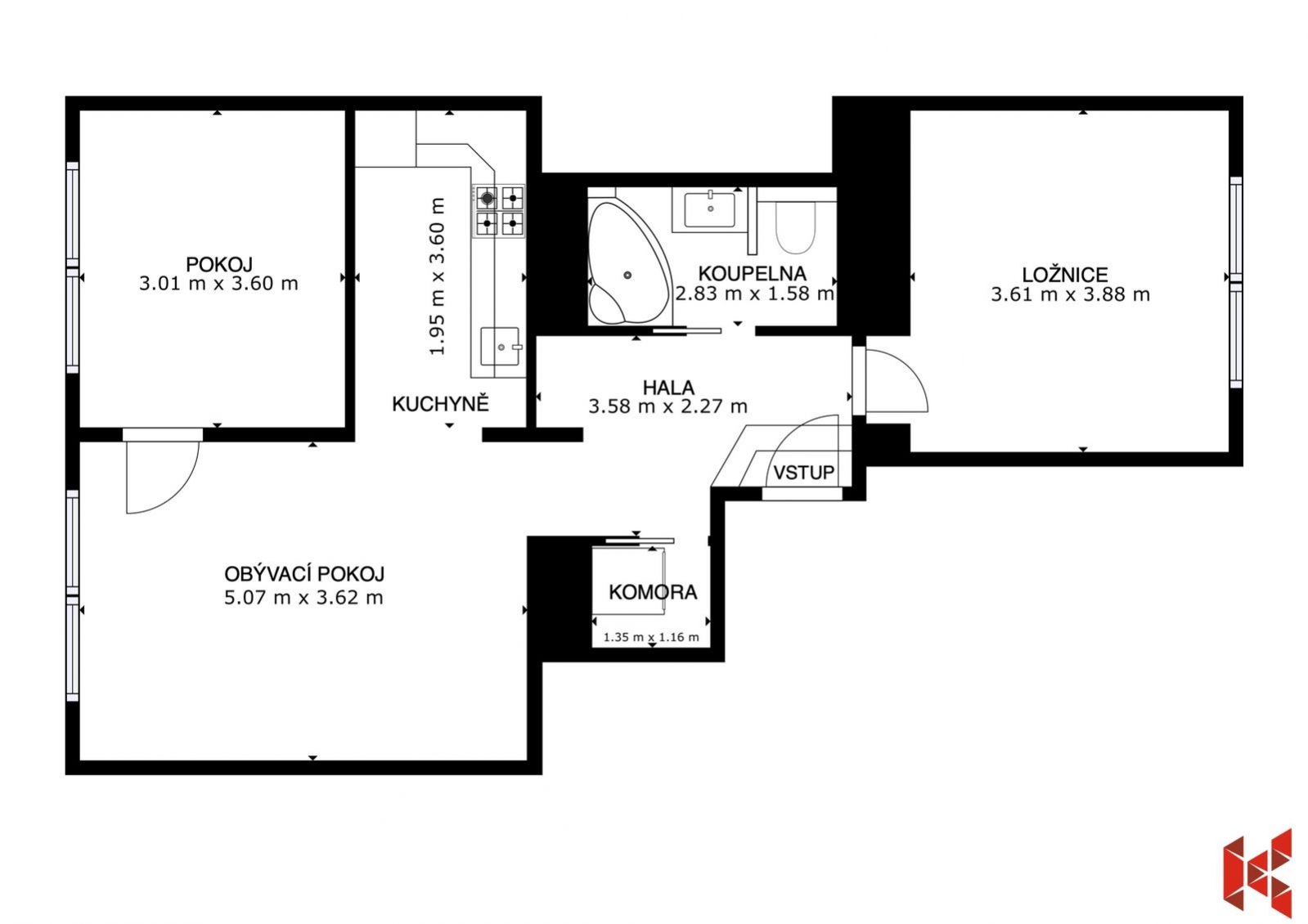
Nabízíme Vám k prodeji družstevní byt o velikosti 61,27 m s chytře řešenou dispozicí 3+kk v klidné ulici Lindnerova, Praha 8 - Libeň. Byt je ve výborném stavu a připravený rovnou k nastěhování. Byt se nachází ve zvýšeném přízemí, což poskytuje dostatek soukromí pro každodenní život. Co Vám byt nabízí: Dobře řešená dispozice 3+kk. Užitnou plochu 61,27 m (plus dalších 3,5m2 sklepní kóje). Družstevní vlastnictví se splacenou anuitou. Skvělý stav. Připravené ihned k nastěhování. Zvýšené přízemí (prakticky výše 1. patra). Obývací pokoj a jedna ložnice orientovány do ulice, druhá ložnice do vnitrobloku. Klimatizace v bytě. Plynový kotel k ohřevu vody a vytápění. Nové podlahy. Pečlivě vedený bytový dům. Bohatá občanská vybavenost a dostupnost MHD. Přesná adresa: Lindnerova 1021/14, Praha - Libeň. Cenu včetně právního servisu, provize, bezpečné úschovy a všech poplatků. Možnost financování hypotékou se zástavou jiné nemovitosti. Prodávající si vyhrazuje právo vybrat kupujícího na základě jím zvolených kritérií. Skvělá lokalita plná života i klidu. Libeň je čtvrť, která se rychle rozvíjí a spojuje to nejlepší z městského života s přírodou na dosah. V okolí najdete vše, co ke spokojenému bydlení potřebujete: Restaurace a kavárny včetně vyhlášené restaurace Burger & Bistro u Toma. Občanskou vybavenost pro rodiny školy, školky, gymnázium, střední školy, dětská hřiště, DDM, Sokol, poliklinika. Zeleň a sport Park pod Korábem, Thomayerovy sady, cyklostezka podél Vltavy ideální pro běh, jízdu na kole i relaxaci. Nákupy Albert, Lidl a Kaufland + nespočet malých praktických obchodů. Kulturní scéna Divadlo pod Palmovkou, galerie, koncerty a další akce v okolí. Rychlé a jednoduché spojení do dalších částí Prahy. Pro více informací a prohlídku jsme k dispozici. Těšíme se. <a href="https://www.eurobydleni.cz/byty/2_kk/praha-10/obec-strasnice/pronajem/"><strong>Pronájem bytu 2+kk Praha 10, Strašnice</strong></a>




Prodej bytu 3+kk Praha 8, Libeň na Eurobydleni.cz


Nahoru